
Would you like to save this?
Specifications
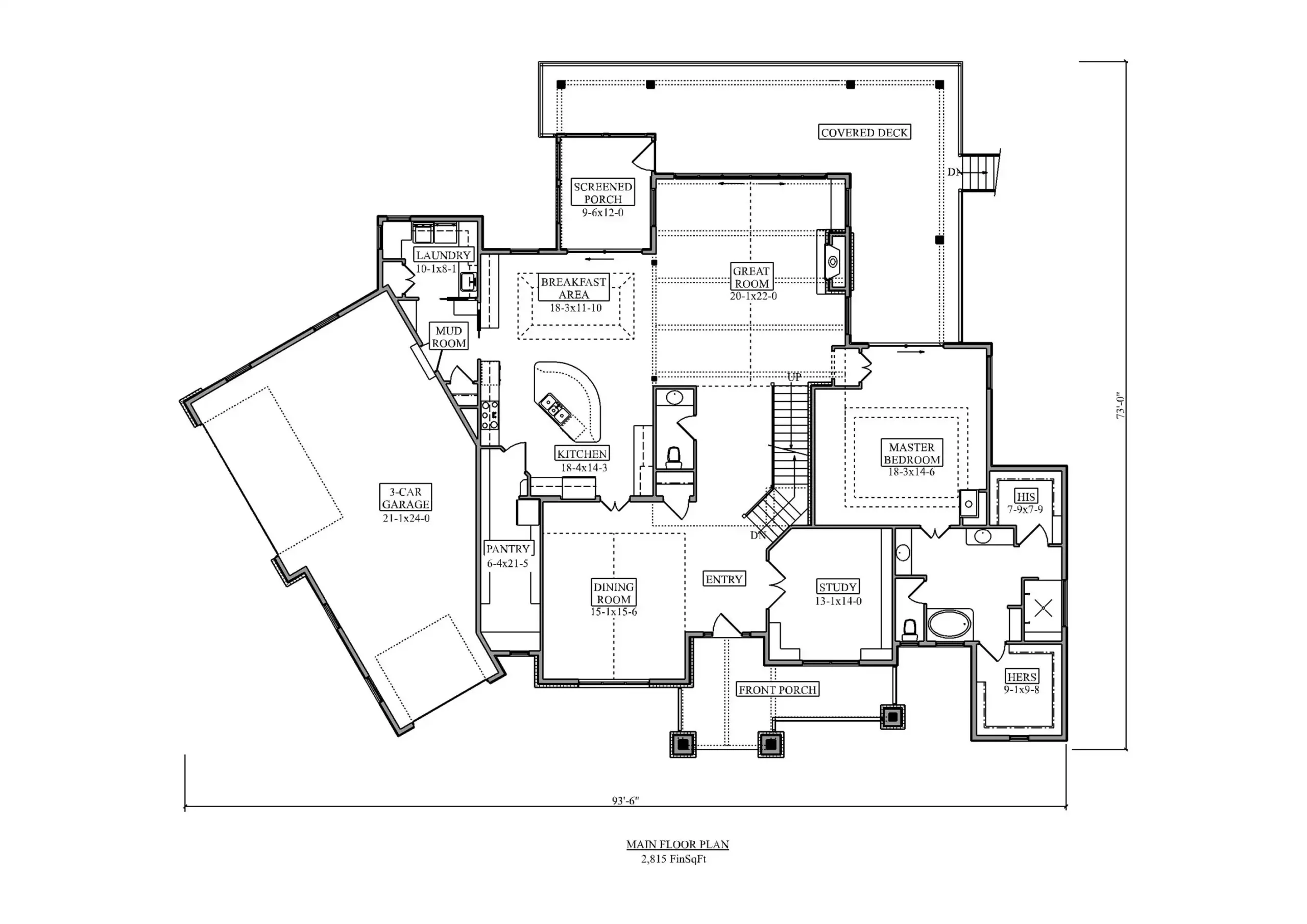
Sq. Ft.: 2,815
Bedrooms: 5
Bathrooms: 3.5
Stories: 1
Garage: 3
Main Level Floor Plan

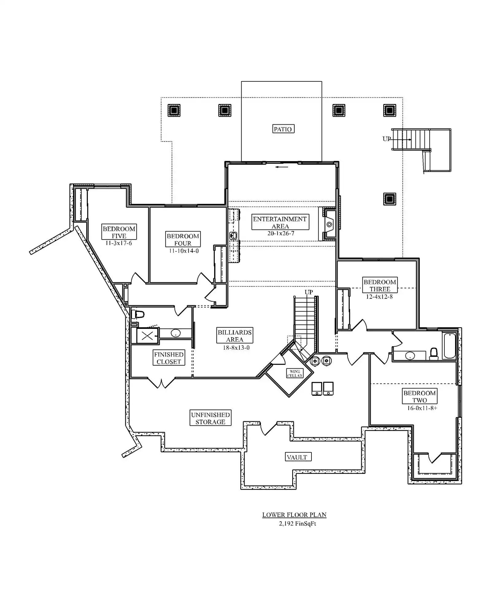
Lower Level Floor Plan

🔥 Create Your Own Magical Home and Room Makeover
Upload a photo and generate before & after designs instantly.
ZERO designs skills needed. 61,700 happy users!
👉 Try the AI design tool here
Loft Plan

Front View

Rear View

Front Entry

Would you like to save this?
Great Room

Dining Room

Kitchen

Kitchen

Primary Bedroom

Primary Bathroom

Study

Recreation Room

🔥 Create Your Own Magical Home and Room Makeover
Upload a photo and generate before & after designs instantly.
ZERO designs skills needed. 61,700 happy users!
👉 Try the AI design tool here
Details
With 2,815 heated square feet, this 5-bedroom home offers an open, inviting layout ideal for corner lots. The butler’s pantry and kitchen island flow seamlessly into a bright nook and great room, creating a perfect space for meals and entertaining.
The main-floor primary bedroom features his and hers closets, a separate tub and shower, and sits privately apart from secondary bedrooms. A screened porch and outdoor living space provide a comfortable retreat for enjoying fresh air.
Vaulted ceilings and an open floor plan enhance the sense of space throughout the home. The lower floor includes a rec room and unfinished space that can be customized for hobbies, storage, or extra living needs.
A covered front porch adds charm to the entrance while connecting to the surrounding landscape. This home combines elegance, functionality, and cozy living for the whole family.
Pin It!

The House Designers Plan 12068
