
🔥 Would you like to save this?
Specifications
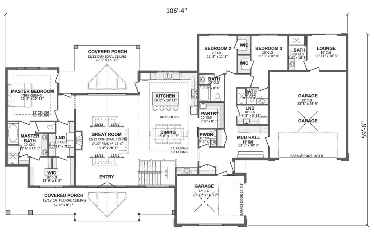
- Sq. Ft.: 3,002
- Bedrooms: 3
- Bathrooms: 4.5
Floor Plan

In order to come up with the very specific design ideas, we create most designs with the assistance of state-of-the-art AI interior design software. Also, assume links that take you off the site are affiliate links such as links to Amazon. this means we may earn a commission if you buy something.
The single-story layout centers on a great room connecting the kitchen, dining, and entry. The master suite sits privately to the left. Three bedrooms occupy the right wing with shared baths. A mud hall, laundry, pantry, and two garage bays round out the practical core.
White Horizontal Siding and Dark Rooflines Define This Craftsman Rear Elevation

Crisp white horizontal lap siding wraps the single-story exterior beneath a dark charcoal roof with multiple gabled peaks. A covered porch at the center features wood beam detailing and pendant lighting. Large windows flood interior rooms with natural light. Trimmed boxwood shrubs and a curved patio border frame the lush green lawn.
Material Matters: White lap siding paired with dark roofing creates a strong visual contrast that suits Craftsman proportions well. The wood beam work inside the gabled porch entry adds warmth without competing with the clean exterior palette. Stone porch columns on the side covered area ground the structure and add material variety.
Vaulted Ceilings and Exposed Wood Beams Anchor an Open Craftsman Living Space
Exposed wood beams cross a vaulted white ceiling above two dark olive sofas arranged on a geometric rug. A stone fireplace anchors the left wall beneath a mounted TV. Large glass doors flood the room with natural light and backyard views.
Did You Know: Vaulted ceilings with exposed beams are a defining trait of Craftsman interiors, rooted in the Arts and Crafts movement of the early 1900s. Leaving structural elements visible was a deliberate rejection of ornate Victorian excess. Builders used locally sourced wood to keep the aesthetic honest and grounded.
Dark Cabinetry and Light Wood Tones Create Bold Contrast in This Craftsman Kitchen

Black cabinetry against white subway tile is one of the most striking moves in kitchen design today.
Four wood barstools line a light-topped island. Globe pendants hang overhead. A wide window frames green trees beyond the counter.
Dark Cabinets, Warm Wood, and an Open Plan Built for Gathering

Dark charcoal cabinetry pairs with light oak flooring throughout the kitchen and dining area. An oval white dining table seats six with upholstered chairs in matching charcoal. Open shelving, a butler’s pantry nook, and exposed ceiling beams reinforce the Craftsman character.
Designer’s Secret: Pairing dark cabinetry with light wood floors is one of the most reliable ways to keep a room from feeling heavy. The key is repeating the warm wood tone in at least three places: here in the ceiling beams, the island base, and the bar stools, so the eye reads it as intentional rather than accidental.
Moving into the private quarters, the primary bedroom carries the same design confidence found throughout the rest of the home.
Brass Accents and Board-and-Batten Walls Give This Primary Bedroom Real Character

Matte black board-and-batten paneling anchors the bed wall while brass sconces add warm contrast. Linen curtains hang from a gold rod against sheer underlayers. Hardwood floors meet a geometric wool rug beneath the bed. A tray ceiling with a brass chandelier draws the eye upward without competing with the view outside.
Pin It

Exterior photo shows a Craftsman home with stone accents and wood gables; floor plan below details three bedrooms across 106 feet.
Fun Fact: Brass hardware became a staple of Craftsman-style homes because it aged naturally and required little maintenance, aligning with the movement’s preference for honest, functional materials. Many builders today replicate that aged finish using unlacquered brass, which patinas over time rather than holding a polished look.
