
🔥 Would you like to save this?
Specifications
- Sq. Ft.: 2,711
- Bedrooms: 4
- Bathrooms: 2.5
Floor Plan

In order to come up with the very specific design ideas, we create most designs with the assistance of state-of-the-art AI interior design software. Also, assume links that take you off the site are affiliate links such as links to Amazon. this means we may earn a commission if you buy something.
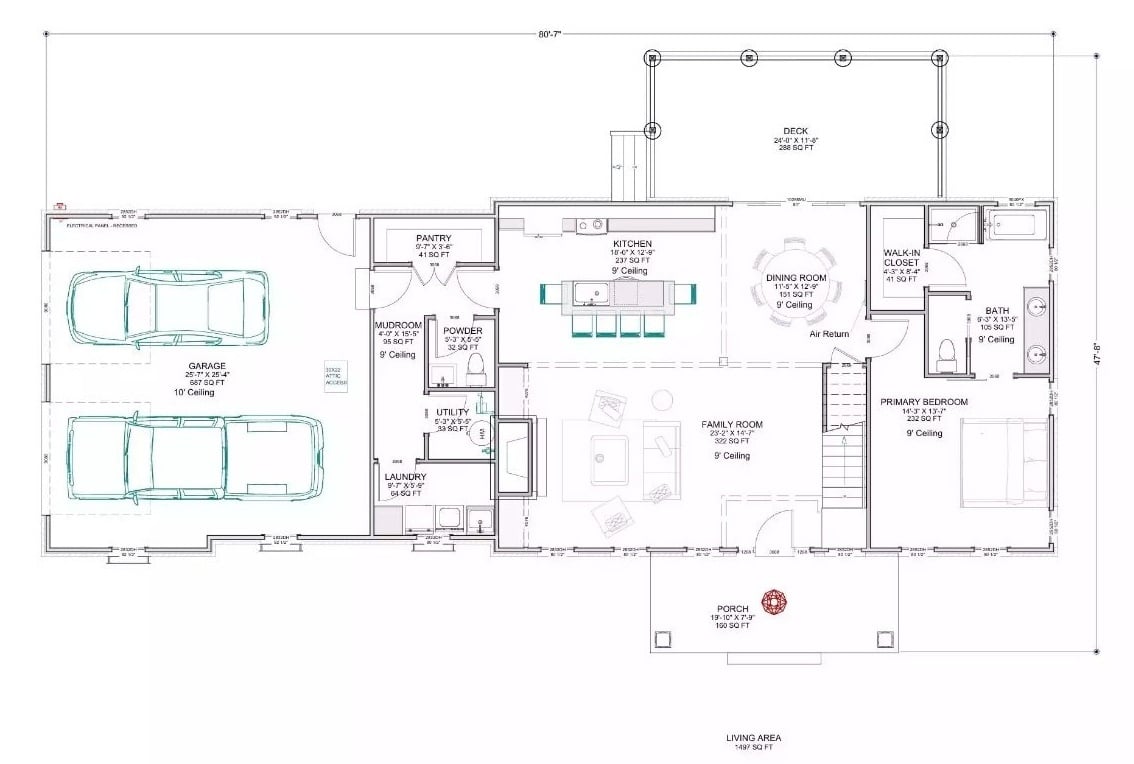
The main floor spans 1,497 square feet with a central kitchen and dining room opening to a rear deck. The family room anchors the right side, with a primary bedroom suite nearby. A mudroom, laundry, pantry, and powder room cluster near the garage entry for practical daily flow.
Floor Plan

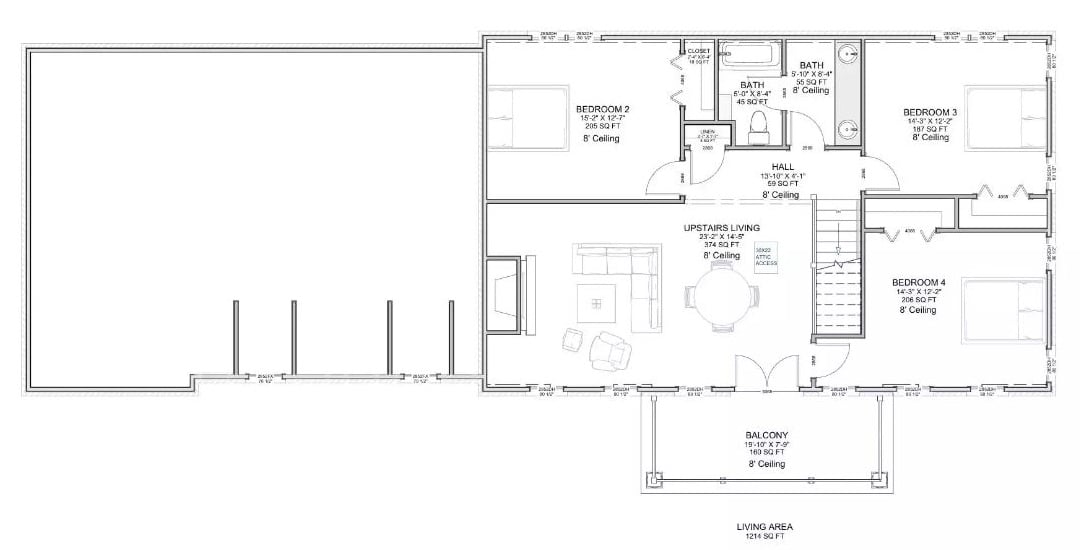
Four bedrooms and two baths surround a central hall. Upstairs living connects to a balcony, with attic access and closet storage tucked nearby.
Built-Ins, Blue Sofa, and a Fireplace That Anchors It All
Blue sectional seating faces a white fireplace wall flanked by arched built-in shelving.
Light hardwood floors, a glass coffee table, and pendant lights over a kitchen island complete this open layout.
Moving inside, the kitchen brings together color, material, and proportion in one open space.
Olive Cabinets, Marble Counters, and Wire Pendants Over a Gray Island

Sage-green upper cabinets pair with gray lower cabinets and a marble waterfall island. Three wire-cage pendants hang in a row overhead. White bar stools with chrome legs line the island. Subway tile backsplash runs the full length of the wall, keeping the palette grounded and clean.
Gray Cabinets, Glass Table, and a Chandelier Over an Open Dining Space

Flat-front gray cabinetry lines the kitchen wall with brushed pulls and white subway tile backsplash. A glass-top round table sits centered under a multi-arm chandelier, paired with white shell chairs and gray upholstered stools on blonde hardwood.
Fun Fact: Round dining tables improve conversation flow by eliminating head-of-table hierarchy, making every seat feel equally central to the group. Glass tops visually expand smaller dining areas by reflecting light rather than absorbing it.
Hardwood Floors, Gray Walls, and a Low Platform Bed Centered on Natural Light

Dark bedding contrasts with white pillows against a gray accent wall. Wood floors, a ceiling fan, and a round wall shelf add warmth and function.
Designer’s Secret: Low-profile platform beds work best in rooms with generous floor space because they draw the eye outward, making the room feel wider than it actually measures. Keeping nightstands at mattress height reinforces the horizontal line and gives the layout a cohesive, grounded feel. Pairing dark furniture against a mid-tone gray wall prevents the room from reading too cold or too stark.
Marble Tile, a Soaking Tub, and an Open Walk-In Shower Side by Side

White marble tile covers shower walls; a freestanding tub sits beneath a grid window overlooking green trees.
Editor’s Note: Carrara-style marble tile in large format reduces grout lines, which makes small bathroom walls feel cleaner and less visually fragmented. Positioning a soaking tub beneath a window pulls natural light directly into the bathing area without requiring additional fixtures. Bathrooms that share both a walk-in shower and a freestanding tub consistently rank among the top requested features in primary suite design.
Covered Deck With Ceiling Fan, Dining Set, and a View of Open Lawn

Brick exterior walls meet tongue-and-groove porch ceiling above a composite deck in warm gray tones. Black metal chairs surround a square dining table at the center. A five-blade ceiling fan provides airflow overhead. White balusters frame the railing, and sliding glass doors connect directly to the interior living space.
Why It Works: Outdoor ceiling fans rated for damp or wet locations can lower perceived temperature by several degrees, making a covered deck usable well into summer evenings. Composite decking resists warping and splintering better than pressure-treated lumber, which reduces long-term maintenance costs significantly.
Pin It

Exterior rendering shows a two-story brick home with dormers and a balcony, paired below with a first-floor plan spanning garage, primary bedroom, kitchen, and deck.
