
🔥 Would you like to save this?
Specifications
- Sq. Ft.: 1,907
- Bedrooms: 4
- Bathrooms: 2
Floor Plan

In order to come up with the very specific design ideas, we create most designs with the assistance of state-of-the-art AI interior design software. Also, assume links that take you off the site are affiliate links such as links to Amazon. this means we may earn a commission if you buy something.
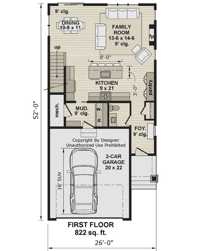
The first floor covers 822 square feet and organizes living, dining, and kitchen spaces across the rear of the home. A foyer connects to the mudroom and a pantry off the kitchen. The 2-car garage sits at the front. Ceilings reach 9 feet in the family room, dining area, and foyer.
Floor Plan

Four bedrooms share the second floor’s 1,085 square feet. Three secondary bedrooms cluster near a linen closet and shared hall, while the primary bedroom anchors the south end with a walk-in closet and private bath featuring a 72-inch vanity and 60-inch shower.
Worth Knowing: All four bedrooms on this floor carry 8-foot ceilings, which keeps proportions comfortable without requiring the structural cost of taller framing. The primary bath pairs a 72-inch vanity with a 42-inch wide shower niche, giving two people enough room to move without crowding. Walk-in closet dimensions of 7 feet 4 inches by 7 feet 6 inches offer genuine storage capacity rather than a token alcove.
Warm Wood and White Paint Set a Calm Tone in This Entryway Hall
Wide-plank hardwood floors run the length of the hallway toward a bright living room beyond. A reclaimed wood console holds a ceramic lamp, stacked books, and woven baskets. Black iron hardware on the barn-style door anchors the light palette.
Did You Know: Entryway consoles placed along a hallway wall serve a practical purpose beyond decor. Positioning one near a window allows natural light to reduce reliance on overhead fixtures during daytime hours, which can noticeably lower energy use in frequently trafficked spaces.
Stone Fireplace and Open Layout Define This Living Room’s Character

Stacked stone rises floor to ceiling around a gas fireplace with a reclaimed wood mantel. Cream sofas anchor a patterned rug, while a glass coffee table keeps sight lines open. White cabinetry connects the kitchen beyond. Recessed lighting supplements a wrought iron pendant above the island.
Ask Yourself: Before committing to a stone surround, consider how high the mass will read against your ceiling height. Tall stone columns can make a room feel grounded or heavy, depending on wall color and natural light. Pairing warm-toned stone with light paint, as done here, prevents the feature wall from closing in the space.
Navy Island and Cage Pendants Anchor This Kitchen’s Contrast

Pairing a dark navy island against white cabinets is one of the simplest ways to add visual weight without renovating.
Herringbone tile runs behind the range. Three iron cage pendants hang low over the marble-top island, where boucle bar stools with wood legs provide seating for four.
Marble Countertops and White Subway Tile Bring Order to Laundry Day

Side-by-side front-load machines sit below a marble counter. White shaker cabinets, subway tile backsplash, and a potted fern keep the space calm.
Side-by-side front-load machines sit below a marble counter.
Candle-Style Chandelier and Navy Island Pull This Open Plan Together

Reclaimed wood planks form a dining table anchored beneath a wrought-iron candle chandelier with twelve tapers. Upholstered chairs in natural linen surround it. Behind, a bold navy kitchen island contrasts with white cabinetry. Pendant lanterns hang above barstools. Light hardwood flooring runs through dining, kitchen, and living areas without interruption.
Fun Fact: Open-plan homes became dominant in residential design during the 1990s, largely driven by demand for spaces that could handle both daily living and entertaining without dedicated formal rooms. Removing walls between the kitchen, dining, and living areas also allows a single heating and cooling zone to serve multiple functions, which can reduce energy use compared to compartmentalized layouts.
Dark Leather Headboard and Gray Walls Give This Primary Bedroom a Grounded Feel

The black leather bed frame sits on a striped area rug. Neutral bedding, a layered throw, and a single table lamp keep the palette calm and cohesive.
Double Vanity with Marble Counters and Black Hardware Keeps Morning Routines Simple

White shaker cabinets, marble countertops, matte black fixtures, dual rectangular mirrors, and wall sconces define this organized primary bathroom.
Pin It

Exterior photo shows a dark-sided craftsman home with a double garage, paired with the annotated first-floor plan totaling 822 square feet.
