
🔥 Would you like to save this?
Specifications
- Sq. Ft.: 2,292
- Bedrooms: 3
- Bathrooms: 2
Floor Plan

In order to come up with the very specific design ideas, we create most designs with the assistance of state-of-the-art AI interior design software. Also, assume links that take you off the site are affiliate links such as links to Amazon. this means we may earn a commission if you buy something.
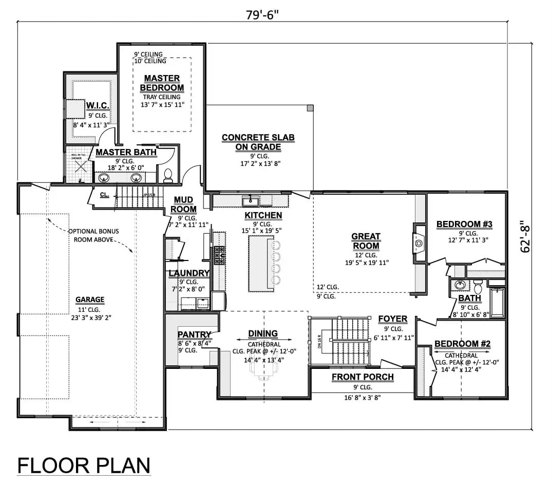
The single-story layout places the master suite and walk-in closet at the upper left, separated from two additional bedrooms on the right. A central kitchen connects to the great room, dining area, and mud room. The three-car garage sits to the left. A foyer anchors the front entry near the staircase.
Floor Plan

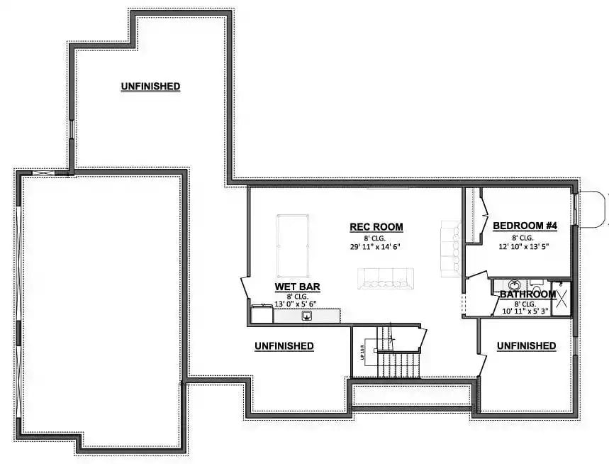
Basement level features a rec room, wet bar, and bedroom four with a full bathroom, plus multiple unfinished storage areas.
Cream Siding and Dark Trim Frame a Covered Rear Patio Built for Outdoor Living
Cream lap siding, charcoal roof shingles, and black-framed windows define this rear elevation. A covered patio holds gray sectional seating beneath a ceiling fan.
Designer’s Secret: Painting window frames and trim in a dark contrasting color against light siding is one of the most cost-effective ways to give a ranch home visual weight and definition. On a single-story house, this contrast draws the eye horizontally, making the structure feel longer and more grounded. Stone veneer at the base ties the exterior to the natural setting behind it.
Slate Blue Seating and a Stone Fireplace Define a Living Room Built for Comfort

Oversized sectional and matching chair in slate blue anchor the space. A floor-to-ceiling stone fireplace hosts a wall-mounted TV, flanked by lit wood shelves. Marble side table and glass coffee table add contrast.
Pro Tip: Stone fireplace surrounds that run floor to ceiling draw the eye upward and can make standard ceiling heights feel taller than they are. Using natural fieldstone rather than manufactured stone veneer adds texture variation that manufactured panels rarely replicate. Both options work with a wood mantel, but fieldstone pairs especially well with warm wood tones like the oak shelving shown here.
Slate Blue Island and Marble Counters Give This Kitchen a Two-Tone Edge

Pairing a blue island base against white upper cabinets is one of the boldest moves a kitchen can make.
Four backless stools with white cushions line the island. Marble counters and a matching backsplash run wall to wall. Three dome pendants in aged bronze anchor the space above. Lavender stems add a soft color note.
Moving into the dining area, the open layout continues with natural light doing most of the heavy lifting.
Vaulted Ceilings and Grid Windows Pull the Outdoors Into the Dining Room

Gray upholstered chairs surround a wood dining table anchored on a white area rug. A pendant light hangs from the vaulted ceiling above. Black-framed grid windows frame a green yard beyond. Blue-gray built-ins connect the space to the adjacent kitchen without breaking the room’s calm, neutral palette.
Wood Slat Accent Wall and Blue Upholstered Bed Anchor a Calm Primary Suite

Vertical wood slat panels cover the full headboard wall, adding warmth against pale blue-gray paint. White nightstands with wall-mounted sconces flank a blue upholstered bed dressed in striped and solid bedding. Light hardwood flooring, a white area rug, and a black pendant light overhead complete the balanced, quiet space.
Did You Know: Acoustic wood slat wall panels do double duty in bedrooms, adding visual texture while also absorbing sound to reduce echo. They install directly over drywall using adhesive or a track system, making them a practical weekend project. Natural oak and walnut finishes are among the most popular choices for pairing with neutral wall colors.
Arched Mirrors and Blue Cabinetry Give This Double Vanity Bathroom Real Presence

Slate-blue shaker cabinets pair with white marble walls and vessel sinks. Matte black fixtures and arched mirrors carry through to the walk-in shower, which is clad floor-to-ceiling in square teal tile.
Quick Fix: Vessel sinks sit on top of the counter rather than dropping in, which means the countertop edge stays fully visible and contributes to the overall design. They also require wall-mounted faucets, which frees up counter space on either side. Pairing them with a shaker-style vanity keeps the look grounded rather than overly contemporary.
Pin It

Exterior rendering pairs with a detailed floor plan showing three bedrooms, garage, and open living spaces.
