
🔥 Would you like to save this?
Specifications
- Sq. Ft.: 2,912
- Bedrooms: 2
- Bathrooms: 2.5
Floor Plan

In order to come up with the very specific design ideas, we create most designs with the assistance of state-of-the-art AI interior design software. Also, assume links that take you off the site are affiliate links such as links to Amazon. this means we may earn a commission if you buy something.
Main floor features master suite, two bedrooms, den, great room, kitchen with butler’s pantry, mudroom, and covered porches front and rear.
Floor Plan

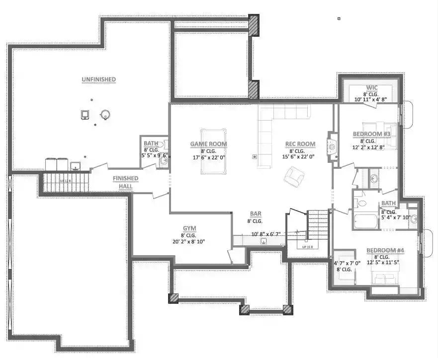
The lower level centers on a game room and rec room that open toward each other, with a wet bar nearby. A gym runs along the south wall. Two bedrooms share a full bath on the east side, with a walk-in closet serving bedroom three. A finished hall connects all spaces, while the unfinished area offers storage potential.
Dark Rooflines and Board-and-Batten Siding Define This Craftsman Rear Elevation
Sage green board-and-batten siding pairs with stone veneer accents along the rear facade. A covered patio holds outdoor seating, while dark asphalt shingles cap multiple rooflines. Flowering shrubs and clipped boxwoods anchor the foundation planting.
Vaulted Ceilings and Exposed Beams Frame a Fireplace-Centered Living Room

Dark shiplap surrounds a wall-mount TV above a brick fireplace. Forest-green velvet sofas anchor the space. Wood shelving with LED underlighting flanks both sides of the surround.
Designer’s Secret: Placing floating shelves on either side of a fireplace wall draws the eye outward and makes the surround feel wider without adding square footage. LED strip lighting tucked under each shelf shelf adds depth after dark without requiring overhead fixtures. Wood tones on the shelves and mantel soften the contrast of the dark shiplap.
Matte Green Island Base and Marble Countertops Ground This Open Kitchen

Beadboard cabinetry in warm putty pairs with a green island base. Globe pendants hang above white marble. Light oak floors and wood ceiling beams complete the palette.
Pro Tip: Painting an island a contrasting color while keeping perimeter cabinets neutral is one of the most cost-effective ways to add visual depth to an open kitchen. Muted greens with warm gray undertones work particularly well against marble surfaces because they pull out the cool veining without competing with it. If you repaint later, the island is a far smaller job than refinishing an entire kitchen.
Pendant Clusters and Exposed Beams Pull Together a Dining Room Built for Gatherings

Globe pendants hang in a cluster above an oval table ringed by eight upholstered chairs with wood frames. Fluted green cabinetry wraps the table base. Open wood shelving lines the back wall, displaying glassware and ceramics. Black French doors open to an outdoor patio beyond.
- Clustered pendant fixtures work best when hung 30 to 36 inches above the tabletop for even light distribution.
- Fluted panel bases on tables and islands add texture without requiring additional paint or material cost.
- Open shelving near a dining space reduces the need for a separate buffet or sideboard, freeing up floor area.
Wood Ceiling Planks and a Linear Fireplace Anchor This Craftsman Primary Bedroom

Light oak flooring runs beneath a Moroccan rug. Paneled charcoal wall behind the bed adds depth. A linear gas fireplace sits flush with white drywall opposite sheer linen curtains.
By The Numbers: Ceiling material makes a measurable difference in how warm a bedroom feels. Wood planks absorb sound and add thermal mass, two qualities that drywall ceilings cannot match. Builders often reserve wood ceilings for primary suites because the material cost is easier to justify in smaller square footage.
Gold Hardware and Arch Mirrors Bring Warmth to an All-White Double Vanity

Soft gray inset cabinets pair with marble countertops and brushed gold faucets. Two arch mirrors with gold frames flank wall sconces. Flanking linen towers provide storage, while marble floors extend into the freestanding tub area.
Why It Works: Arch-top mirrors soften the geometry of a cabinet-heavy vanity wall without requiring any structural changes. Repeating the same metal finish across faucets, sconces, and mirror frames creates cohesion that makes a space read as intentional rather than assembled piece by piece.
Charcoal Walls and a Wood-Clad Fireplace Column Set the Tone in This Home Office

Floating shelves flank a shiplap fireplace surround painted in natural oak. Navy cabinetry runs wall to wall below. A wood-top desk anchors the center of the room over a patterned rug, while a brass chandelier pulls warmth from the floor.
Navy cabinetry runs wall to wall below, grounding the upper shelves without competing with the fireplace column.
Pin It

Exterior rendering shows a Craftsman farmhouse with board-and-batten siding and stone accents. Below, the floor plan reveals two bedrooms, a great room, a butler’s pantry, a den, and a two-car garage across 83 feet.
Worth Knowing: A butler’s pantry positioned between the kitchen and dining area keeps serving ware and small appliances out of sight during meals. That separation reduces visual clutter without requiring a dedicated prep kitchen, making it a practical choice for single-story builds where square footage is already stretched across a wide footprint.
