
🔥 Would you like to save this?
Specifications
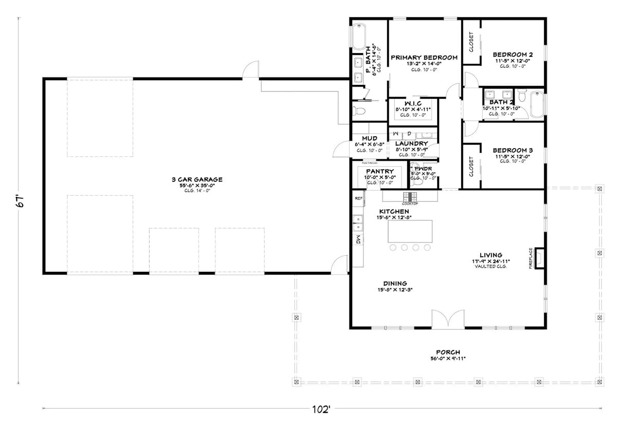
- Sq. Ft.: 2,030
- Bedrooms: 3
- Bathrooms: 2.5
Floor Plan

In order to come up with the very specific design ideas, we create most designs with the assistance of state-of-the-art AI interior design software. Also, assume links that take you off the site are affiliate links such as links to Amazon. this means we may earn a commission if you buy something.
This ranch layout features a three-car garage on the left side connecting to the main living areas. The home includes three bedrooms clustered on the right, with the primary suite offering a walk-in closet and private bath. Kitchen, dining, and living spaces flow together in an open arrangement. A mud room, laundry, and pantry provide practical storage near the garage entry. The wraparound porch spans the front facade.
White Farmhouse Ranch with Stone-Trimmed Wraparound Porch and Black Roof

White vertical siding wraps the exterior, contrasting with a dark asphalt shingle roof. Stone-clad columns anchor the wraparound porch, which features exposed wood beams and a painted ceiling. Black-framed windows punctuate the facade, while manicured shrubs line the foundation. The porch extends around multiple sides, creating generous outdoor living space.
Try This: Consider pairing tapered stone columns with horizontal wood railings at seated height. This creates visual interest while maintaining open sightlines from the porch. The combination of materials adds depth without overwhelming the clean farmhouse aesthetic.
Mid-Century Modern Living Room with Corner Fireplace and Desert Views
Sectional sofa faces twin windows framing landscape views. Corner fireplace anchors space beneath abstract art and world clocks display.
Open-Concept Kitchen and Living Area with Fireplace and Abstract Art

Cream walls frame an open space where kitchen counters transition to living room seating. Red upholstered stools line the island. A lit fireplace anchors the far wall beneath colorful artwork and three clocks. Wood fan blades spin overhead.
Kitchen Island with Coral Velvet Stools and Gray Concrete Countertops

Four coral-pink velvet bar stools line a kitchen island topped with dark gray concrete. White shaker cabinets contrast with beige walls throughout the space. A stainless steel range hood rises above the cooktop. The island features multiple drawers with simple round knobs, providing storage below the extended counter.
Tranquil Bedroom with Dark Green Upholstered Bed and Woven Wall Art

Soft gray curtains frame windows on either side of a dark green upholstered platform bed. Three circular woven wall hangings add textural interest above the headboard. A mustard throw drapes across white bedding, while a braided pouf sits beside the bed on a patterned gray rug.
Pin It

Contemporary farmhouse exterior showcases a three-car garage and covered porch alongside a detailed floor plan revealing the bedroom wing, open kitchen-dining-living area, and spacious garage layout totaling 102 feet wide.
🔥 Would you like to save this?
3-Bedroom The Roswell Ranch with Front Porch and Open-Concept Living (Floor Plan)
Sq. Ft.: 1,589 | Bedrooms: 3 | Bathrooms: 2
3-Bedroom Ranch for a Corner Lot with Covered Patio (Floor Plan)
Sq. Ft.: 2,800 | Bedrooms: 3 | Bathrooms: 2.5
Tour This 1,993 Sq. Ft. 3 Bedroom Home Built for Entertaining — Check Out the Floor Plan
Sq. Ft.: 1,993 | Bedrooms: 3 | Bathrooms: 2
Tour This Timeless 3-Bedroom Ranch with Open Concept Living and Inviting Brick Detailing (Over 3,000 Sq. Ft. Floor Plan)
Sq. Ft.: 3,024 | Bedrooms: 3 | Bathrooms: 3
Experience the Perfect 1,629 Sq. Ft. Ranch Style Home with 3 Bedrooms and a 2 Car Garage (Floor Plan Included)
Sq. Ft.: 1,629 | Bedrooms: 3 | Bathrooms: 2

