
🔥 Would you like to save this?
Specifications
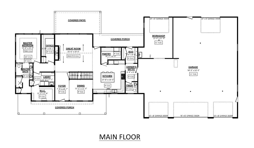
- Sq. Ft.: 2,639
- Bedrooms: 3
- Bathrooms: 2.5
Floor Plan

In order to come up with the very specific design ideas, we create most designs with the assistance of state-of-the-art AI interior design software. Also, assume links that take you off the site are affiliate links such as links to Amazon. this means we may earn a commission if you buy something.
The main floor features a master suite, office, great room, kitchen, dining room, and mudroom. A large garage and workshop sit to the right, with covered porches front and back.
Floor Plan

The second floor holds two bedrooms, a shared bath, a hall, and two walk-in closets accessed centrally.
Floor Plan
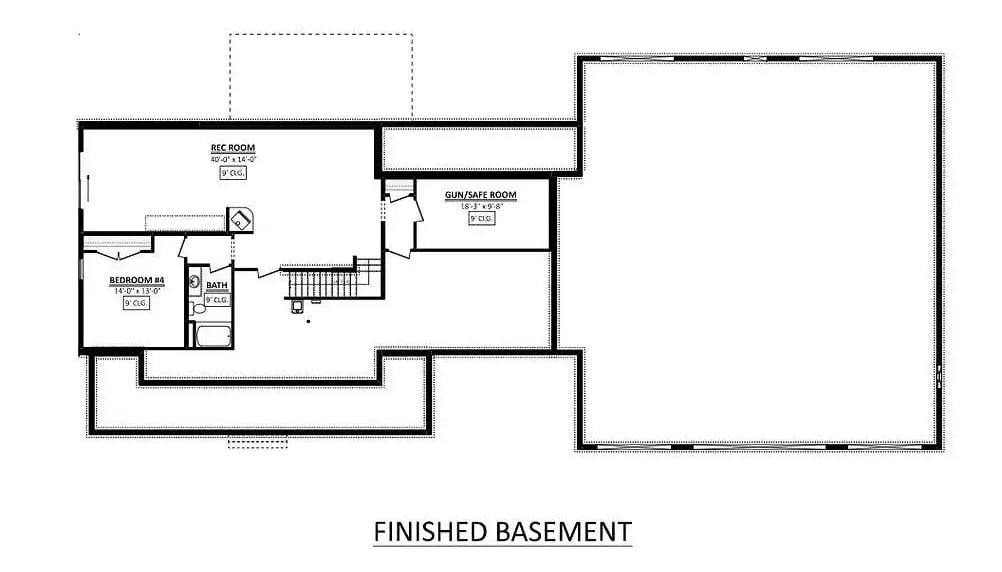
The basement layout includes a rec room, bedroom four with a bath, a gun/safe room, and unfinished storage space. The staircase connects to the upper levels.
Floor-to-Ceiling Stone Fireplace Anchors This Light-Filled Living Room

Light oak hardwood floors stretch across the open living room. A wood mantel sits against white stone. An iron chandelier hangs from an exposed beam overhead.
A wood mantel sits against white stone.
Warm Wood Tones Meet White Cabinetry in This Farmhouse Kitchen

White shaker cabinets surround a walnut island topped with quartz. Black pendant lights hang overhead. Wide-plank hardwood floors and a wood range hood add warmth throughout.
Quick Fix: Mixing two cabinet finishes, white perimeter cabinets paired with a stained wood island, adds visual depth without requiring a full renovation. Swapping upper cabinet hardware to matte black is one of the fastest ways to update an all-white kitchen on a budget.
Crystal Chandelier and Hardwood Floors Set the Tone in This Farmhouse Foyer

Tiered crystal pendants hang from a dark iron ring above wide-plank oak flooring in a warm honey finish. Walls painted soft greige keep the space calm. A wood front door with sidelights draws in natural light. Carpeted stairs with natural wood newel posts connect to the upper level.
In The Details: Crystal chandeliers with tiered drop pendants work particularly well in two-story foyers because the vertical space lets the full fixture read as intended. Mounting one in a single-story entry can make the ceiling feel lower than it actually is. Scale matters as much as style when choosing statement lighting for an entry.
Tray Ceiling and Carpet Flooring Define This Quiet Primary Bedroom

Neutral carpet, tray ceiling, and three windows bring natural light into an unfurnished bedroom.
Did You Know: Tray ceilings are a cost-effective way to add architectural interest to a bedroom without structural changes. Builders typically frame them during construction, but they can be added during a remodel by dropping the perimeter and leaving a raised center section. Even a modest four-inch depth creates noticeable dimension.

Laundry rooms are often overlooked, but this one earns its place as a hardworking and well-designed space.
Speed Queen Machines and a Utility Sink Make Laundry Day Far Less Painful

Butcher block shelving lines the left wall while Speed Queen machines sit beneath white upper cabinets. A matte black faucet serves a wood-framed utility sink between the units.
Transition: Top-load washers like Speed Queen models are making a comeback in utility-focused laundry rooms. Their longer cycle agitation cleans heavily soiled items more thoroughly than many front-loaders, making them a practical choice for households with active lifestyles or muddy kids.
Decorated Concrete Floors and a UTV Make This Garage Built for Work and Play

Geometric two-tone concrete floors, built-in shelving, multiple garage doors, and a parked side-by-side UTV fill this oversized garage.
Fun Fact: Stained and scored concrete floors are a practical alternative to epoxy coatings in large garages. The scoring creates expansion joints that prevent cracking, while acid stains penetrate the slab to produce color that won’t peel or chip over time.
Pin It

Exterior photo shows a farmhouse with a covered front porch; floor plan below reveals main-level rooms including a great room, kitchen, master suite, and oversized garage with workshop.
