
🔥 Would you like to save this?
Specifications
- Sq. Ft.: 2,692
- Bedrooms: 2
- Bathrooms: 2.5
Floor Plan

In order to come up with the very specific design ideas, we create most designs with the assistance of state-of-the-art AI interior design software. Also, assume links that take you off the site are affiliate links such as links to Amazon. this means we may earn a commission if you buy something.
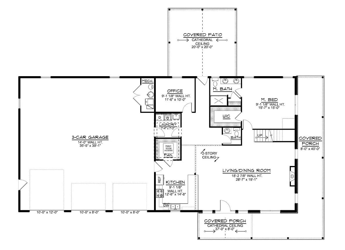
First floor shows master suite with walk-in closet, open living and dining room with two-story ceiling, kitchen, office, laundry, pantry, three-car garage, and covered porches on two sides.
Floor Plan

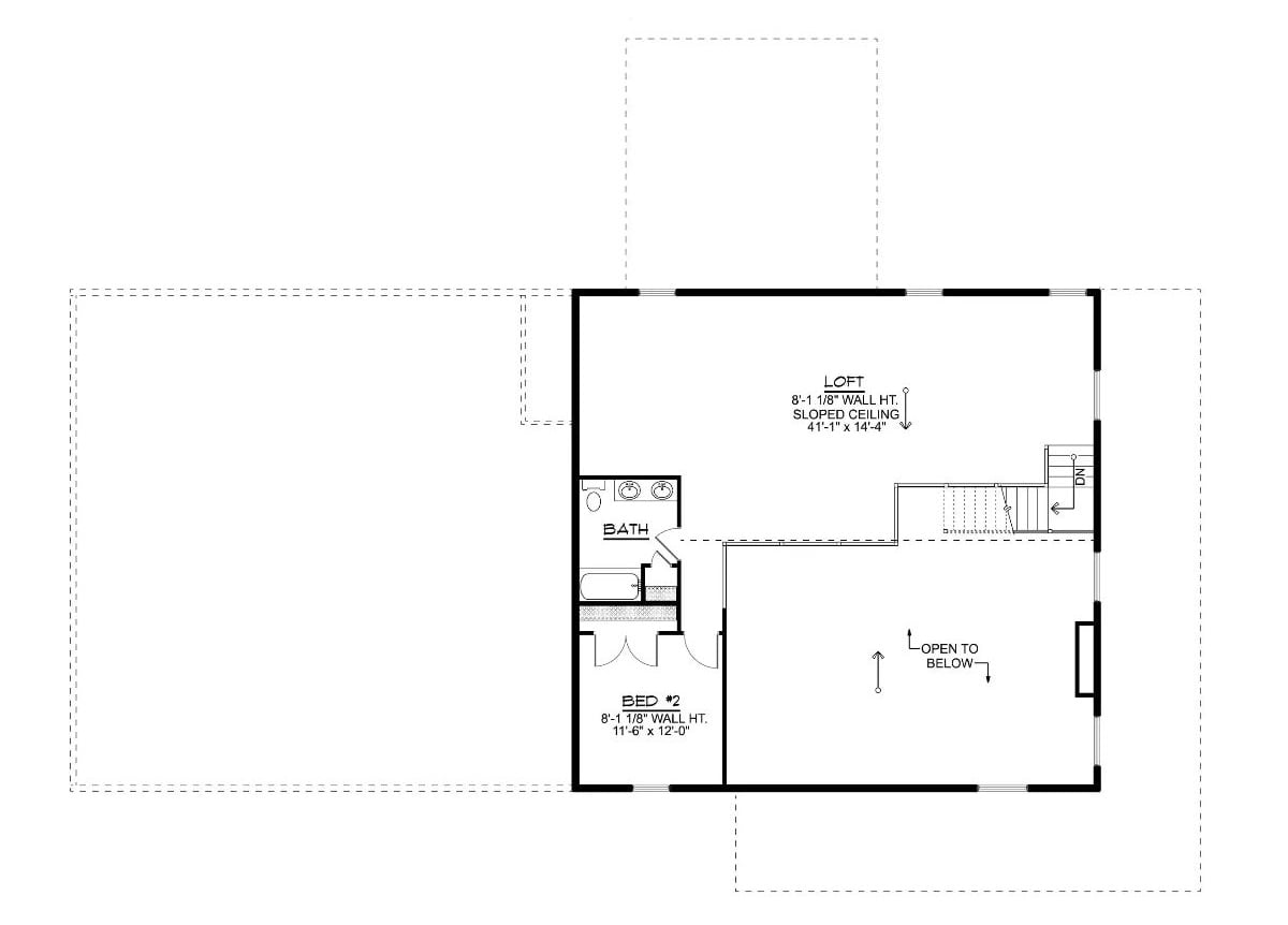
The upper level centers on a loft spanning 41 by 14 feet with a sloped ceiling. Bed #2 sits at 11-6 by 12 feet alongside a full bath. An open-to-below section connects visually to the ground floor. Stairs descend from the right side of the plan.
Floor-to-Ceiling Dark Shiplap Fireplace Wall Anchors a Vaulted Great Room
Dark shiplap reaches ceiling height beside a lit fireplace, paired with neutral sectional seating, a wood coffee table, and woven basket accents.
The Psychology Behind This: Vertical dark surfaces draw the eye upward, making high ceilings feel intentional rather than empty. Pairing that visual weight with warm wood tones and natural fiber textures keeps the room from feeling cold or stark. People instinctively read contrast as drama, and the white mantel shelf breaks the dark column just enough to signal comfort.
Open-Plan Dining and Kitchen Share Space Beneath Cathedral Ceilings

Warm wood plank flooring runs through the dining and kitchen zones. White upholstered chairs surround a wood table. Dark cabinetry anchors the kitchen island, topped with marble. Recessed lighting and a wall-mounted plant shelf add texture.
Why It Works: Open floor plans work best when each zone has a visual anchor. Here, the kitchen uses dark cabinetry, and the dining area uses a wood table to define separate functions without walls. Keeping flooring consistent across both zones ties the spaces together without sacrificing that sense of separation.
Matte White Appliances and Charcoal Cabinets Define a High-Contrast Kitchen

Charcoal shaker cabinets pair with white subway tile, marble counters, a panel-ready refrigerator, and dark hardwood floors.
Pro Tip: White appliances are making a quiet comeback in kitchens that already carry a strong contrast. Pairing them with near-black cabinetry keeps the palette cohesive without competing finishes fighting for attention. Matte hardware ties both tones together without adding a third color to manage.
Olive Walls and Wood Floors Give This Bedroom a Grounded, Nature-Inspired Feel

Ceiling fans with no light kit are quietly replacing flush-mount fixtures in bedrooms that prioritize clean lines.
Botanical prints hang above a low-profile bed dressed in brown bedding. Olive-toned walls meet wood-look flooring, while a leaning floor mirror and black metal wall clock add depth to the far corner.
Double Vanity With Marble Counters Brings Contrast to a Neutral Bath

Espresso cabinetry with chrome knobs anchors a double-sink vanity topped with white marble. Gray subway tile lines the upper wall. Industrial-style exposed bulbs hang above a frameless mirror. Dark floor tile and framed botanical prints complete the space.
Common Mistake: Matching your vanity cabinet finish to your floor tile pulls focus away from the sink and mirror. In bathrooms with double vanities, keeping the upper walls light helps balance the visual weight of darker lower cabinetry without the space feeling closed in.
Beyond the bedrooms, the home carves out a dedicated space for focused work and quiet reading.
Blue Chair and Zebra Rug Pull Personality Into a Low-Key Home Office

Two-tone gray walls shift from medium to near-black on the accent side. A wood-and-steel desk holds a laptop and a globe. The zebra hide rug grounds the blue swivel chair, while a wingback with a navy pillow fills the reading corner.
Transition: Accent walls work harder when the color change happens at a natural corner rather than mid-wall. Here, the darker tone stays on the window wall, using natural light to soften what would otherwise feel like a closed-in surface.
Matte Black Washer-Dryer Pair Anchors a Compact, Hardworking Laundry Room

Dark top-load machines sit beside a utility sink with white cabinetry, black hardware, and a floating shelf holding small plants and a canister.
Ask Yourself: Laundry rooms with utility sinks add real function, but placement matters. Positioning the sink at the end of the appliance run keeps the workflow moving in one direction without doubling back.
Pin It

Above, a modern barndominium exterior pairs board-and-batten siding with black roofing and glass garage doors. Below, the floor plan reveals a 3-car garage, open living and dining room with a 2-story ceiling, main bedroom suite, office, laundry, and covered porches on multiple sides.
