
🔥 Would you like to save this?
Specifications
- Sq. Ft.: 2,233
- Bedrooms: 4
- Bathrooms: 3
Floor Plan

In order to come up with the very specific design ideas, we create most designs with the assistance of state-of-the-art AI interior design software. Also, assume links that take you off the site are affiliate links such as links to Amazon. this means we may earn a commission if you buy something.
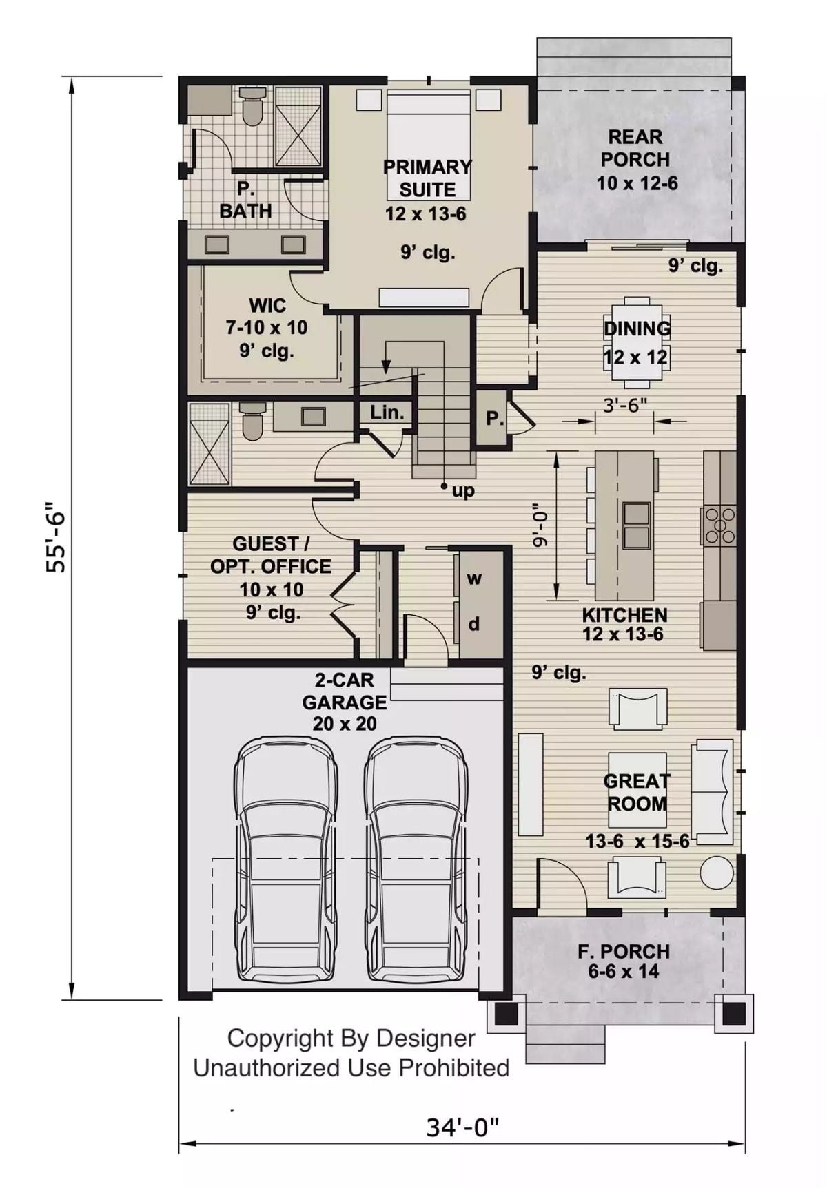
The main floor places the primary suite and guest room at the rear left, flanking a walk-in closet and private bath. The kitchen, dining, and great room run along the right side. A 2-car garage, laundry, and front and rear porches round out the layout.
Floor Plan

The upper floor holds a loft measuring 17 by 22 feet, two bedrooms each at 11 by 12, and a shared Jack and Jill bathroom between them. The staircase connects to the main level. All rooms carry 8-foot ceilings throughout.
Gray Tones and Black Accents Define a Casual Farmhouse Living Room
Soft gray walls pair with a light sofa and a matching armchair arranged around a dark wood coffee table. A patterned area rug anchors the space. On the opposite wall, a wall-mounted flat-screen TV sits above a low black media console. A framed black-and-white print and a fiddle-leaf fig add quiet character.
Ask Yourself: Could your living room handle a dark coffee table and media console against lighter walls and furniture? Strong contrast like this keeps a neutral palette from feeling flat. Consider whether your natural light levels can support that kind of bold difference.
Drum Pendants and White Cabinetry Shape a Farmhouse Kitchen Built for Gathering

Four barstools line a marble island beneath three drum pendants. White shaker cabinets, subway tile, and stainless asteel ppliances anchor the workspace.
Four bar stools line a marble island beneath three drum pendants.
Gray Walls and White Furniture Give This Bedroom a Calm, Collected Feel

Lavender-gray walls pair with white wood furniture throughout this bedroom. Recessed lighting keeps the ceiling clean. Navy lamps flank the bed, and light blue bedding adds color without competing. A built-in closet and compact desk make the space work harder than it looks.
Material Matters: Carpet remains one of the more practical flooring choices for bedrooms because it absorbs sound and stays warm underfoot. Neutral tones like the light gray shown here hide everyday wear better than white or cream options. Builders often spec low-pile carpet in secondary bedrooms to balance comfort with durability.
Moving from the bedroom into the primary bath, the design language shifts toward polished materials and doubles the functionality.
Dark Cabinetry and Marble Counters Anchor a Primary Bath Built for Two

Charcoal shaker cabinets pair with white marble countertops and dual undermount sinks. Black sconce fixtures and chrome faucets split the hardware finishes deliberately.
Transition: Wall-mounted sconces placed beside mirrors rather than above them reduce shadows on the face, which makes tasks like shaving or applying makeup far more accurate. Positioning lighting at eye level is a detail worth planning before drywall goes up.
Floating Shelves and Dark Walls Give This Home Office a Focused, Grounded Character

Dark olive walls anchor three floating shelves lined with books, framed photos, and small decorative objects. A gray wood desk sits centered on a geometric rug. Leather armchair, floor lamp, and wide window overlooking open greenery complete a workspace built for quiet productivity.
Budget Tip: Floating shelves cost significantly less than built-in cabinetry and can be installed without a contractor. Painting shelves the same color as the wall makes them appear intentional rather than added as an afterthought, which stretches a modest budget further.
Recessed Lighting and Open Layout Make This Loft Living Space Feel Expansive

Gray walls pair with a light carpet and a white sofa arrangement anchored by a black square coffee table. Three black-framed art prints hang above the seating area. Behind the living zone, a desk and rolling chair define a workspace. A large flat-screen sits on a gray media console to the right.
Why It Works: Recessed lighting distributed across a ceiling creates even illumination without casting the shadows that floor lamps or single overhead fixtures often produce. In open loft spaces where one area flows into another, consistent overhead lighting helps each zone read as part of a cohesive whole rather than a collection of disconnected spaces.
Pin It

Exterior rendering shows a white farmhouse with a dark roof; floor plan below details main-level layout including primary suite, garage, and great room.
