
🔥 Would you like to save this?
Specifications
- Sq. Ft.: 3,302
- Bedrooms: 4
- Bathrooms: 2.5
Floor Plan

In order to come up with the very specific design ideas, we create most designs with the assistance of state-of-the-art AI interior design software. Also, assume links that take you off the site are affiliate links such as links to Amazon. this means we may earn a commission if you buy something.
Main floor shows kitchen, dining, living, gymnasium, foyer, mudroom, breakfast nook, and covered terrace with stair access.
Floor Plan

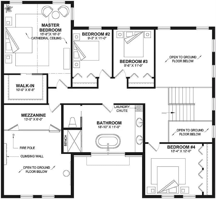
The upper level holds four bedrooms, a walk-in closet, and a shared bathroom with a laundry chute. A mezzanine overlooks the ground floor and includes a fire pole and climbing wall. The master bedroom features a cathedral ceiling.
Floor Plan
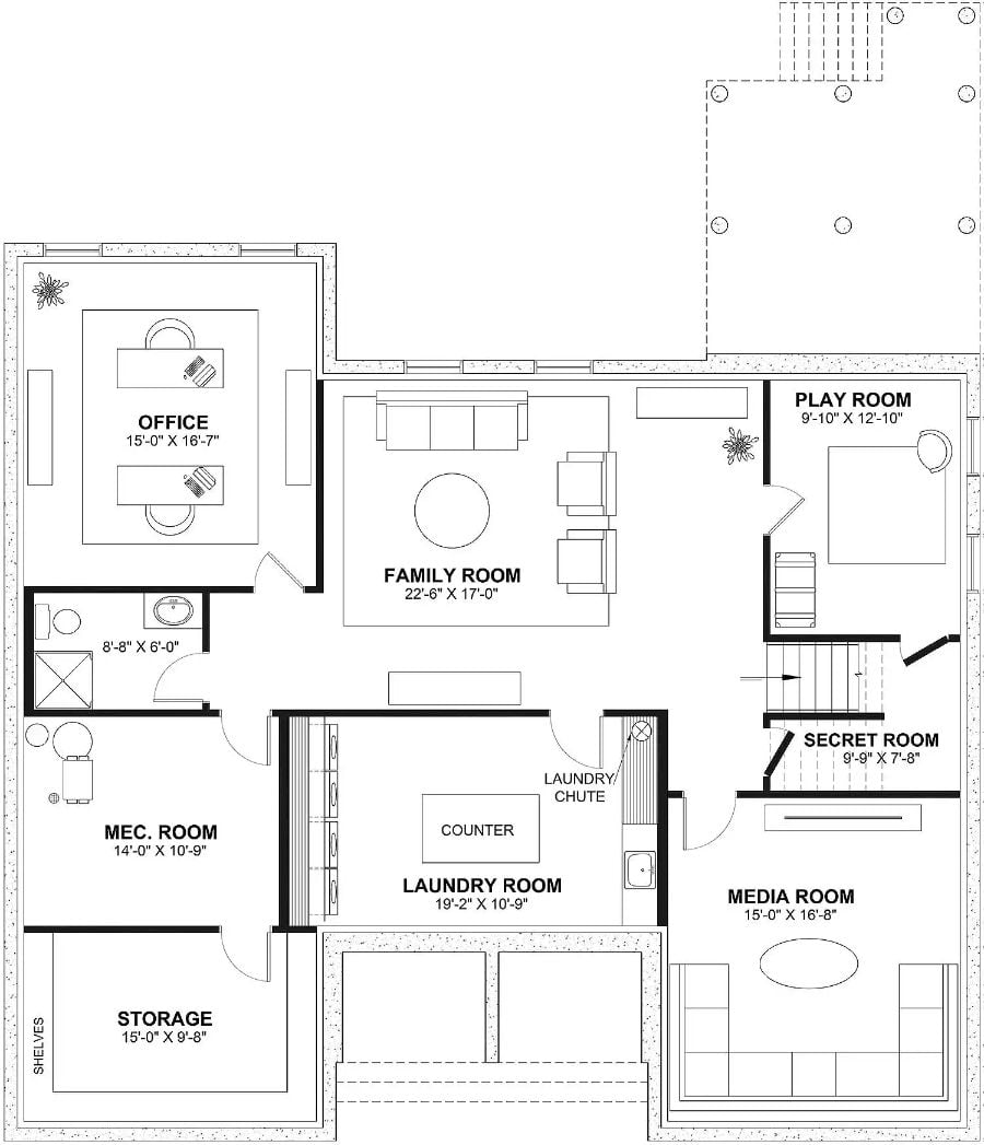
The finished basement layout includes a family room, office, media room, and laundry room with a central counter. A secret room sits tucked beside the play room, accessed off a stairwell. Storage, a mechanical room, and a half bath round out functional zones. Dimensions throughout are generous, with the family room spanning 22 feet 6 inches wide.
Marble Fireplace Wall Anchors a Living Room Built Around Natural Materials

Veined marble tiles frame a gas fireplace flanked by arched built-in shelves. White slipcovered sofas surround a reclaimed wood coffee table set on a jute rug. Light oak flooring and cream drapery keep the palette warm and understated.
Fun Fact: Reclaimed wood coffee tables like this one are often cut from single timber slabs salvaged from barns or industrial buildings, meaning no two pieces share the same grain pattern or edge profile. Pairing one with polished marble creates a contrast that interior designers call “refined rustic.” The combination works because both materials carry visible history.
Farmhouse Sink Buried Under Market Flowers on a Wood-Grain Island

Yellow tulips, pink parrot tulips, and hydrangeas fill a white apron sink. Warm wood cabinetry pairs with marble countertops, brass hardware, and a cone pendant light overhead. A glass-front cabinet displays white ceramics beyond.
Style Tip: Brass faucets develop a natural patina over time, shifting from bright gold to a warmer, darker tone. Many homeowners skip the sealant entirely and let the finish age in place, treating the change as a design feature rather than a flaw worth correcting.
Double-Height Windows Flood a Dining Room with Winter Light

Pale oak floors, a solid wood dining table, and linen host chairs anchor the space. Dried branches in a stoneware vase add vertical interest without color.
Why It Works: Double-height window walls like these require no upper treatments because the grid panes themselves act as architectural detail. Light shifts dramatically across the room through the day, meaning the space reads differently at breakfast than at dinner. Positioning a dining table directly beneath that natural source reduces the need for overhead artificial lighting during daytime meals.
Vaulted Ceiling and Chandelier Give a Primary Bedroom Room to Breathe

Warm oak flooring runs beneath a cream upholstered bed dressed in neutral linens with a single dark accent pillow. A black iron candle-style chandelier hangs from the vaulted ceiling peak. Two windows draw in natural light, and a woven storage trunk anchors the far wall.
Designer’s Secret: Vaulted ceilings in bedrooms create an acoustic benefit most homeowners never anticipate — sound disperses upward rather than bouncing between parallel walls, making the room noticeably quieter. Pairing that volume with warm-toned wood floors pulls the space back down to human scale so it feels restful rather than cavernous.
Freestanding Soaking Tub Positioned to Catch a Snow-Covered View

Marble floors and a picture window do most of the work here.
White oak cabinetry runs the full vanity wall, paired with marble counters and brushed nickel hardware. Sheer curtains flank the window without blocking the winter tree line outside.
Downstairs, the basement laundry room trades utility-room basics for something far more considered.
Four Machines, One Wall, Zero Wasted Motion

Dark slate tile grounds four front-load washers and dryers tucked beneath a continuous countertop. Open shelving, rolling sorting baskets, and gold hanging rods keep every surface working.
Transition: Side-by-side washer and dryer pairs reduce laundry time significantly in large households because two loads run simultaneously. Doubling up also distributes machine wear evenly, extending the lifespan of each unit compared to running a single machine back to back.
Pin It

Exterior rendering shows a two-story white farmhouse with an arched entry and dark roof. Below it, the first-floor plan reveals a 50-by-46-foot layout with a gymnasium featuring a fire pole and climbing wall, a back kitchen, breakfast nook, covered terrace, dining room, living room, foyer, and mudroom.
Try This: Gymnasiums built into residential floor plans often require ceiling heights above 18 feet to safely accommodate climbing walls and poles. If you are working with standard 9-foot ceilings, a sunken floor can add several feet of vertical clearance without changing the roofline. Even a 24-inch drop makes a meaningful difference for overhead fitness equipment.
