
Would you like to save this?
Specifications
- Sq. Ft.: 2,268
- Bedrooms: 3
- Bathrooms: 2.5
- Stories: 1.5
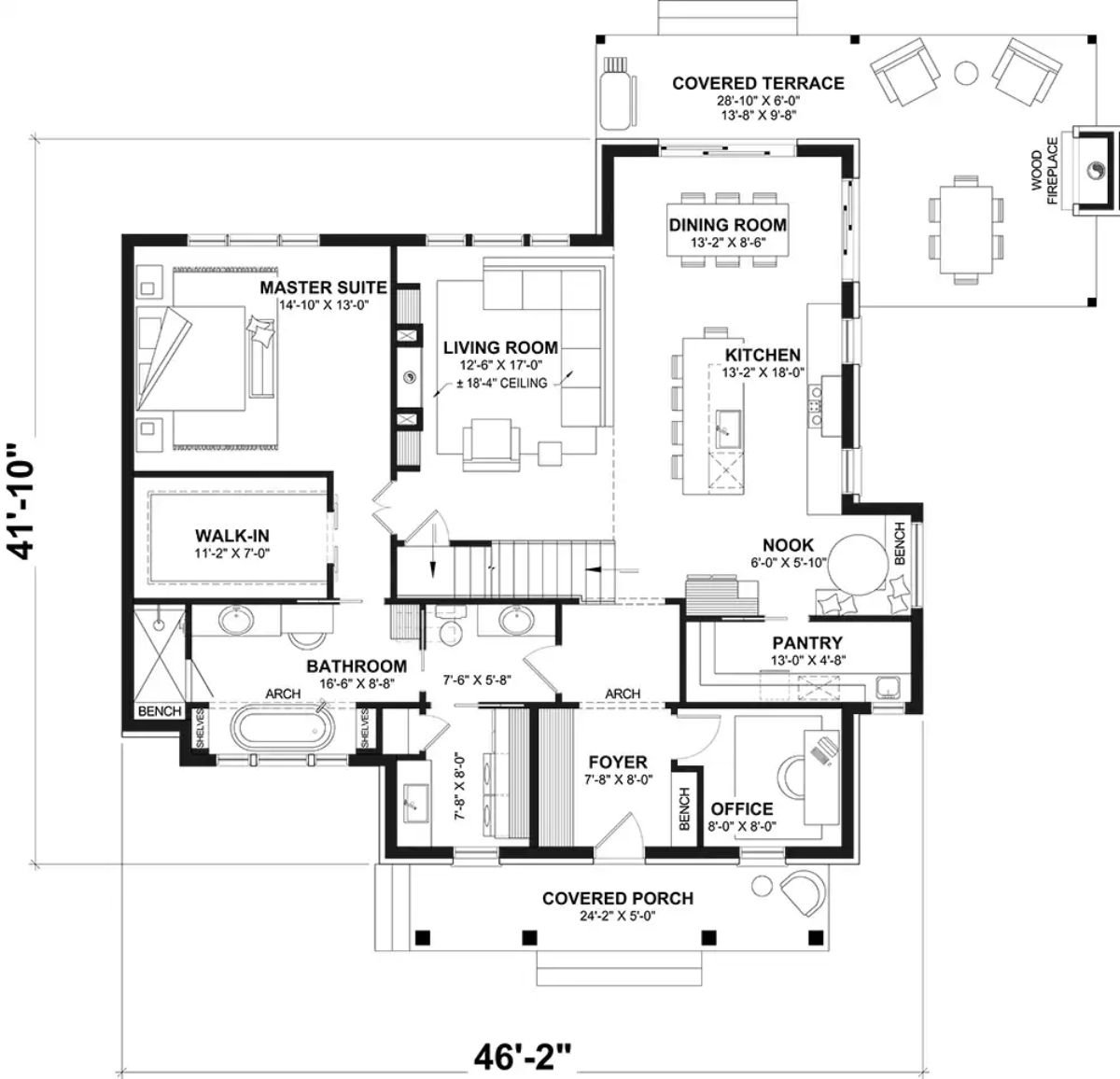
Main Level Floor Plan

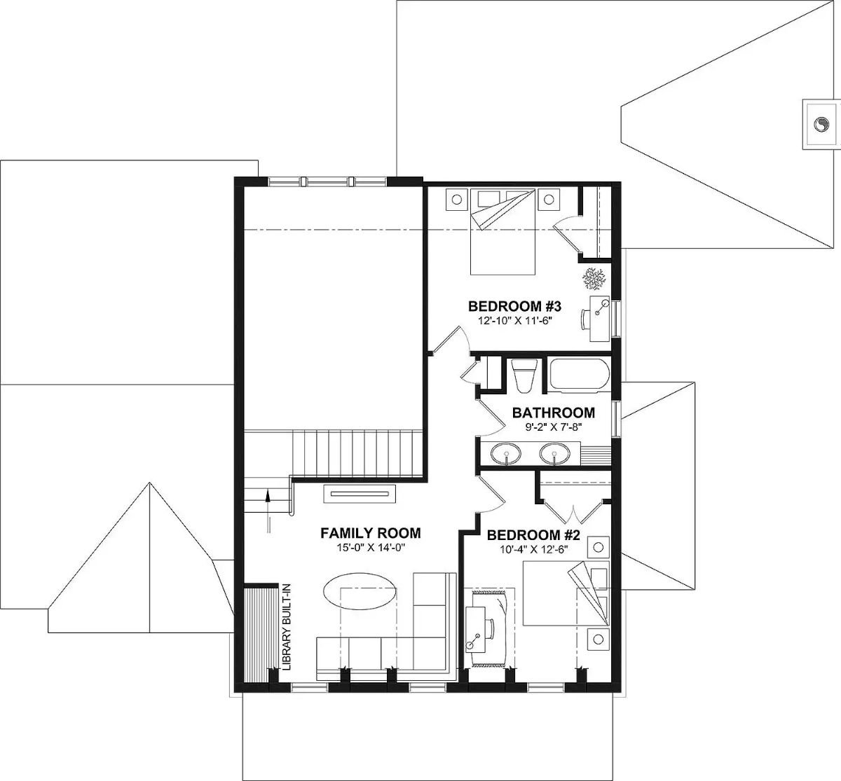
Second Level Floor Plan

🔥 Create Your Own Magical Home and Room Makeover
Upload a photo and generate before & after designs instantly.
ZERO designs skills needed. 61,700 happy users!
👉 Try the AI design tool here
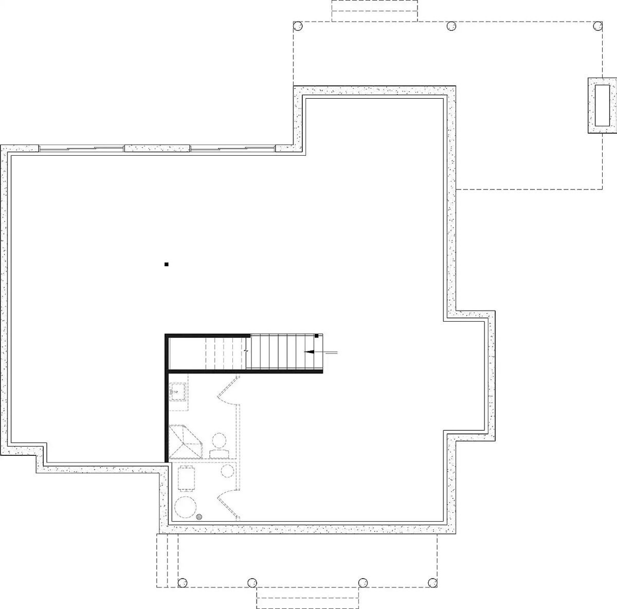
Lower Level Floor Plan

Front View

Rear View

Foyer

Would you like to save this?
Living Room

Living Room

Kitchen

Kitchen

Kitchen

Kitchen

Breakfast Nook

Primary Bedroom

🔥 Create Your Own Magical Home and Room Makeover
Upload a photo and generate before & after designs instantly.
ZERO designs skills needed. 61,700 happy users!
👉 Try the AI design tool here
Primary Bedroom

Primary Bathroom

Primary Bathroom

Laundry Room

Mudroom

Would you like to save this?
Details
This French country-inspired design blends classic charm with a clean, updated look, featuring a welcoming front porch, steep rooflines, and timeless exterior detailing that feels both polished and inviting. The covered side terrace expands the outdoor living setup and adds another comfortable space to enjoy time outside.
Inside, the main level is designed for everyday flow, with the kitchen and dining area connecting directly to the living room for easy movement and conversation. The kitchen includes a large island for prep and casual seating, along with a walk-in pantry and a built-in nook that adds extra flexibility for storage, coffee setup, or a quick bite. A home office sits near the front entry, creating a quiet space for remote work or daily planning without being tucked away from the main areas.
The primary suite is privately positioned on the main floor and includes a large walk-in closet and a spacious bathroom with dual sinks, a separate tub, and a walk-in shower. A nearby powder room adds convenience for guests, while extra storage space helps keep the layout organized.
Upstairs, the second level includes a central family room with built-ins, creating a comfortable hangout space separate from the main living area. Two additional bedrooms are located on this level, along with a full bathroom, giving family members or guests their own dedicated space while keeping the home connected and easy to live in.
Pin It!

The House Designers Plan THD-10692
