
🔥 Would you like to save this?
Specifications
- Sq. Ft.: 2,188
- Bedrooms: 3
- Bathrooms: 2.5
Floor Plan

In order to come up with the very specific design ideas, we create most designs with the assistance of state-of-the-art AI interior design software. Also, assume links that take you off the site are affiliate links such as links to Amazon. this means we may earn a commission if you buy something.
Three bedrooms, vaulted great room, open kitchen, covered front and rear porches.
Floor Plan

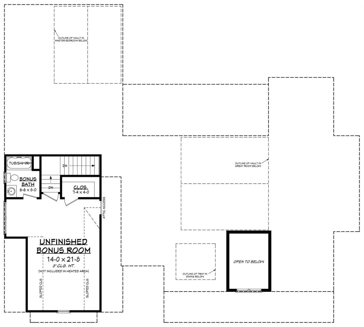
Upper level reveals a bonus room, bath, closet, staircase, and open-to-below foyer space.
Why It Works: The unfinished bonus room measures 14 by 21 feet with 8-foot ceilings, giving future owners real flexibility to finish it as a bedroom, office, or media room. A dedicated bath and closet are already roughed in, so converting the space requires far less work than a typical attic bonus area.
Beyond the floor plan, the dining room brings the farmhouse character to life in a way no blueprint can fully capture.
Warm Wood and White Furniture Define the Dining Room
Coffered wood ceiling panels, bronze pendant lights, built-in shelving, and a white dining set sit on a neutral rug over hardwood floors.
Vaulted Ceilings and a Stone Fireplace Anchor the Great Room

Dark wood beams cross a cathedral ceiling above white sofas and a lit fireplace. Stacked stone climbs floor to peak. A wrought iron chandelier hangs centered. Blue accent pillows add contrast against the neutral palette.
- Exposed beams run the full pitch of the vaulted ceiling
- The stacked stone surround extends from the firebox to the roofline
- Candle-style chandelier links the rustic beams to the fireplace’s iron tones
Mini List: Exposed beams run the full pitch of the vaulted ceiling | The stacked stone surround extends from the firebox to the roofline | Candle-style chandelier links the rustic beams to the fireplace’s iron tones
Warm White Cabinetry and a Wood Island Set the Tone in This Farmhouse Kitchen

White shaker cabinets pair with a light wood island base and white quartz counters. Industrial pendant lights hang above three barstools. A gas range anchors the back wall beneath a painted hood.
In The Details: Mixing cabinet finishes, white perimeter cabinets against a warmer wood island base, is a practical way to break visual monotony without adding color. It also helps define the island as its own zone within an open layout.
Orb Chandelier and Barn Door Bring Character to the Primary Bedroom

Soft sage bedding anchors the neutral palette, pulling color from the blue-gray pillows stacked against an upholstered headboard. A barn door slides on black hardware across a shiplap-style panel wall. Vaulted beamed ceilings draw the eye upward toward a wrought-iron orb chandelier fitted with candle-style bulbs.
Worth Knowing: Barn doors save floor space compared to traditional swing doors, making them a practical choice in bedroom layouts where clearance near the closet or bathroom entry is limited. The sliding hardware here is finished in an oil-rubbed tone that ties back to the chandelier, giving the room a visual thread without matching pieces outright.
Freestanding Tub and Glass Shower Make the Primary Bath Feel Spa-Like

Matte black fixtures contrast against subway tile walls in the walk-in shower. Candlestick holders flank a soaking tub positioned beneath a black-framed window with Roman shades.
Ask Yourself: Subway tile remains one of the most cost-effective ways to cover shower walls without dating the space. Grout color does more visual work than most people expect — dark grout here would read industrial, while bright white keeps the room airy.
Brick Outdoor Fireplace and Wicker Seating Create a Backyard Living Room

Gray brick climbs from the firebox to a full chimney against the board-and-batten wall. Two wicker sofas with white cushions face each other across a mesh coffee table. Boxwood topos in concrete planters anchor the corners. Lavender and ornamental grasses soften the raised deck’s edge. Steps connect the lower patio to the covered dining area above.
Budget Tip: Poured concrete pavers, like the large-format tiles shown here, typically cost less per square foot than natural stone while offering comparable durability in freeze-thaw climates. Sealing them every two to three years prevents staining and keeps the surface looking fresh with minimal effort.
Pin It

Rendered in board-and-batten siding with a covered front porch, this farmhouse exterior pairs with a floor plan below showing three bedrooms, a vaulted great room, an open kitchen, a rear porch spanning over 28 feet, a two-car garage, and a master suite with a dedicated bath and a walk-in closet.
