
🔥 Would you like to save this?
Specifications
- Sq. Ft.: 3,600
- Bedrooms: 3
- Bathrooms: 2
Floor Plan

In order to come up with the very specific design ideas, we create most designs with the assistance of state-of-the-art AI interior design software. Also, assume links that take you off the site are affiliate links such as links to Amazon. this means we may earn a commission if you buy something.
This duplex-style ranch layout mirrors two identical units side by side, each with a master suite, bathroom, living room, kitchen, dining room, foyer, and patio access. A shared garage sits on the right unit. The plan measures 64 feet 8 inches wide by 42 feet 4 inches deep.
Floor Plan

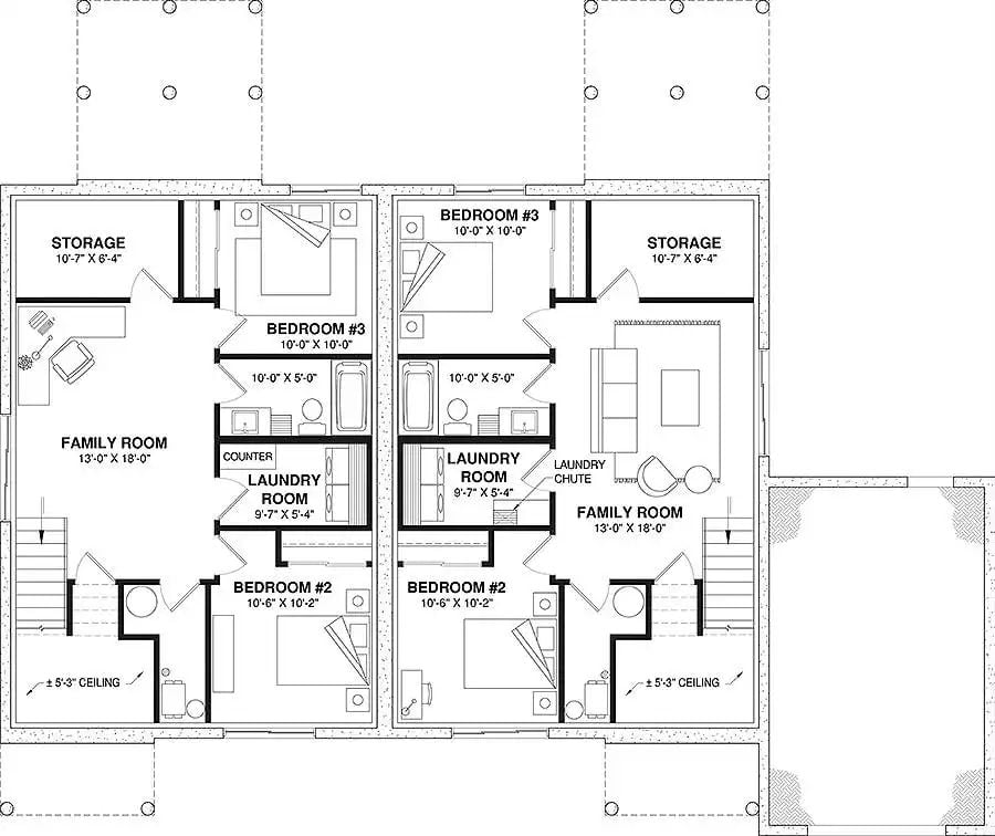
Mirrored layout shows two identical units, each with a family room, two bedrooms, a laundry room, and storage. The shared central wall divides the duplex. Both sides include a staircase and low-ceiling zones.
Budget Tip: Duplicating the same floor plan across both units of a duplex keeps material costs down by allowing bulk purchasing of fixtures and finishes. Ordering identical cabinets, flooring, and plumbing hardware in double quantities often unlocks contractor discounts. Small savings per unit add up quickly across a full build.
Built-In Cabinetry Wall Anchors a Soft, Neutral Living Space
White painted cabinetry with glass doors and wood countertop edges frames a wall-mounted TV. Reeded panels add texture behind the screen. Hardwood floors, an oval upholstered ottoman, and a sage-toned rug keep the palette warm and grounded.
Reeded panels add texture behind the screen.
Warm Wood Tones and Barrel Chairs Define an Inviting Dining Space

Herringbone hardwood floors anchor a dining room with a trestle table, barrel chairs in cream upholstery, and a brass chandelier with cylindrical glass shades.
Color Story: Warm whites and natural oak work together here because neither competes for dominance. The cream upholstery pulls color from the wood grain rather than contrasting against it. Built-in cabinetry painted soft white keeps the palette cohesive without feeling flat.
The kitchen pulls the design forward with a mix of materials that reward a closer look.
Marble Countertops and Brass Fixtures Set the Tone in an Open Kitchen

Veined marble tops the island and perimeter counters. Natural wood cabinets pair with sage uppers. Brass hardware and pendant lights with gold rings tie the metal finishes together throughout.
Fluted Island Panels and Layered Pendant Lighting Shape an Open-Plan Kitchen

Fluted white panels wrap the island base while warm oak cabinetry frames the refrigerator column. Pleated cone pendants hang above quartz counters, and a double oven anchors the range wall beside marble-look backsplash tile.
Why It Works: Open-plan kitchens benefit from visual anchors that separate zones without walls. The fluted island panel does exactly that, giving the space a defined boundary between cooking and living without blocking sightlines. Varying the cabinet finish between upper whites and lower wood tones also reduces visual monotony across a long run of cabinetry.
Freestanding Tub and Framed Artwork Bring Depth to a Spa-Style Bathroom

Oval soaking tub pairs with black floor-mount faucet, paneled walls, and warm wood open shelving.
Editor’s Note: Hanging a painting above a bathtub works best when the frame sits at least six inches above the tub deck to avoid moisture damage over time. Oil paintings on canvas handle humidity better than paper-based prints in bathroom settings.
Pin It

Rendered in a modern craftsman style, the exterior photo shows white brick cladding, dark trim, and a two-car garage. Below it, the floor plan reveals a duplex layout spanning 64 feet 8 inches wide, with each unit containing a master suite, living room, kitchen, bathroom, dining room, foyer, and patio access.
