
🔥 Would you like to save this?
Specifications
- Sq. Ft.: 2,288
- Bedrooms: 2
- Bathrooms: 2
Floor Plan

In order to come up with the very specific design ideas, we create most designs with the assistance of state-of-the-art AI interior design software. Also, assume links that take you off the site are affiliate links such as links to Amazon. this means we may earn a commission if you buy something.
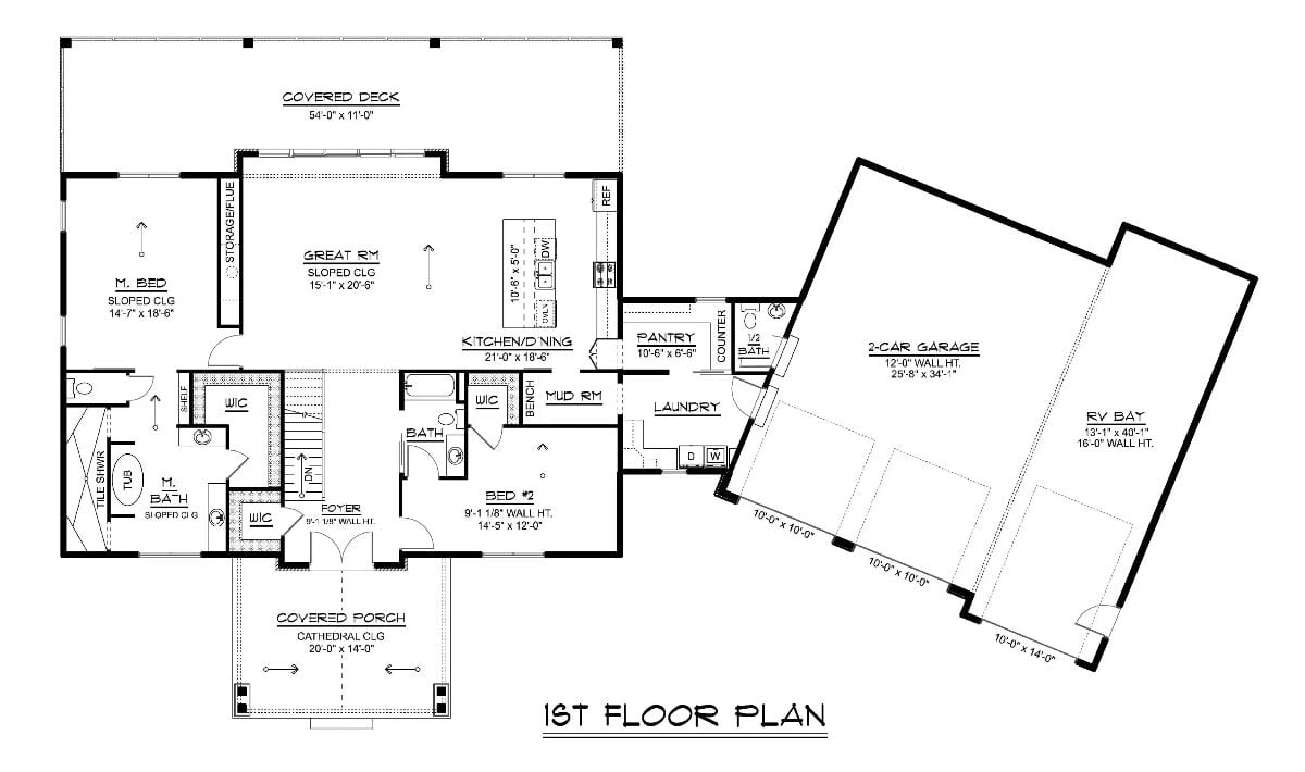
Main bedroom, second bedroom, great room, kitchen, mud room, laundry, and angled garage layout.
Floor Plan

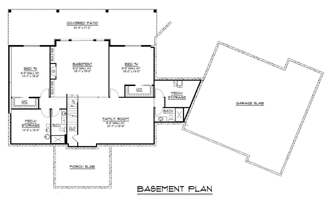
The basement level holds two bedrooms, each with a walk-in closet, plus a shared bath near the staircase. A family room anchors the center of the plan. Mechanical and storage rooms appear on both sides of the layout. A covered patio stretches across the rear, while an angled garage slab sits separately to the right.
Ask Yourself: Does your lot slope enough to make a walkout basement worth the investment? A lower level like this one adds two bedrooms and a family room without expanding the home’s footprint. That square footage often costs less per foot to finish than above-grade space.
Dark Siding Meets Stone Accents on a Walkout Rear Elevation
Charcoal vertical siding, natural stone columns, glass panel railings, and large black-framed windows define this rear exterior.
Glass Railings on the Covered Deck
Glass panel railings keep sightlines open from the upper deck without blocking views of the yard or tree line beyond. Paired with wood posts and a broad overhanging roofline, they strike a balance between shelter and openness. That combination works especially well on rear-facing decks where outdoor visibility matters as much as weather protection.
Step inside the main living area, and the connection between indoors and outdoors becomes impossible to ignore.
Clerestory Windows and Sliding Glass Doors Pull the Backyard Into the Living Room

Brown leather sofa faces a wood credenza and wall art. Clerestory windows stack above floor-to-ceiling sliders opening to a wood deck overlooking an open lawn.
Marble Island, Wood Hood, and Brass Fixtures Define This Kitchen’s Character

Warm leather barstools line a waterfall marble island beneath white drum pendants with brass hardware. Shaker cabinets in cream surround a wood range hood in walnut tones. A gold faucet and marble backsplash tie the cooking zone together with quiet precision.
Worth Knowing: Waterfall islands extend the countertop material down the sides of the island base, adding visual weight and protecting against scuffs and bumps from barstools. Pairing a stone waterfall with a contrasting wood hood, as seen here, keeps either element from overpowering the space.
Candlelight Chandelier and Reclaimed Wood Anchor an Open Dining Space

Reclaimed wood carries through the dining table, kitchen island base, and range hood, tying together two zones without forcing a match. White upholstered chairs soften the rough grain. A rectangular iron chandelier holds candle-style lights above the table. Dark ceramic vessels sit on a sideboard with an arched mirror behind it.
By The Numbers: Rectangular candle-style chandeliers typically measure between 36 and 60 inches long, sized to hang within 12 inches of the table edge on each side. Hanging height matters too — 30 to 36 inches above the tabletop keeps light focused without blocking sightlines across the table.
High Ceilings, Clerestory Light, and Natural Wood Ground a Serene Primary Suite

Light oak furniture, an upholstered headboard, and a gray linen duvet fill this bedroom. Black window frames contrast with the beige walls, while a drum pendant anchors the ceiling above.
Quick Fix: Clerestory windows, positioned above eye level, bring in daylight without sacrificing wall space or privacy. They work especially well in bedrooms where you want light without direct sightlines from outside. Pairing them with lower windows, as shown here, keeps the room bright throughout the day as the sun shifts position.
Freestanding Soaker, Brick Surround, and Vessel Sinks Shape a Spa-Like Primary Bath

Oval freestanding tub sits against subway tile walls beside a walk-in shower. Wood-grain vanity holds two vessel sinks with brass fixtures under round gold-framed mirrors and a three-bulb sconce.
Common Mistake: Placing a freestanding tub directly on wood-look flooring rather than a tiled platform makes it easier to reposition fixtures during a renovation. However, ensure the subfloor is rated for the weight of a filled tub, which can exceed 500 pounds before accounting for an occupant.
Pin It

Exterior rendering shows a modern ranch with stone accents and a 3-car garage. Below, the floor plan reveals two bedrooms, an RV bay, and a covered deck.
