
🔥 Would you like to save this?
Specifications
- Sq. Ft.: 2,081
- Bedrooms: 3
- Bathrooms: 2.5
- Stories: 2
- Garage: 2-3
[su_spacer]
In order to come up with the very specific design ideas, we create most designs with the assistance of state-of-the-art AI interior design software. Also, assume links that take you off the site are affiliate links such as links to Amazon. this means we may earn a commission if you buy something.
Main Level Floor Plan

Second Level Floor Plan

Lower Level Floor Plan
[su_spacer]
Open-Concept Living

Kitchen

Kitchen

Living Room

Living Room

Covered Deck

[su_spacer]
Details
This mountain contemporary home features a strong, modern profile with clean rooflines, natural materials, and expansive covered porches that take advantage of elevated views. The exterior design is straightforward and purposeful, with outdoor spaces layered across levels to extend everyday living without overcomplicating the structure.
The main living level is organized around a vaulted great room that serves as the center of the home. It connects directly to the kitchen, creating an open and functional space for daily use. The kitchen includes generous prep and storage areas and flows easily into the great room, keeping the layout practical and efficient. Multiple covered porches and an open deck extend from this level, providing direct access to outdoor spaces from the main living areas.
The primary bedroom is located on the main level and set apart from shared spaces for privacy. It includes a private bathroom and a walk-in closet. The stairway to the lower level is centrally placed but does not interrupt the main living space.
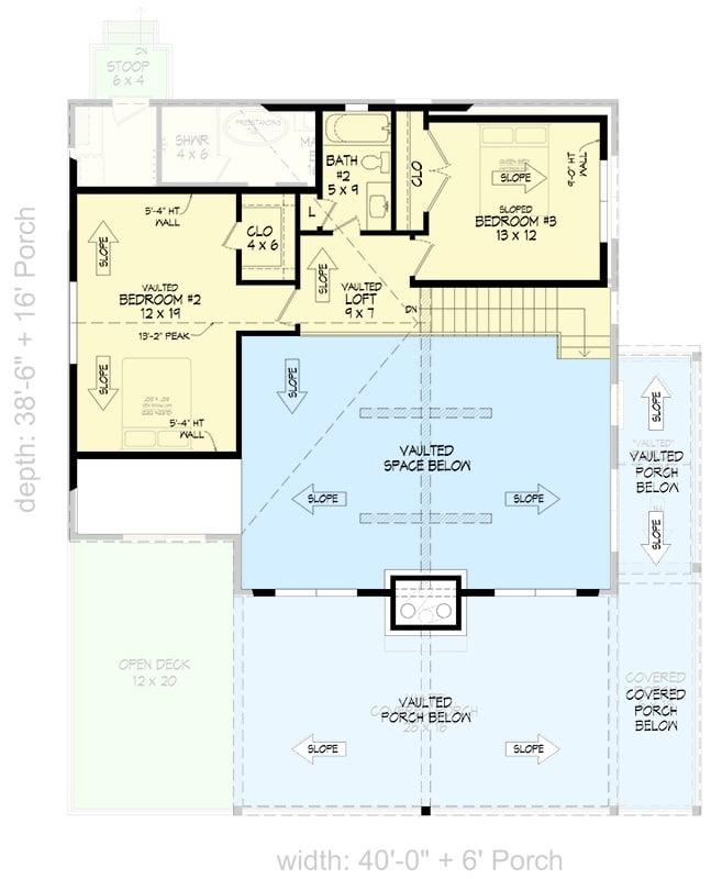
The upper level overlooks the great room below and includes additional bedrooms arranged off a central loft area. These rooms share a full bathroom and are positioned to maintain separation from the primary suite while staying connected to the rest of the home.
The lower level is designed for flexibility and utility. It includes multiple garage spaces, storage areas, and a large flex room that can be adapted for recreation, work, or additional living space. Interior stairs connect all levels, allowing the home to function comfortably as a single, cohesive layout.
Pin It!

Architectural Designs Plan 680638VR
🔥 Would you like to save this?
Tour This 2,512 Sq. Ft. 3 Bedroom Home with Bonus Room and Angled Garage — Floor Plan Included
Sq. Ft.: 2,512 | Bedrooms: 3 | Bathrooms: 2
Discover 4,036 Sq. Ft. of Inspired Living in This 3 Bedroom Home — Floor Plan Included
Sq. Ft.: 4,036 | Bedrooms: 3 | Bathrooms: 3.5
The Destination 3-Bedroom Two-Story Contemporary Home with Loft and Open Concept Living (Floor Plan)
Sq. Ft.: 3,299 | Bedrooms: 3 | Bathrooms: 3.5
3-Bedroom Contemporary Mountain Home with Wraparound Porch and Multiple Lofts (Floor Plan)
Sq. Ft.: 2,655 | Bedrooms: 3 | Bathrooms: 3.5

