
🔥 Would you like to save this?
Specifications
- Sq. Ft.: 2,555
- Bedrooms: 3
- Bathrooms: 3
Floor Plan

In order to come up with the very specific design ideas, we create most designs with the assistance of state-of-the-art AI interior design software. Also, assume links that take you off the site are affiliate links such as links to Amazon. this means we may earn a commission if you buy something.
The main level features an open great room connected to the kitchen and dining area. A den sits near the foyer entry. The three-car garage includes boat bay storage. Two covered outdoor spaces flank the front, with a BBQ porch and outdoor living area providing entertainment zones.
Floor Plan

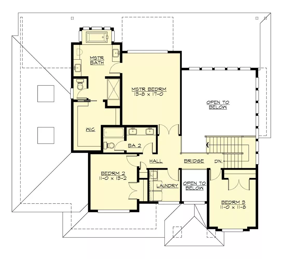
Upper level features master bedroom with ensuite bath, walk-in closet, two secondary bedrooms, bathroom, laundry, and bridge overlooking below.
Wood-Paneled Living Room with Built-In Entertainment Wall and Fireplace
Gray sofas face each other across a dark wood coffee table. White sheepskin throws add texture. A horizontal fireplace sits beneath a wall-mounted TV, flanked by built-in cabinets with warm accent lighting. Wood panels create rich contrast against white walls and ceiling.
Dining Room with Floor-to-Ceiling Windows and Skylight Tray Ceiling

Natural light floods this dining space through expansive windows and dual skylights. Dark hardwood floors contrast with gray walls and white trim details throughout.
Try This: Position your dining table perpendicular to large window walls to give every seat a view of the outdoors. Add a tray ceiling with recessed skylights to bring in overhead natural light without sacrificing wall space for art or cabinetry.
Serene Master Bedroom with Carpet Flooring and Private Ensuite Access

Soft beige walls frame a king bed dressed in neutral linens beneath a large picture window overlooking treetops. Dark wood furniture contrasts with cream carpet. Twin lamps flank the bed, while a mounted flat-screen TV anchors the opposite wall.
Spa-Inspired Master Bath with Glass-Enclosed Shower and Walk-In Closet

White vanity with dual undermount sinks anchors this bathroom. Glass shower enclosure features built-in shelving. Wood-look tile flooring extends throughout. Doorway opens to organized closet space.
Two-Story Home with Horizontal Siding and Covered Porches

This two-story residence features dark horizontal siding with contrasting trim that emphasizes its low-pitched rooflines. Large window groupings span both levels, bringing abundant light inside. A covered porch extends along the right side with decorative railings. Mature trees frame the property while manicured landscaping borders the foundation. A spacious lawn creates an inviting approach to the home’s main entrance.
Pin It

