
Would you like to save this?
Specifications
- Sq. Ft.: 2,292
- Bedrooms: 3-4
- Bathrooms: 2-3
- Stories: 1
- Garage: 3
Main Level Floor Plan

Bonus Level Floor Plan

🔥 Create Your Own Magical Home and Room Makeover
Upload a photo and generate before & after designs instantly.
ZERO designs skills needed. 61,700 happy users!
👉 Try the AI design tool here
Lower Level Floor Plan

Front-Right View

Rear-Right View

Rear View

Would you like to save this?
Rear-Left View

Front-Left View

Covered Porch

Dining Room

Dining Room

Great Room

Great Room

Kitchen

🔥 Create Your Own Magical Home and Room Makeover
Upload a photo and generate before & after designs instantly.
ZERO designs skills needed. 61,700 happy users!
👉 Try the AI design tool here
Kitchen

Primary Bedroom

Primary Bedroom

Primary Bathroom

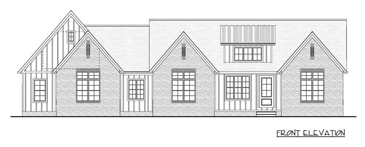
Front Elevation

Would you like to save this?
Right Elevation

Left Elevation

Rear Elevation

Details
This mountain ranch presents a balanced mix of stone, vertical siding, and clean gable lines that give it a strong, grounded presence without feeling oversized. Large windows and a centered entry create a welcoming front elevation that feels equally suited to rural land or a quiet residential setting.
Inside, the main level is organized around an open living, dining, and kitchen area that prioritizes visibility, natural light, and everyday functionality. The kitchen anchors the space with a large island and walk-in pantry, flowing easily into the dining area and great room for casual gatherings or larger groups.
The primary bedroom is privately positioned on one side of the home, with an attached bathroom and walk-in closet that keep daily routines contained and efficient. Two additional bedrooms are grouped nearby with a shared bathroom, making the layout practical for family living or guests.
A mudroom, laundry area, and direct access to the garage help manage daily traffic without cutting through the main living spaces. An optional bonus space above the garage adds versatility, suitable for a home office, hobby room, or overflow living area.
The lower level expands the home’s flexibility with a large recreation room that works for media, games, or casual entertaining. A wet bar adds convenience, while an additional bedroom and bathroom make the level comfortable for extended stays. Unfinished areas provide storage or future build-out options, allowing the home to adapt over time without altering the core layout.
Pin It!

Architectural Designs Plan 911065JVD
