
🔥 Would you like to save this?
Specifications
Sq. Ft.: 2,674
Bedrooms: 4
Bathrooms: 2.5
Stories: 1
Garage: 3
In order to come up with the very specific design ideas, we create most designs with the assistance of state-of-the-art AI interior design software. Also, assume links that take you off the site are affiliate links such as links to Amazon. this means we may earn a commission if you buy something.
Main Floor Plan

Front View

Primary Bathroom
Primary Bathroom

Primary Bathroom

Rear Elevation

Details
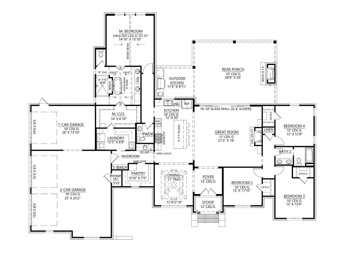
A beautiful ranch with streamlined transitional appeal, House Plan 7505 makes a perfect home for today’s families. It offers 2,674 square feet with four split bedrooms and spacious living. A dining room with a trayed ceiling sits beside the foyer, while the kitchen is open to the great room when you step inside.
Three bedrooms with walk-in closets are tucked into the hallway behind the great room. They share a common four-piece hall bath and have a linen closet nearby as well. The vaulted master suite is privately located in the hallway that stretches back behind the kitchen.
It has a luxurious five-piece bathroom and a walk-in closet that connects directly to the laundry room for convenience. Last but not least, a three-car side-entry garage enters into the home through a mudroom with a storage bench, wet bar, and pantry to take in groceries.
House Plan 7505 even offers outdoor living with a fireplace and outdoor kitchen inthe back, so you can expand outside at your leisure!
Pin It!

The House Designers Plan 7505
🔥 Would you like to save this?
4-Bedroom European French Home with Bonus Room and Jack & Jill Bath (Floor Plan)
Sq. Ft.: 2,851 | Bedrooms: 4 | Bathrooms: 5
Rambling French-Style 4-Bedroom Grand Destin Home for a Corner Lot with 3-Car Garage (Floor Plan)
Sq. Ft.: 3,047 | Bedrooms: 4 | Bathrooms: 4.5
Come Tour This 4-Bedroom Rustic French Country Home Designed for Wide Lots (Over 4,000 Sq. Ft. Floor Plan)
Sq. Ft.: 4,001 Bedrooms: 4 Bathrooms: 3.5
French Country-Style 4-Bedroom Home for a Wide Lot with Balcony (Floor Plan)
Sq. Ft.: 5,991 | Bedrooms: 4 | Bathrooms: 4.5
Step Inside this Delightful 4-Bedroom Acadian-Style Home (2D Floor Plan Drawings Included)
Sq. Ft.: 2,684 | Bedrooms: 4 | Bathrooms: 3.5

