
🔥 Would you like to save this?
Specifications
- Sq. Ft.: 3,618
- Bedrooms: 4-5
- Bathrooms: 4
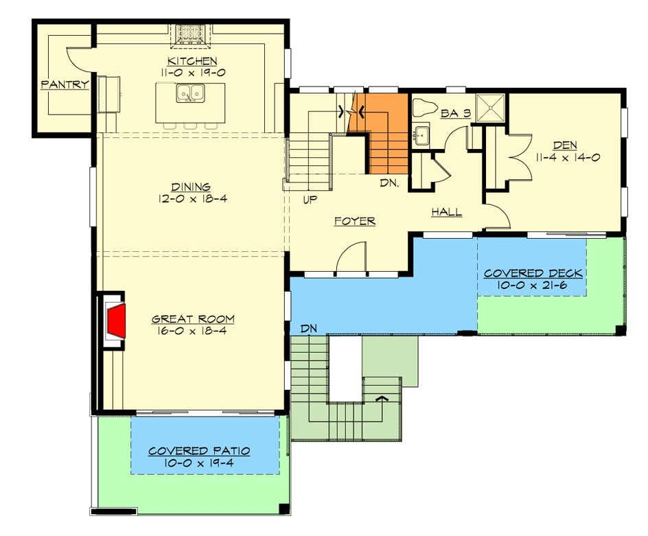
Floor Plan

In order to come up with the very specific design ideas, we create most designs with the assistance of state-of-the-art AI interior design software. Also, assume links that take you off the site are affiliate links such as links to Amazon. this means we may earn a commission if you buy something.
This main level centers on an open great room, dining area, and kitchen with a pantry. A foyer connects to a den, hall, and bathroom. Stairs lead up and down, with a covered deck off the right wing and a covered patio along the rear. The layout suits a sloped lot well.
Floor Plan

Upper level hosts three bedrooms and a master suite with two walk-in closets. The master bath connects directly to the bedroom. A central hall links the laundry room, second bath, and staircase. Two decks extend from opposite ends of the floor.
Editor’s Note: The master suite on this floor claims nearly 257 square feet of sleeping space alone, not counting the two separate walk-in closets or the private bath. Few upper-level layouts dedicate this much square footage to the primary bedroom. The second deck off bedroom three adds outdoor access that most homes reserve only for the master suite.
Floor Plan
Lower-level layout places Bedroom 4 with a walk-in closet and private Bath 4 beside a rec room measuring nearly 235 square feet. A mud room connects to the drive-under 2-car garage. Crawl space spans the rear foundation zone beneath the main living areas.
Material Matters: Mud rooms positioned between a garage entry and living spaces act as a functional buffer, giving household members a dedicated spot to drop boots, bags, and wet gear before reaching main rooms. Durable materials like tile flooring and painted shiplap walls hold up well in high-traffic transition zones. Built-in cubbies or bench seating with storage underneath make the space work harder without requiring extra square footage.
Dark Table, White Chairs, and a Fireplace That Anchors Two Rooms at Once

Ebony dining table pairs with white upholstered chairs beneath a brass-and-glass pendant over hardwood floors and a floor-to-ceiling slate fireplace surround.
Trend Alert: Open-plan dining rooms that share a fireplace with the living area are gaining ground in new construction. Positioning the firebox inside a structural tile column lets it serve both spaces without requiring duplicate fixtures. Designers often choose large-format dark tile for the surround to give the column visual weight that grounds the open floor plan.
Slate Tile, Wood Frames, and a Linear Fireplace Built for Gathering

Dark slate tile runs floor to ceiling on the fireplace wall, anchoring the room without competing with the light wood chair frames and white upholstery. Two accent chairs face the linear gas firebox at close range. A fiddle-leaf fig pulls height into the corner. Sliding glass doors push the room outward toward a patio and lawn.
By The Numbers: Linear gas fireplaces like this one typically measure between 36 and 72 inches wide and require a dedicated gas line plus a direct-vent system routed through an exterior wall. Floor-to-ceiling tile surrounds can require 40 or more large-format tiles, depending on wall height. Grout joint width on large-format tile is usually kept at 1/16 inch or less for a clean, monolithic look.
Black Cabinets, Wood Range Hood, and an Island Built for Three

Quartz countertops paired with black cabinetry create contrast that carries the entire room.
Striped barstools line a waterfall island with an undermount sink. Globe pendants hang in brass. A wood-clad range hood anchors the cook wall between upper cabinets with bar-pull hardware.
Light Wood, Black Leather, and a View That Does Most of the Work

A blonde wood desk anchors the room against concrete floors and a cowhide rug. A black office chair and round mirror add contrast while two windows pull greenery and open sky directly into the workspace.
Two windows pull greenery and open sky directly into the workspace.
Sliding Glass, Carpet, and a Balcony That Pulls the Bedroom Outside

Cream carpet runs wall to wall beneath a king bed dressed in white linens. Black throw pillows anchor the neutral palette. Sliding glass doors open onto a wood-deck balcony with Adirondack chairs. Recessed ceiling lights and a fiddle-leaf fig complete the space.
Ask Yourself: How much square footage are you willing to dedicate to outdoor access from a bedroom? A private balcony off a primary suite adds cost during construction but can meaningfully change how the room functions day to day. Consider whether you’d use it for morning coffee or if it would simply look good in listing photos.
Freestanding Tub, Glass Shower, and Black Hardware Against White Stone

White marble tile, black matte fixtures, a floating vanity, and eucalyptus greenery define this primary bath.
- Floor-mount faucet placement must be finalized before the concrete or subfloor closes up
- Supply lines need to reach the tub base without crossing traffic paths
- Drain location determines whether the tub can sit centered or must hug one wall
Mini List: Freestanding soaking tubs require a floor-mounted filler faucet rather than a wall-mounted one, which means rough plumbing must be planned well before tile goes down. Getting that location wrong costs significant money to fix later.
Covered Patio, Infrared Heater, and a Backyard Built Around Green Space

Metal dining set, French press, concrete patio, artificial turf lawn, and tree-lined views beyond black railing.
Pin It

Gray board-and-batten siding and black iron railings define the exterior of this contemporary home built into a sloped lot, with garage doors tucked beneath the main level. The floor plan below shows a main floor organized around a great room, open kitchen, dining area, den, foyer, and two covered outdoor spaces connected to the living zones.
🔥 Would you like to save this?
Step Inside this 5-Bedroom Contemporary Home with a hint of Northwest Style (Floor Plan)
Sq. Ft.: 4,247 | Bedrooms: 5 | Bathrooms: 4.5
Step Inside This 5 Bedroom House with Balcony Loft and Jack & Jill Bathrooms – 3,453 Sq. Ft. Floor Plan Included
Sq. Ft.: 3,453 | Bedrooms: 5 | Bathrooms: 3.5
Discover the Blend of Classic and Contemporary in This Expansive 3,573 Sq. Ft. 5-Bedroom Modern Farmhouse (Must-See Floor Plan)
Sq. Ft.: 3,573 Bedrooms: 5 Bathrooms: 4
Step Inside This Bold 4-Bedroom Contemporary Farmhouse with Walk-Out Basement and Black Garage Doors
Sq. Ft.: 3,049 | Bedrooms: 3-5 | Bathrooms: 2.5-3.5
Discover the Fusion of Modern 5-Bedroom Barn-Style Architecture and Nature in This 3,370 Sq. Ft. Home (Must-See Floor Plan)
Sq. Ft.: 3,370 | Bedrooms: 4-5 | Bathrooms: 3.5

