
Would you like to save this?
Specifications
- Sq. Ft.: 1,445
- Bedrooms: 1-2
- Bathrooms: 2-3
- Stories: 1
- Garage: 3
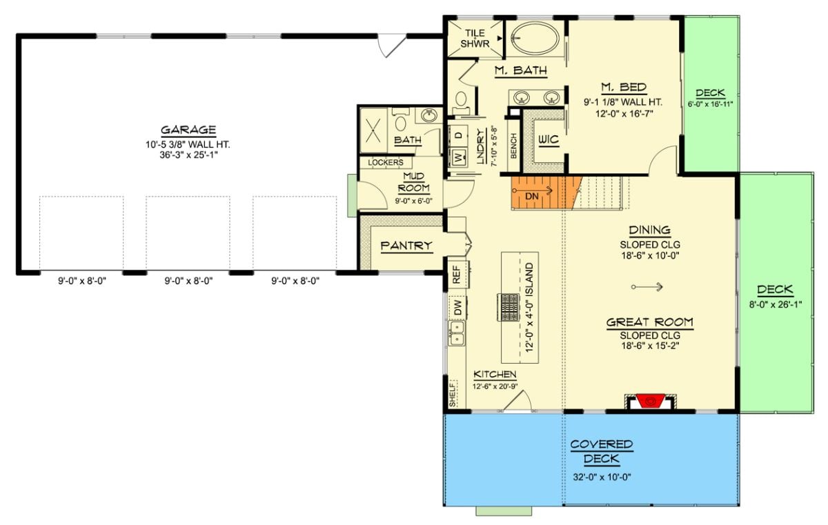
Main Level Floor Plan

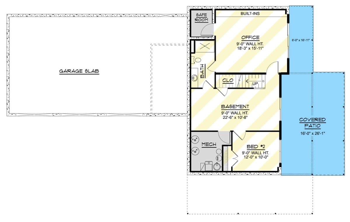
Lower Level Floor Plan

๐ฅ Create Your Own Magical Home and Room Makeover
Upload a photo and generate before & after designs instantly.
ZERO designs skills needed. 61,700 happy users!
๐ Try the AI design tool here
Front-Left View

Rear-Left View

Front-Right View

Right View

Would you like to save this?
Right View

Great Room

Kitchen

Dining Room

Office

Primary Bedroom

Primary Bedroom

Primary Bathroom

๐ฅ Create Your Own Magical Home and Room Makeover
Upload a photo and generate before & after designs instantly.
ZERO designs skills needed. 61,700 happy users!
๐ Try the AI design tool here
Bedroom

Basement

Details
This contemporary home delivers 1,445 square feet of finished living space with up to two bedrooms, three bathrooms, and a spacious 1,025-square-foot three-car garage. The entry begins at a welcoming front porch that leads into a foyer, with a flexible room nearby that can function as a home office or second bedroom.
At the center of the layout, an open-concept great room connects seamlessly to a gourmet kitchen featuring a large island and a walk-in butlerโs pantry, creating an ideal space for everyday living and entertaining. The primary suite is thoughtfully positioned for privacy and includes a luxurious ensuite bathroom, along with a walk-in closet that offers direct access to the laundry room for added convenience.
A dedicated mudroom creates an organized transition between the side-entry garage and the main living areas. Outdoor living is enhanced by 631 square feet of wraparound decking, providing ample space to enjoy fresh air and views.
An unfinished 1,067-square-foot walkout basement adds significant potential for future expansion, whether for additional living space, recreation, or storage.
Pin It!

Architectural Designs Plan 135415GRA
