
🔥 Would you like to save this?
Specifications
- Sq. Ft.: 2,321
- Bedrooms: 3
- Bathrooms: 2.5
Floor Plan

In order to come up with the very specific design ideas, we create most designs with the assistance of state-of-the-art AI interior design software. Also, assume links that take you off the site are affiliate links such as links to Amazon. this means we may earn a commission if you buy something.
The main floor centers on an open family room connected to the kitchen, nook, and dining area. The master suite sits in the upper left with a private bath and walk-in closet. Two additional bedrooms share a bath on the right. A study, foyer, powder room, two-car garage, and covered porch round out the layout.
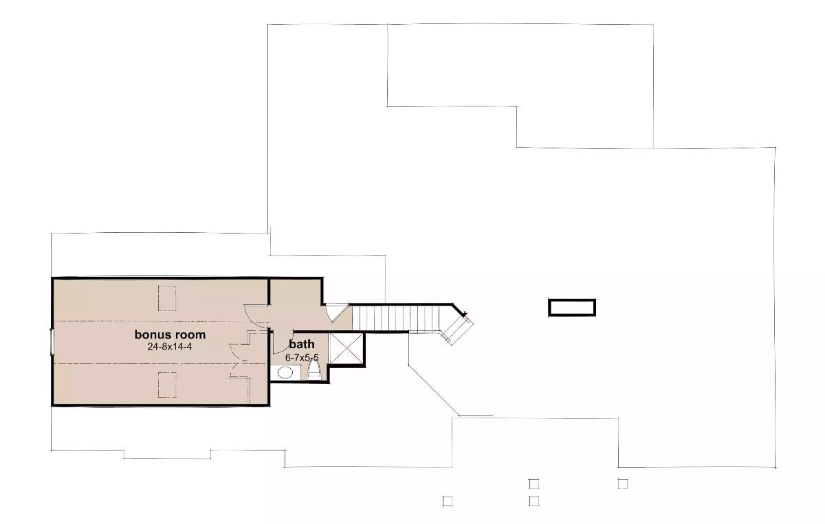
Floor Plan

Upper level holds a bonus room at 24×14 feet with an adjacent bath. The staircase connects to the lower floors, making this space ideal for a home office or media room.
Rain Chain Column Detail Anchors a Craftsman Porch with Stone Base
Linked disc rain chains hang from white columns set on stacked stone bases. Light blue beadboard ceiling, natural wood door, and lantern sconces complete the entry.
Linked disc rain chains hang from white columns set on stacked stone bases.
Craftsman Front Entry Pairs Warm Wood Tones with Light Gray Walls

Solid wood entry door features grid-lite upper panels and raised lower panels. Light oak hardwood floors, white painted trim, and soft gray walls carry through into an adjacent room.
Ask Yourself: Would you keep the wood door natural or paint it to match the white trim? Natural finishes add warmth to neutral walls, but painted doors can sharpen a Craftsman look considerably.
Coffered Ceiling and Column Framing Define an Open Living Space with an Active Fireplace

Warm oak hardwood runs wall to wall beneath a coffered ceiling. White columns frame the kitchen transition. A gas fireplace burns behind black-framed glass, topped by a gold-framed landscape painting above a white mantel.
Craftsman Columns as Spatial Dividers
Square white columns here do more than hold weight. They mark the boundary between living and kitchen zones without closing off sightlines or blocking natural light from the windows beyond. Pairing them with a curved half-wall and stone-look countertop edge keeps the division soft rather than rigid.
Granite Island with Seating Anchors an Open Kitchen in Soft White and Steel

White shaker cabinets, subway tile backsplash, and a stainless steel range hood frame an island topped with gray granite. Three swivel bar stools and pendant lights complete the space.
Budget Tip: Swivel bar stools cost less than upholstered counter chairs and hold up better in high-traffic kitchens. Look for metal frames with padded seats, which balance durability with comfort at a lower price point than fully cushioned options.
Mountain Views and Hardwood Floors Make Every Inch of This Bedroom Count

Natural oak hardwood runs wall to wall beneath soft gray paint. A double window frames tree canopy and distant mountain ridges. Recessed lighting sits inside a tray ceiling with crown molding. French door access opens directly onto a covered deck with white railing.
Fun Fact: Tray ceilings typically add 9 to 12 inches of visual height to a room without raising actual ceiling height. Builders create them by framing a recessed center panel, which also gives electricians a natural zone for recessed lighting placement.
Freestanding Soaking Tub Faces a Double Garage Through Oversized Windows

Bamboo tub caddy, glass-enclosed shower with mosaic tile accent band, and gray large-format floor tile connect to a walk-in closet beyond.
In The Details: Freestanding tubs sit on the floor rather than against a wall, which means plumbing must be roughed in through the floor slab or subfloor during construction. Relocating that plumbing later costs significantly more than planning for it upfront. If a soaking tub is on your wish list, add it before the concrete is poured.
Pin It

Exterior rendering shows a gray Craftsman ranch with a covered front porch and stone columns. The floor plan below reveals three bedrooms, a master suite, an open family room, a kitchen with a nook, a study, and a two-car garage.
Quick Fix: Ranch-style homes place all living space on one level, which makes them easier to expand outward if the lot size allows. Adding square footage to a single-story structure typically costs less per square foot than building up because no staircase or load-bearing floor system is required.
🔥 Would you like to save this?
Discover This 2,547 Sq. Ft. 3 Bedroom Home with Angled Garage and Covered Patio – Floor Plan Included
Sq. Ft.: 2,574 | Bedrooms: 3 | Bathrooms: 2.5
Experience 1,491 Sq. Ft. of Effortless Living in This 3 Bedroom Ranch-Style Home — Check Out the Floor Plan
Sq. Ft.: 1,491 | Bedrooms: 3 | Bathrooms: 2
Step Inside This 3,813 Sq. Ft. Home with a 3 Bedroom Layout, Angled Garage and Basement – Floor Plan Included
Sq. Ft.: 3,813 | Bedrooms: 3 | Bathrooms: 3.5
Two-Story Craftsman Style 3-Bedroom The Avalon Home with Balcony Loft (Floor Plan)
Sq. Ft.: 2,588 | Bedrooms: 3 | Bathrooms: 2.5
Explore This Lovely Ranch-Style Home with 3 Bedrooms, Wraparound Porch, and Modern Amenities (Includes 2,300+ Sq. Ft. Floor Plan)
Sq. Ft.: 2,313 Bedrooms: 3 Bathrooms: 2.5

