
Would you like to save this?
Specifications
- Sq. Ft.: 2,180
- Bedrooms: 3
- Bathrooms: 2
- Stories: 1
- Garage: 3
Main Level Floor Plan

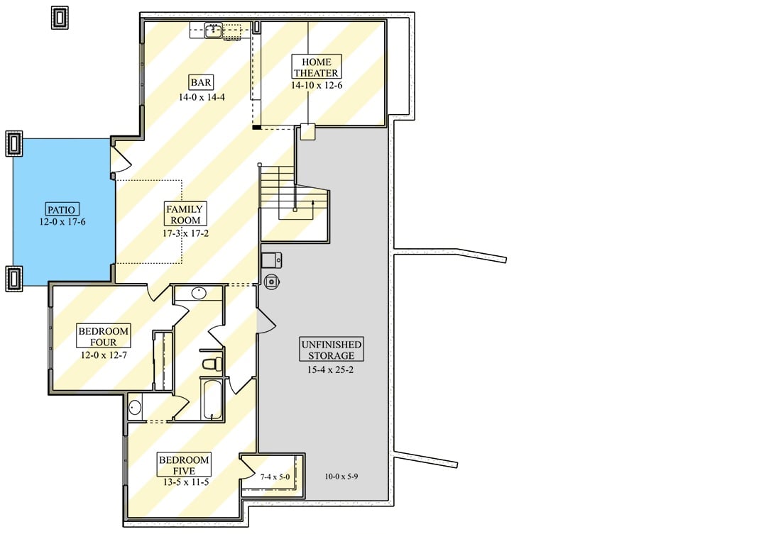
Lower Level Floor Plan

๐ฅ Create Your Own Magical Home and Room Makeover
Upload a photo and generate before & after designs instantly.
ZERO designs skills needed. 61,700 happy users!
๐ Try the AI design tool here
Front View

Rear View

Rear View

Front Entry

Would you like to save this?
Great Room

Great Room

Kitchen

What's Your
Kitchen Style?
Kitchen

Kitchen

Kitchen

Dining Area

Office

๐ฅ Create Your Own Magical Home and Room Makeover
Upload a photo and generate before & after designs instantly.
ZERO designs skills needed. 61,700 happy users!
๐ Try the AI design tool here
Primary Bathroom

Deck

Wet Bar

Garage

Details
This craftsman-style home features a warm, substantial exterior with layered rooflines, mixed materials, and exposed timber details that give it a strong architectural presence. Multiple garage bays are integrated cleanly into the design, reinforcing both function and curb appeal.
The main level is centered on a spacious great room that connects easily to the kitchen and dining area, creating a comfortable hub for daily living and entertaining. The kitchen offers generous workspace, pantry storage, and direct access to outdoor living areas, while the dining space is positioned for easy flow without feeling separated.
The primary bedroom is privately located and includes a walk-in closet and a well-organized bathroom, set apart from the secondary bedrooms for added privacy. Additional bedrooms on the main floor are grouped with convenient bathroom access, supporting guests or family members without crowding shared spaces.
The lower level expands the homeโs flexibility with a large family room, bar area, home theater, and extra bedrooms, along with unfinished storage. This layout supports entertaining, recreation, and extended stays while keeping the main floor focused on everyday comfort and function.
Pin It!

Would you like to save this?
Architectural Designs Plan 95348RW
