
Would you like to save this?
Specifications
- Sq. Ft.: 1,555
- Bedrooms: 3
- Bathrooms: 2.5
- Stories: 2
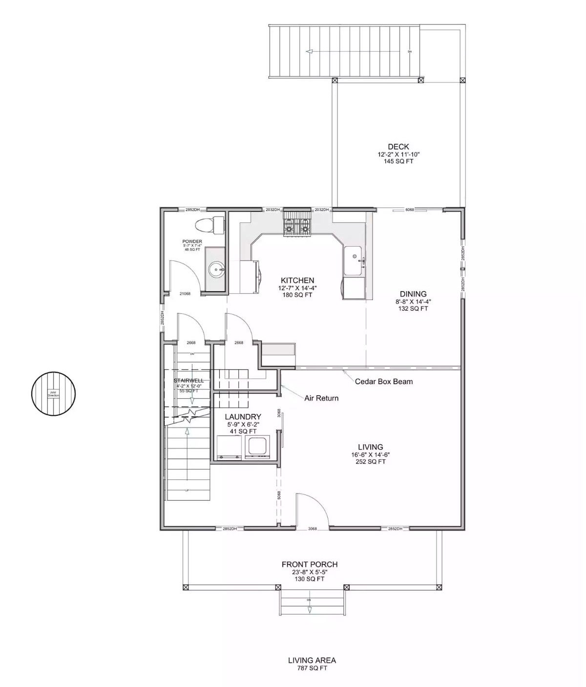
Main Level Floor Plan

Second Level Floor Plan

Lower Level Floor Plan

Front-Right View

Front-Left View

Front Entry

Front-Right View

Front-Left View

Rear-Left View

Kitchen

Kitchen

Details
This farmhouse home features a tall, narrow exterior with clean siding, a steep roofline, and a covered front porch that gives it a straightforward, traditional presence. Symmetry and simple detailing keep the look classic while supporting an efficient vertical layout.
The main level is designed for everyday living, with a living room positioned at the front of the home and clear sightlines into the dining area and kitchen. The kitchen is centered for easy use, with direct access to the dining space and a rear deck that extends the living area outward. A powder bathroom and a dedicated laundry room are tucked near the stairwell, keeping utility spaces convenient but out of the way.
The upper level is reserved for private living spaces, anchored by a primary bedroom with an en suite bathroom and a walk-in closet. Two additional bedrooms are located nearby and share a full bathroom off the hall, creating a balanced and practical sleeping layout. Storage and attic access are thoughtfully integrated to support everyday organization without disrupting the living spaces.
Pin It!

The House Designers Plan THD-11776
Haven't Seen Yet
Curated from our most popular plans. Click any to explore.

