
🔥 Would you like to save this?
Specifications
- Sq. Ft.: 1,288
- Bedrooms: 2
- Bathrooms: 1
Floor Plan

In order to come up with the very specific design ideas, we create most designs with the assistance of state-of-the-art AI interior design software. Also, assume links that take you off the site are affiliate links such as links to Amazon. this means we may earn a commission if you buy something.
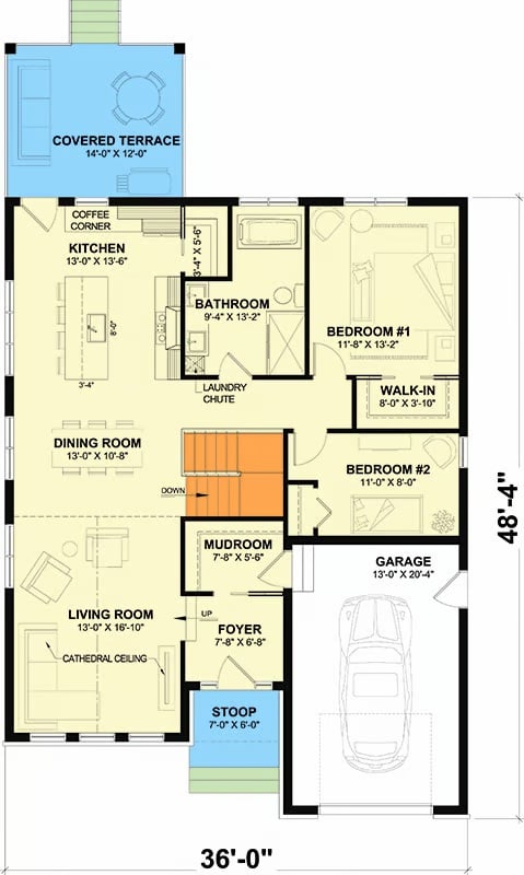
This single-story layout spans 36 by 48 feet with two bedrooms, a shared bathroom, and a walk-in closet off Bedroom 1. The open kitchen flows into the dining and living rooms. A covered terrace, mudroom, foyer, and attached garage complete the plan.
Floor Plan

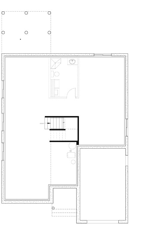
The lower level shows a bathroom, staircase, and two open living zones. An enclosed room sits at the lower right. Covered terrace areas appear at the top and bottom, extending the usable outdoor space.
Shingle Siding and Stone Base Give This Cottage Its Grounded Charm
Warm lantern light frames a white double-entry door flanked by stone veneer at the base. Cedar-style shingle siding in greige tones covers the upper facade. A single-car garage with panel detailing sits to the right. Hydrangeas and ornamental grasses anchor the foundation plantings beautifully.
Common Mistake: Many homeowners skip stone veneer at the base, opting for full siding instead. That choice can make a cottage feel top-heavy and flat against the ground. Pairing a stone base with shingle siding above creates visual weight that roots the structure to its site.
Dark Granite Island and Fluted Panels Make the Kitchen Worth Lingering In

Fluted wood panels wrap the island base beneath leathered dark granite. Open shelving on brick displays glassware and ceramics. Linen pendant shades hang from black metal frames above four cushioned wood barstools.
Style Tip: Pairing matte black fixtures with warm wood cabinetry keeps a kitchen from reading as cold or industrial. The key is consistency — pull the same metal finish through the faucet, cabinet hardware, and pendant frames so the eye reads it as intentional rather than accidental.
Vaulted Ceilings and Floor-to-Ceiling Windows Pull the Outdoors Into Every Corner

Exposed white beams frame a wood-paneled cathedral ceiling overhead. Gray sectional seating anchors the room around a round live-edge coffee table. Stone veneer columns flank a wall-mounted TV above a mid-century media console in natural oak.
Material Matters: High-volume rooms like this one demand pendant or chandelier fixtures scaled to match the ceiling height. A fixture hung too low creates visual clutter, while one too small simply disappears. The black sputnik chandelier here sits at the right scale, pulling the eye upward without crowding the space below.
Vaulted Beams and Green Leather Chairs Anchor the Open Dining Space

Dining chairs in dark green leather do more visual work than most people expect.
Paired against a reclaimed wood table, they ground the room without competing with the white walls or the cathedral ceiling above. Exposed beams, wide-plank flooring, and two pendant styles add texture through contrast rather than pattern.
bold_hook: Open-concept layouts with vaulted ceilings can feel cavernous if the furniture scale is off. Choosing a dining table with visible weight, like solid reclaimed wood with thick legs, helps anchor the space. Size the table to seat the room, not just the household.
Terracotta Mosaic Tiles and a Freestanding Tub Bring Old-World Warmth to the Bath

Small-format terracotta mosaic tiles cover the shower walls, floor to ceiling, anchoring the space with rich color. White shiplap paneling lines the back wall, keeping the room from feeling heavy. A freestanding soaking tub sits near the window beneath a chandelier. The toilet and glass-enclosed shower share the same compact footprint without crowding each other.
Why Mosaic Tile Works So Well in a Shower Enclosure
Small-format tiles create more grout lines per square foot, which increases traction on wet surfaces without adding texture underfoot. The higher grout density also lets the tile wrap curves and corners without cutting, making installation cleaner on angled walls. In a narrow shower like this one, the grid pattern draws the eye upward, adding perceived height to the enclosure.
Pin It

Exterior rendering shows a cottage farmhouse above; floor plan below details two bedrooms, covered terrace, and garage.
Try This: Covered terraces work best when they share a wall with the kitchen or dining room, cutting the distance between indoor prep and outdoor seating. Even a 14-foot width gives enough room for a table, four chairs, and a clear path around them. Orient the terrace away from the street side to gain privacy without adding a fence.
🔥 Would you like to save this?
Experience 1,555 Sq. Ft. of Spacious Living: 2 Bedroom Home with Must See Floor Plan and Covered Terrace
Sq. Ft.: 1,555 | Bedrooms: 2 | Bathrooms: 2
Discover This Stunning 2 Bedroom Home with a 2-Car Garage (2,000 Sq. Ft. Floor Plan Included)
Sq. Ft.: 2,116 | Bedrooms: 2 | Bathrooms: 2.5
Modern Single-Story 2-Bedroom Low Country Cabin with Open Living Space and Wraparound Deck (Floor Plan)
Sq. Ft.: 884 | Bedrooms: 2 | Bathrooms: 2
Barndominium-Style Cottage with 2 Bedrooms and Covered Patio (Floor Plan)
Sq. Ft.: 1,538 | Bedrooms: 2 | Bathrooms: 2
