
🔥 Would you like to save this?
Specifications
- Sq. Ft.: 2,550
- Bedrooms: 3
- Bathrooms: 2
Floor Plan

In order to come up with the very specific design ideas, we create most designs with the assistance of state-of-the-art AI interior design software. Also, assume links that take you off the site are affiliate links such as links to Amazon. this means we may earn a commission if you buy something.
The main floor centers on a vaulted great room with a fireplace, open to the kitchen and dining area. A master suite anchors the left wing. Three bedrooms, two garages, a mud room, screened porch, and covered entry complete the layout.
Floor Plan

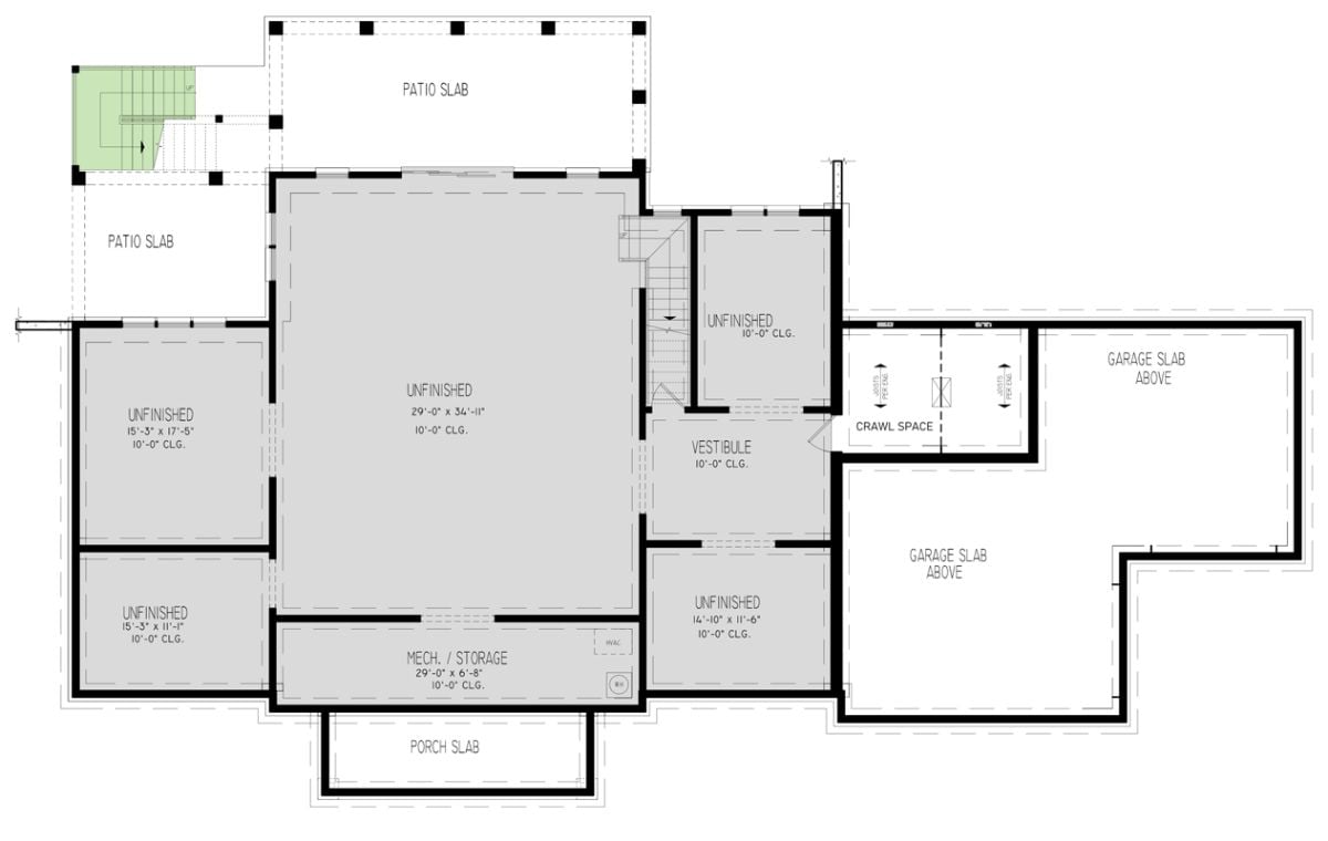
The basement level shows a large unfinished central space, mechanical storage, vestibule, crawl space, and two side rooms, with stair access connecting to the floors above.
Style Math: Unfinished basement square footage here rivals many entire homes, giving future owners room to build a gym, theater, or guest suite without touching a load-bearing wall. Pairing that raw space with a 10-foot ceiling height keeps options wide open.
Covered Porches Front and Back on a White Board-and-Batten Farmhouse
White board-and-batten siding, wood columns, a metal roof, and two covered outdoor living levels.
Did You Know: Board-and-batten siding dates back to 19th-century American barn construction, where vertical boards covered the gaps between wall planks. Modern builders now use it as a decorative exterior finish because it creates strong vertical lines that make a home appear taller. Pairing it with a dark metal roof, as seen here, is a popular choice for contemporary farmhouse designs.
Vaulted Ceilings and a Stone Fireplace Define This Farmhouse Great Room

Exposed wood beams draw the eye straight up to a cathedral ceiling that makes this room feel twice its size.
Light pours through French doors flanked by natural wood trim. Linen sofas and accent chairs with walnut frames anchor the seating area. A horizontal stone fireplace anchors the far wall beneath a round mirror. Wide-plank floors and a wrought-iron candle chandelier complete the look.
Vaulted Beams and Pendant Lights Crown a Farmhouse Kitchen Built for Gathering

Four wood barstools line a long island beneath glass pendants over hardwood floors.
- Exposed wood ceiling beams add warmth without requiring any additional wall treatments.
- Black sconce fixtures create contrast against flat-front painted cabinetry.
- A column-style range hood anchors the cooking wall and draws the eye upward.
Exposed Beams and Upholstered Chairs Set the Tone in This Farmhouse Dining Room

Cerused oak table anchors the space beneath a black multi-pendant chandelier. Cream upholstered chairs with brass hardware sit on a neutral rug. Exposed wood ceiling beams and a framed meadow painting reinforce the warm, grounded palette throughout.
By The Numbers: Dining tables sized for eight to ten seats typically measure between 96 and 120 inches long. A table of this scale requires at least 36 inches of clearance on all sides for chairs to pull out comfortably. That clearance also makes the room feel open rather than crowded.
Vaulted Beams and an Open Layout Give This Farmhouse Living Space Room to Breathe

Exposed wood beams cross a cathedral ceiling above connected living, dining, and kitchen zones. Neutral linen sofas, oak flooring, pendant cluster lights, and a black iron chandelier anchor each area with consistent warmth and material honesty throughout.
The Psychology Behind This: Open floor plans reduce visual barriers between social spaces, which research links to increased feelings of connection among household members. Humans instinctively respond well to high ceilings, associating vertical space with freedom and reduced stress. Warm wood tones at ceiling height draw the eye upward, reinforcing that sense of openness without requiring additional square footage.
Quilted Headboard and Green Accents Anchor a Bedroom Built for Rest

Soft, greige walls frame a platform bed with a diamond-stitched headboard. Forest green throws add contrast against cream bedding. Matching nightstands, tufted bench seating, and recessed lighting complete the layered, neutral palette.
Warm Wood Cabinetry and Glass-Enclosed Shower Shape a Farmhouse Primary Bath

Cerused oak cabinetry pairs with white quartz countertops and matte black hardware throughout. Rolled towels, taper candles, and a bud vase add texture without clutter. A frameless glass shower door opens to a tile surround, while pendant lights with black metal frames echo the cabinet pulls.
Pin It

On top, a board-and-batten exterior with a metal roof and arched entry door shows the home’s curb presence. Below, the floor plan reveals three bedrooms, a great room with a fireplace, a screened porch, an open deck, a study, a mud room, and two single-car garages flanking the main living core.
