
🔥 Would you like to save this?
Specifications
- Sq. Ft.: 3,059
- Bedrooms: 3
- Bathrooms: 2.5
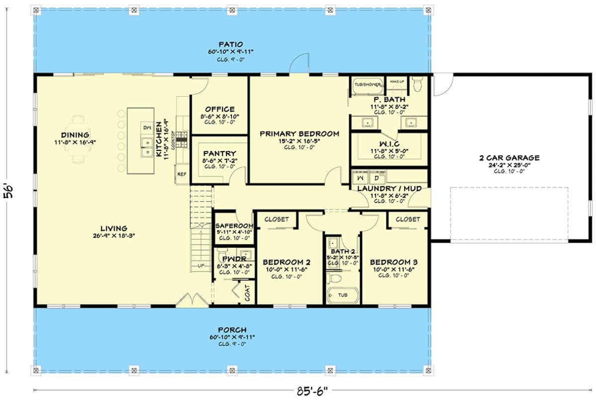
Floor Plan

In order to come up with the very specific design ideas, we create most designs with the assistance of state-of-the-art AI interior design software. Also, assume links that take you off the site are affiliate links such as links to Amazon. this means we may earn a commission if you buy something.
The single-story layout centers the living, dining, and kitchen along the left side. A primary suite with a walk-in closet anchors the right. Two additional bedrooms share a bath, with a saferoom, pantry, office, and mudroom rounding out the plan.
Floor Plan

Upper level shows a loft, bonus game room, two closets, open-below great room space, patio, porch, and attached two-car garage.
Covered Rear Porch Wraps a White Stucco and Stone Exterior
Stone veneer lines the base while white stucco rises above. Slim columns support a deep covered porch. Sliding glass doors and framed windows draw warm interior light outward across a wide green lawn.
Why It Works: Stone at the base paired with smooth stucco above is a practical combination that reduces exterior maintenance while adding visual weight to a single-story form. Keeping the roofline low and consistent across the full width of the house reinforces the barndominium character without relying on decorative detail.
Vaulted Ceilings and a Kitchen Island Make This Open Plan Work Hard

Warm oak flooring runs beneath a soaring vaulted ceiling finished in soft greige. White shaker cabinets line the kitchen wall, paired with a slate-gray hood and quartz countertops. Barstools in charcoal fabric anchor the island. A wooden bowl of red apples sits on the concrete-top dining table near floor-to-ceiling glass doors.
Mezzanine Balcony as a Functional Design Element
White-painted railings on the mezzanine level allow sightlines down into the main living space without closing it off. That visual connection between floors makes a two-story volume feel occupied rather than cavernous. Positioning the staircase against the rear wall keeps the kitchen and dining zone clear of traffic flow.
Vaulted Ceilings and Double-Height Walls Give This Barndominium Living Room Its Scale

Wood-framed sofas with cream cushions sit on a gray rug beneath recessed lights and a soaring cathedral ceiling.
Fun Fact: Barndominiums often feature double-height great rooms because the original agricultural structures they draw from needed tall interior clearance for equipment and hay storage. Designers now use that vertical space to create loft balconies that overlook the living area below, adding square footage without expanding the footprint.
Large-Format Portrait Art Anchors a Modern Bedroom with Layered Lighting

Sage green paint on the accent wall grounds an oversized black-and-white portrait. Hardwood floors run beneath a textured area rug. A sputnik chandelier pairs with pendant cluster lighting above a platform bed dressed in neutral linens. A mid-century sideboard adds warm wood contrast.
In The Details: Pendant clusters work well in bedrooms with high ceilings because they draw the eye down without requiring a single large fixture. Mixing two distinct lighting styles in one room, like a sputnik chandelier and cylindrical pendants, keeps the space from feeling monotonous. Both fixtures here use warm-toned bulbs to maintain a consistent color temperature across the room.
Pin It

Outside, a low-profile modern farmhouse stretches wide behind a covered porch with square columns and a dark shingled roof. Below, the floor plan reveals three bedrooms, a primary suite with a walk-in closet, a dedicated office, a safe room, a laundry-mud room, and a 60-foot rear patio, all contained within an 85-foot-wide single-story footprint.
