
🔥 Would you like to save this?
Specifications
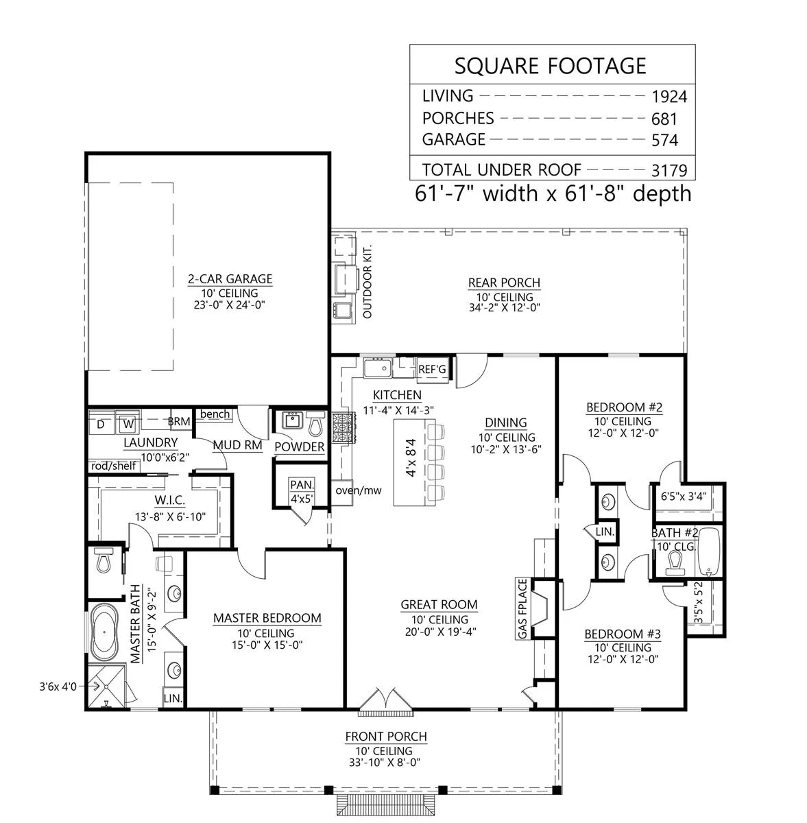
- Sq. Ft.: 1,924
- Bedrooms: 3
- Bathrooms: 2.5
- Stories: 1
- Garage: 2
First Level Floor Plan

In order to come up with the very specific design ideas, we create most designs with the assistance of state-of-the-art AI interior design software. Also, assume links that take you off the site are affiliate links such as links to Amazon. this means we may earn a commission if you buy something.
Side View

Rear View
Living Room

Living Room

Dining Room

Dining Room

Dining and Kitchen

Kitchen

Primary Bedroom

Primary Bedroom

Primary Bathroom

Primary Bathroom

Rear Elevation
Details
This charming 1,924 sq. ft. home offers open-concept living lit with the natural light from skylights, three bedrooms, and two-and-a-half baths. The great room flows into the kitchen and dining area, creating a bright and welcoming space.
With a split-bedroom layout, the primary suite impresses with a 5-piece bath, spacious walk-in closet, and easy access to the laundry room. Additional highlights include a mudroom, side-entry garage, and an outdoor kitchen on the back porch.
Pin It!

The House Designers Plan 9698
