
Would you like to save this?
Specifications
- Sq. Ft.: 4,412
- Bedrooms: 5
- Bathrooms: 3.5
- Stories: 2
- Garage: 3
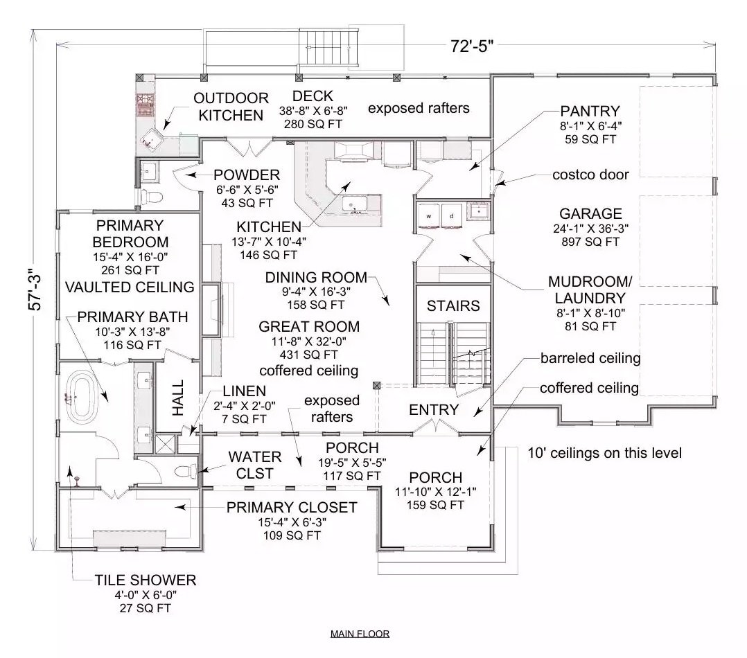
Main Level Floor Plan

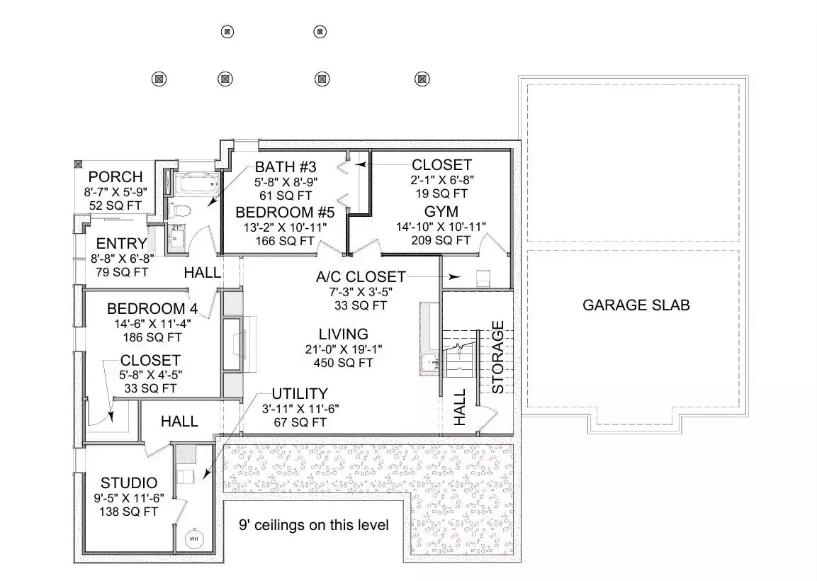
Second Level Floor Plan

🔥 Create Your Own Magical Home and Room Makeover
Upload a photo and generate before & after designs instantly.
ZERO designs skills needed. 61,700 happy users!
👉 Try the AI design tool here
Lower Level Floor Plan

Front View

Front View

Side View

Would you like to save this?
Living Room

Living Room

Kitchen

Primary Bedroom

Primary Bathroom

Bedroom

Details
This Spanish-style home features a warm, grounded exterior defined by stone-clad walls, smooth stucco finishes, and low-pitched clay tile rooflines. Arched windows and doorways reinforce the classic Spanish character, while the centered entry tower creates a strong focal point and sense of arrival. The façade is balanced and substantial, with varied roof heights and massing that give the home depth without feeling overly ornate.
The main level is designed for open, comfortable living with clear separation between public and private spaces. The great room anchors the layout and flows naturally into the dining area and kitchen, creating a cohesive space for everyday living and entertaining. The kitchen is positioned for efficiency and connection, with direct access to an outdoor deck and integrated storage areas.
The primary suite is located on the main level, offering privacy with a spacious bedroom, walk-in closet, and a well-appointed bath. A mudroom and laundry area connect the interior to the garage, keeping daily transitions organized.
The upper level provides additional private living areas, including secondary bedrooms and a shared bathroom. An open-to-below space creates a visual connection to the main living area while allowing natural light to move through the home. A dedicated office adds functional flexibility, offering a quiet workspace separate from the main living zones.
The lower level adds flexible living space suited for both relaxation and activity. A large central living area supports multiple uses, including media, recreation, or gathering.
Additional bedrooms are positioned for privacy and share nearby bathroom access, making this level well-suited for guests or extended household needs. Storage and utility spaces are thoughtfully placed to remain out of sight while maintaining easy access.
Pin It!

The House Designers Plan THD-11949
