
🔥 Would you like to save this?
Specifications
- Sq. Ft.: 4,412
- Bedrooms: 5
- Bathrooms: 3.5
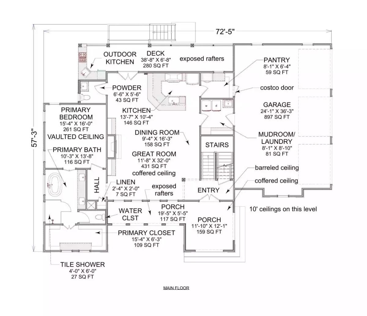
Floor Plan: The Primary Suite Anchors One Wing, While the Garage Buffers the Mudroom

In order to come up with the very specific design ideas, we create most designs with the assistance of state-of-the-art AI interior design software. Also, assume links that take you off the site are affiliate links such as links to Amazon. this means we may earn a commission if you buy something.
The primary bedroom sits at the far left, separated from the main living areas by its bath and closets, creating a private retreat. The great room, dining room, and kitchen flow together in an open layout with exposed and coffered ceilings adding architectural interest. A deck extends the kitchen outdoors. The garage connects directly to a mudroom and laundry, filtering entry traffic before it reaches the main spaces. A pantry flanks the opposite side of the mudroom. The front porch wraps partially around the entry.
Upper Floor Plan: Two Bedrooms Share a Jack-and-Jill Bath While the Office Sits Away From It All

Bedroom 2 and Bedroom 3 flank a shared bathroom with dual sinks and private toilet compartment, a layout that gives each room closet access and equal claim to the space. An office occupies the far corner with its own closet, separated from the bedrooms by an open-below zone and small hall closet. This floor overlooks the living room below through an open railing. Water closet placement between bedrooms eliminates hallway noise.
Basement Floor Plan: Five Bedrooms on One Level With a Gym That Shares a Wall With Storage
A five-bedroom basement layout clusters sleeping quarters along one side while keeping active spaces like the gym and studio separate. Bedroom 5 sits between Bath 3 and a closet, with 166 square feet. Bedroom 4 spans 186 square feet and includes its own closet. A 209-square-foot gym sits adjacent to an A/C closet and hall storage. Nine-foot ceilings prevent the space from feeling buried. A utility room and studio anchor the opposite end.
Exposed Beam Ceiling and Stone Fireplace Give This Great Room Rustic Weight

Exposed wood beams cross the ceiling in a grid that draws the eye upward while anchoring the volume. Stone wraps the fireplace surround and continues to the mantel below a wall-mounted TV. Floating wood shelves flank the fireplace symmetrically. Curved cream leather chairs and a sofa form a conversation zone on dark wood floors.
Wood Beam Ceiling and Stacked Stone Backsplash Anchor This Open Kitchen

Chunky wooden beams cross the ceiling, creating visual structure above the workspace. Stacked stone in mixed cream and gray tones covers the backsplash wall behind the range and hood. An island clad in light wood panels holds three woven bar stools with lattice backs. Stainless steel appliances include a dual-fuel range and refrigerator. Terracotta tile floors in a plank pattern ground the space. An arched doorway with bright backlight frames the entry.
Dark Wood Bed Frame and Ceiling Beams Anchor This Light-Walled Bedroom

Dark wood bed frame, nightstands, and exposed ceiling beams create visual weight against pale cream walls. White bedding contrasts with the dark furniture. Two windows with dark trim flank the bed. An upholstered bench with striped bolsters sits at the foot. Dark floors ground the space.
Patterned Mosaic Tile and a Corner Tub Turn This Bathroom Into a Wet Room

Mosaic tile covers the walls in a geometric dot pattern, framing both the shower and tub. Glass panels separate the shower without closing it off. The corner tub sits on a tiled platform with a wall-mounted faucet. Concrete counters and wood cabinetry ground the vanity opposite the bathing zone.
Terracotta Tile Roof and Desert Landscaping Root This House in an Arid Climate

Terracotta tile roofing wraps multiple volumes at different heights, each wing expressing its own roofline. White stucco walls contrast with wood porch posts and metal railings. Cacti, low shrubs, and sandy soil replace thirsty lawns. Covered porches offer shade on every level, essential in the hot sun.
Pin It!

