
Would you like to save this?
Specifications
- Sq. Ft.: 2,929
- Bedrooms: 4
- Bathrooms: 3.5
- Stories: 2
- Garage: 3
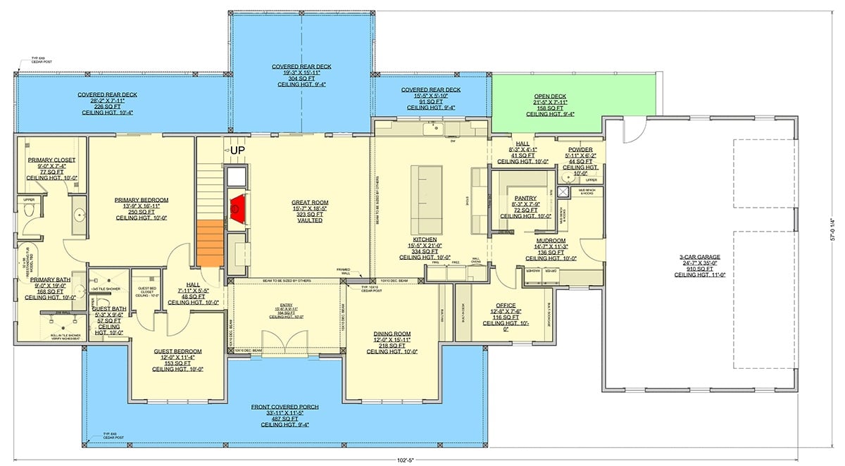
Main Level Floor Plan

Second Level Floor Plan

Living Room

Living Room

Were You Meant
to Live In?
Kitchen

Primary Bedroom

Details
This modern farmhouse blends a wide front porch, tall gables, and clean lines with a layout designed for comfort, privacy, and easy gathering. Inside, the entry leads directly into a vaulted great room that anchors the main level.
Large windows brighten the space, and the room opens smoothly to the kitchen and dining area, keeping the main living areas connected. The kitchen includes a long island, walk-in pantry, and direct access to both the mudroom and rear deck, making everyday movement simple.
The primary suite is positioned on one side of the main level for seclusion. It includes a large bedroom, a spacious bath, and an oversized walk-in closet. A guest bedroom sits nearby with its own bathroom, giving the main level two comfortable bedroom suites. An office near the foyer provides a dedicated workspace, separated enough to remain quiet but still close to the central living areas.
The mudroom links the interior to the three-car garage and keeps storage, laundry, and daily organization out of the main traffic flow. A powder room and additional hallway storage add function without clutter.
Upstairs, a loft overlooks the great room and serves as a flexible second living area. Two additional bedrooms share this level, each near bathroom access. An unfinished attic extends from the loft and can support future expansion or long-term storage needs.
Pin It!

Home Stratosphere Guide
Your Personality Already Knows
How Your Home Should Feel
113 pages of room-by-room design guidance built around your actual brain, your actual habits, and the way you actually live.
You might be an ISFJ or INFP designer…
You design through feeling — your spaces are personal, comforting, and full of meaning. The guide covers your exact color palettes, room layouts, and the one mistake your type always makes.
The full guide maps all 16 types to specific rooms, palettes & furniture picks ↓
You might be an ISTJ or INTJ designer…
You crave order, function, and visual calm. The guide shows you how to create spaces that feel both serene and intentional — without ending up sterile.
The full guide maps all 16 types to specific rooms, palettes & furniture picks ↓
You might be an ENFP or ESTP designer…
You design by instinct and energy. Your home should feel alive. The guide shows you how to channel that into rooms that feel curated, not chaotic.
The full guide maps all 16 types to specific rooms, palettes & furniture picks ↓
You might be an ENTJ or ESTJ designer…
You value quality, structure, and things done right. The guide gives you the framework to build rooms that feel polished without overthinking every detail.
The full guide maps all 16 types to specific rooms, palettes & furniture picks ↓
Architectural Designs Plan 300149FNK










