
Would you like to save this?
Specifications
- Sq. Ft.: 2,708
- Bedrooms: 1
- Bathrooms: 1.5
- Stories: 2
- Garage: 3
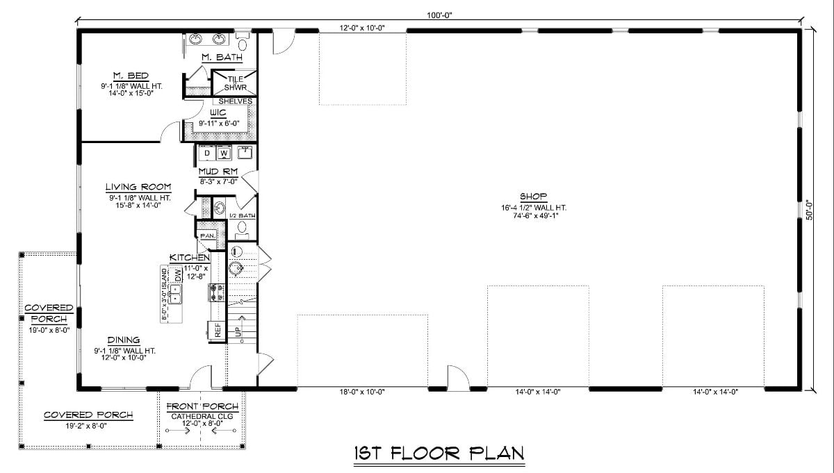
Main Level Floor Plan

Second Level Floor Plan

๐ฅ Create Your Own Magical Home and Room Makeover
Upload a photo and generate before & after designs instantly.
ZERO designs skills needed. 61,700 happy users!
๐ Try the AI design tool here
Front View

Rear-Left View

Rear View

Rear-Right View

Would you like to save this?
Front-Right View

Kitchen

Living Room

Dining Room

Bedroom

Bathroom

Bathroom

Recreation Room

๐ฅ Create Your Own Magical Home and Room Makeover
Upload a photo and generate before & after designs instantly.
ZERO designs skills needed. 61,700 happy users!
๐ Try the AI design tool here
Recreation Room

Details
This barndominium-style home features clean board-and-batten siding, a simple roofline, and a wide covered porch that adds a comfortable front entry. Large garage doors and an attached shop wing give the exterior a bold, functional look that fits both rural and modern settings.
The main level includes an open living area where the kitchen, dining space, and living room connect in one continuous layout. The kitchen includes an island for extra prep space and casual seating, plus a pantry that keeps storage close at hand. The living room sits just beyond the kitchen, offering a simple and functional space to relax, watch TV, or gather with family and friends.
The primary bedroom is located on the main floor and includes a private bathroom and a walk-in closet. A nearby mudroom creates a practical transition space, with laundry placed close by to keep daily routines organized. A half bath is positioned near the center of the home, making it convenient for guests without taking space away from the private areas.
The shop portion of the building is the main feature of the design, with room for multiple vehicles, large tools, and workspace zones. It connects directly to the home for easy access, making it useful for hobby work, storage, or business needs. Multiple doors provide flexibility for drive-in access and equipment movement.
Upstairs, a large recreation room adds extra flexibility for the home. This space can be used as a game room, media lounge, workout zone, or overflow sleeping area, depending on how the household wants to use it. The second level also helps keep the main floor feeling uncluttered, since it provides a separate area for downtime and hobbies.
Pin It!

The House Designers Plan THD-11639
