
🔥 Would you like to save this?
Specifications
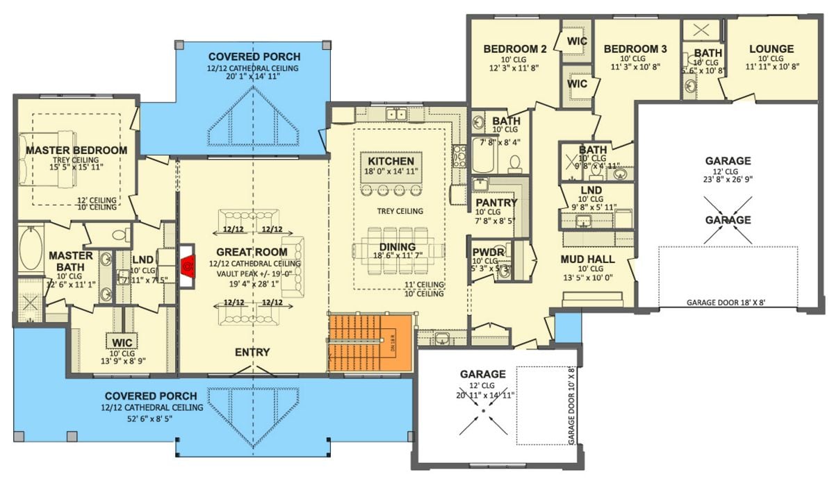
- Sq. Ft.: 3,002
- Bedrooms: 3
- Bathrooms: 4.5
Floor Plan

In order to come up with the very specific design ideas, we create most designs with the assistance of state-of-the-art AI interior design software. Also, assume links that take you off the site are affiliate links such as links to Amazon. this means we may earn a commission if you buy something.
The main floor centers on a great room with cathedral ceilings, flanked by a master suite wing to the left and three bedrooms to the right. The kitchen, dining, and pantry form a practical core. Two covered porches wrap the front and rear. A mud hall, laundry zones, and two garages handle everyday functions with ease.
Modern Farmhouse Rear Elevation With Covered Patio and Gabled Roofline

White horizontal siding wraps a single-story farmhouse with dark trim and a charcoal roof. Center gable framing with exposed wood accents draws the eye toward large sliding glass doors. Outdoor seating sits on a raised patio with steps down to a manicured lawn. Boxwood shrubs anchor both sides of the entry.
Vaulted Ceilings and Exposed Beams Frame an Open Living Space
Olive sofas, a stone fireplace, a geometric area rug, and a globe chandelier anchor this open room with wood beam ceilings and floor-to-ceiling windows.
Dark Cabinetry and Warm Wood Tones Define a Bold Kitchen Interior

Charcoal shaker cabinets pair with a natural oak island base, white quartz counters, subway tile backsplash, brass fixtures, globe pendants, and exposed ceiling beams in this kitchen.
Editor’s Note: Natural oak wraps the island base in a finish that contrasts the dark cabinetry without competing with it. Mixing wood tones at different scales, like ceiling beams versus furniture-level millwork, keeps the palette grounded rather than chaotic.
Pulling back from the kitchen details, the dining area reveals how the two spaces work together as one.
Exposed Ceiling Beams and Globe Pendants Anchor an Open Dining Space

Dark upholstered chairs with wood legs surround a pedestal table beneath a brass linear pendant. Beams overhead tie back to the light oak flooring below.
Bold Black Paneling Sets a Dramatic Backdrop in This Primary Bedroom

Vertical shiplap panels painted black anchor the bed wall. Brass sconces, a gold chandelier, and light linen bedding balance the contrast against warm hardwood floors.
Quick Fix: Swapping standard wall paint for a deep, matte black on a single accent wall can make a room feel more grounded without requiring new furniture or flooring. Flat or matte sheens absorb light rather than reflect it, which softens the drama just enough for a bedroom setting. It also hides surface imperfections better than satin or eggshell finishes.
Pin It

Exterior photo shows a craftsman home with wood gable accents, stone veneer, and metal roofing. Below, the floor plan reveals three bedrooms, a great room with a cathedral ceiling, two covered porches, and a three-car garage.
By The Numbers: All three garage bays combined offer roughly 1,400 square feet of covered vehicle and storage space. The great room vault peaks at approximately 19 feet. Both covered porches span the full width of their respective sides of the home.
