
🔥 Would you like to save this?
Specifications
- Sq. Ft.: 1,968
- Bedrooms: 3
- Bathrooms: 2.5
Floor Plan

In order to come up with the very specific design ideas, we create most designs with the assistance of state-of-the-art AI interior design software. Also, assume links that take you off the site are affiliate links such as links to Amazon. this means we may earn a commission if you buy something.
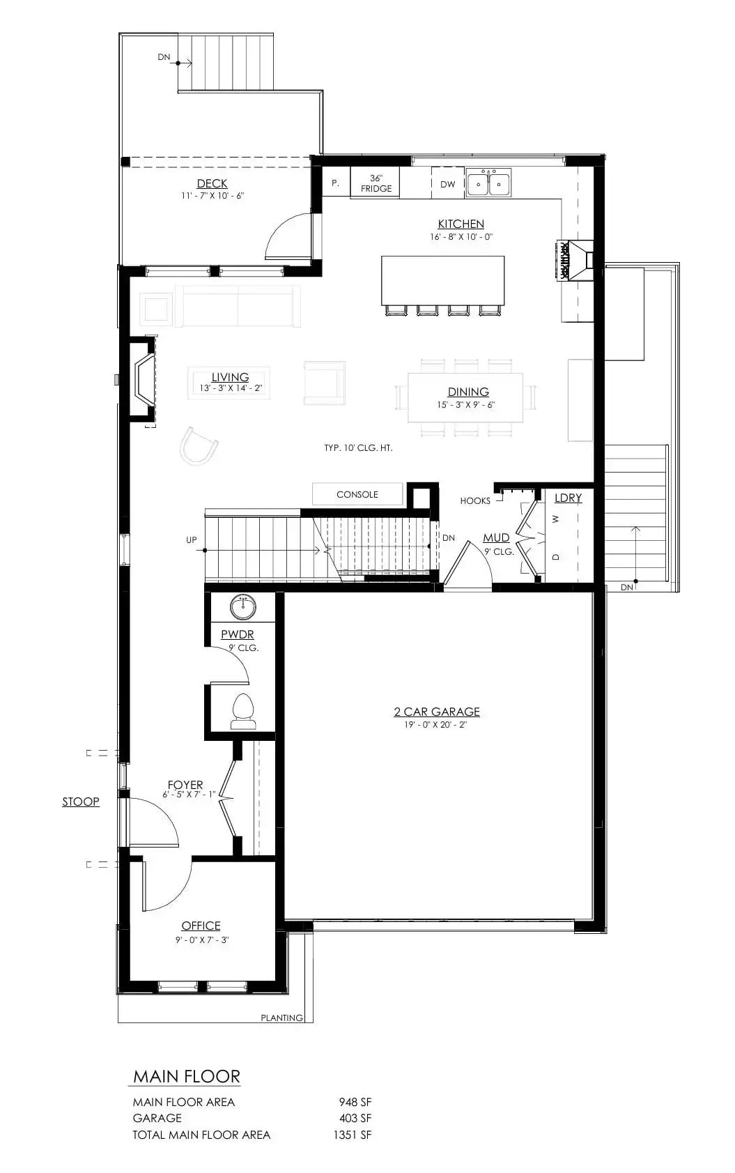
Main floor shows open kitchen, dining, and living areas flowing together, plus garage, mudroom, powder room, office, and foyer.
Floor Plan

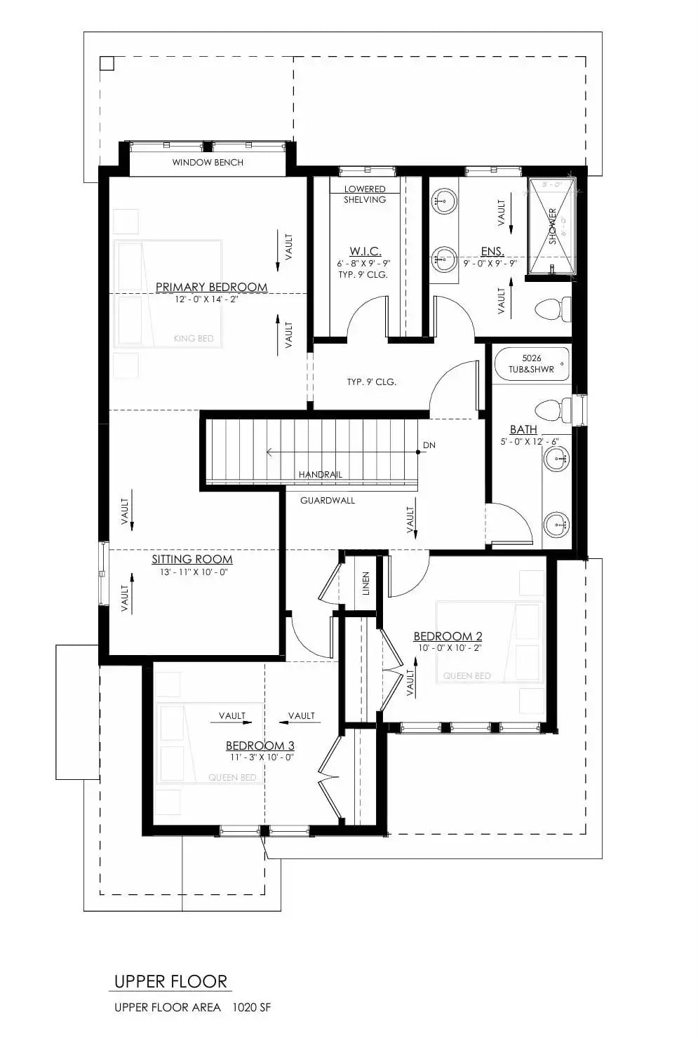
The upper floor holds a primary bedroom with a walk-in closet and an ensuite, two secondary bedrooms, a sitting room, shared bath, and linen storage arranged around a central staircase landing.
Designer’s Secret: Vaulted ceilings appear in nearly every room on this floor, including the primary bedroom, sitting room, and both secondary bedrooms. That consistent use of vault creates volume without adding square footage, a practical way to make 1,020 square feet feel open. The ensuite is tucked behind the walk-in closet, giving the primary suite a private corridor that buffers it from the rest of the floor.
Floor Plan
The basement suite holds a bedroom, a full bath with tub and shower, and an open kitchen, dining, and living area. A flex room sits adjacent to the stairs. Mechanical, comp area, and storage closet round out the 948-square-foot lower level.
History Corner: Basement suites became increasingly common in North American residential construction during the mid-20th century as families sought rental income or multigenerational living options. The combination of a dedicated entrance, kitchen, and sleeping area reflects a housing tradition that dates back to post-war subdivision planning. Today, purpose-built basement suites like this one are often code-regulated as secondary dwelling units.
Bright Entry Hall with Light Wood Floors and Black Hardware Accents

Light oak flooring runs the length of this entry corridor, paired with white walls, black door hardware, and a snake plant.
Trend Alert: Slab-style interior doors with black matte hardware have replaced traditional panel doors in many new builds over the past decade. Matching hardware finishes across the front door, interior doors, and HVAC vents creates a cohesive look without requiring expensive upgrades. Floor-level vents, visible here near the entry, are increasingly spec’d in new construction to preserve clean baseboard lines.
Dark Shiplap Fireplace Wall Anchors a Warm, Neutral Living Room

Charcoal shiplap rises floor to ceiling around a white-surround fireplace. Wood-frame chairs with cane backs face a dark rectangular coffee table. Cream sofa, navy throw pillows, and a woven rug complete the palette.
Vertical Shiplap as a Fireplace Surround
Running shiplap vertically rather than horizontally draws the eye upward and makes ceiling height feel more generous. Painting it a deep charcoal creates a strong contrast against white walls without requiring any additional architectural detail. Framing the fireplace this way eliminates the need for a traditional mantel while still giving the wall a clear focal point.
Gold-and-Black Pendant Anchors a Warm Dining Room with Mixed Seating

Pale oak flooring runs beneath a wood dining table paired with black spindle chairs and an upholstered end chair. A brass cage pendant with exposed bulbs hangs centered above.
Color Story: Warm beige walls sit between white trim and pale wood floors, creating a tonal palette that avoids stark contrast. Black accents in the chairs, candlesticks, and pendant hardware act as grounding punctuation throughout the space. Rattan cabinet doors on the sideboard introduce natural texture without competing with the overall neutral scheme.
Black-and-Brass Pendants Pull Together White Cabinetry and Natural Wood Tones

Three cone pendants hang above an island with a wood base and four black stools. White shaker cabinets, quartz counters, and a gas range complete the space.
Pro Tip: Pairing black hardware with brass fixtures works because both finishes share warm undertones that keep them from clashing. Choosing one dominant metal and using the second as an accent prevents the look from feeling scattered. Here, brass leads at the ceiling while black carries the hardware and seating.
Wood Ceiling Beam and Sputnik Chandelier Define a Soft, Neutral Primary Bedroom

Shiplap accent wall, linen upholstered bed, and brass chandelier anchor a calm bedroom with a window seat.
- Brass sputnik fixtures pair well with warm wood tones already present in beams or floors
- Window seats with cushions double as storage benches when drawers are built into the base
- Shiplap accent walls add texture without requiring paint color changes to shift the room’s mood
mini_list: Sputnik-style chandeliers work in bedrooms because their open frames cast light in multiple directions without a heavy shade blocking the spread. Pairing one with a wood beam keeps the ceiling from feeling too polished or formal. Natural light from a wide window bank does the heavy lifting during daytime hours.
Matte Black Fixtures and Warm Wood Cabinetry Define a Modern Farmhouse Bath

Frameless glass walls make a walk-in shower feel like part of the room.
Natural wood vanity pairs with dark countertops, black faucets, and a wood shower bench inside.
Foosball Table and Pendant Cluster Signal a Basement Built for Play

The Navy foosball table anchors the open recreation space beneath a row of three pendant lights with frosted globes. Blonde hardwood runs throughout. White walls meet a charcoal accent wall on the right. A staircase with black metal balusters connects to the floor above, and a rear door opens toward an outdoor area.
Pin It

Exterior rendering of a craftsman farmhouse paired with its main floor plan showing garage, living spaces, and deck.
🔥 Would you like to save this?
Welcome to a 3,422 Sq. Ft. 3 Bedroom Duplex Home with a Perfect Layout – Floor Plan Included
Sq. Ft.: 3,422 | Units: 2
Traditional 3-Bedroom Country Home with Open-Concept Living and Loft (Floor Plan)
Sq. Ft.: 2,518 | Bedrooms: 3 | Bathrooms: 2.5
Explore the Timeless Allure of This Inviting 3-Bedroom Craftsman Home (Check Out the 2,013 Sq. Ft. Floor Plan Here)
Sq. Ft.: 2,013 Bedrooms: 3 Bathrooms: 2
Step Inside This 1,947 Sq. Ft. 3 Bedroom Home with a Floor Plan You’ll Love
Sq. Ft.: 1,947 | Bedrooms: 3 | Bathrooms: 2.5

