
🔥 Would you like to save this?
Specifications
- Sq. Ft.: 2,147
- Bedrooms: 3
- Bathrooms: 2.5
Floor Plan

In order to come up with the very specific design ideas, we create most designs with the assistance of state-of-the-art AI interior design software. Also, assume links that take you off the site are affiliate links such as links to Amazon. this means we may earn a commission if you buy something.
The main floor centers on an open family, dining, and kitchen zone at the rear, with a deck off the back. The primary bedroom and walk-in closet anchor the left side. A foyer connects to a den or office and laundry near the front porch entry. Stairs suggest an upper level.
Floor Plan

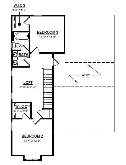
Upper level shows Bedroom 2 and Bedroom 3, each with walk-in closets, a shared bath, and a central loft space. Stairs connect to the main floor, with attic access on one side.
Floor Plan
Two garage configurations are shown side by side. Both layouts include a kitchen measuring 10 feet 9 inches by 13 feet 9 inches, a mud room, a pantry cabinet, and a front porch. Switching to the two-car option nearly doubles garage width, expanding from 13 feet 4 inches to 23 feet 4 inches.
Floor Plan

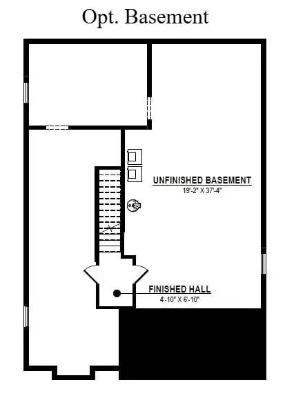
Stairs lead down to a finished hall entry measuring 4 feet 10 inches by 6 feet 10 inches. Beyond it, a large unfinished basement spans 19 feet 2 inches by 37 feet 4 inches, leaving room for future buildout.
Gray Siding, Front Porch, and Optional Garage Define This Farmhouse Exterior

Gray lap siding covers the facade, paired with black window frames and white trim. Brick steps lead to a covered porch with black metal railings and column supports. A dormer sits above the roofline. On the right, a single-car garage with a raised-panel white door connects to the main structure.
Editor’s Note: Opting into the front-entry garage adds square footage without altering the porch or main entry layout. Buyers who skip the garage can reclaim that footprint for outdoor living space or landscaping. Either way, the black-and-white exterior palette holds its visual balance.
White Lap Siding, Wood Garage Doors, and Spanish Moss Set the Scene

Brick steps lead to a covered porch with black railings; wood garage doors anchor the optional two-car addition.
Style Math: White lap siding paired with dark window frames keeps the exterior crisp without relying on decorative trim. Wood garage doors introduce warmth and prevent the facade from reading as cold or flat. That contrast between painted surfaces and natural wood is doing most of the visual work here.
Vaulted Ceilings, Hardwood Floors, and Open Sightlines Anchor This Farmhouse Interior

Warm hardwood floors run through the living, dining, and kitchen zones. Beige upholstery, wood coffee table, and recessed lighting keep the palette grounded and cohesive throughout.
Try This: Pendant lights over the kitchen island do double duty, providing task lighting while visually anchoring the transition between cooking and dining spaces. Choosing a matte black finish for those pendants can pull contrast into a room that otherwise leans heavily neutral.
Carpet, Natural Wood, and Soft Neutrals Shape a Lived-In Loft Sitting Area

Beige carpet, round wood coffee table, cream sofa, and open shelving fill this relaxed loft space.
Beige carpet, round wood coffee table, cream sofa, and open shelving fill this relaxed loft space.
Soft Neutrals, Drum Pendant, and Dark Hardwood Ground This Farmhouse Bedroom

Greige walls set a quiet tone throughout the space. Dark hardwood floors contrast against a light, patterned area rug anchoring the bed. Flanking nightstands hold ceramic lamps with warm bulbs. Sheer curtains filter natural light from three windows, and botanical artwork above the upholstered headboard adds understated character without competing with the room’s calm palette.
Pin It

Exterior rendering shows white farmhouse with front porch; floor plan reveals primary bedroom, family room, kitchen, and deck.
