
🔥 Would you like to save this?
Specifications
Sq. Ft.: 3,422
Bedrooms: 4
Bathrooms: 3.5
Stories: 2
Garage: 2
In order to come up with the very specific design ideas, we create most designs with the assistance of state-of-the-art AI interior design software. Also, assume links that take you off the site are affiliate links such as links to Amazon. this means we may earn a commission if you buy something.
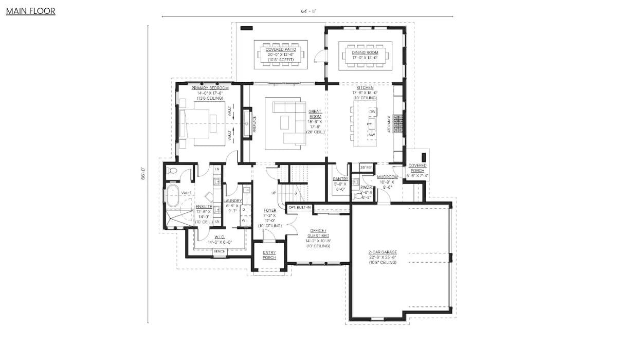
Main Floor Plan

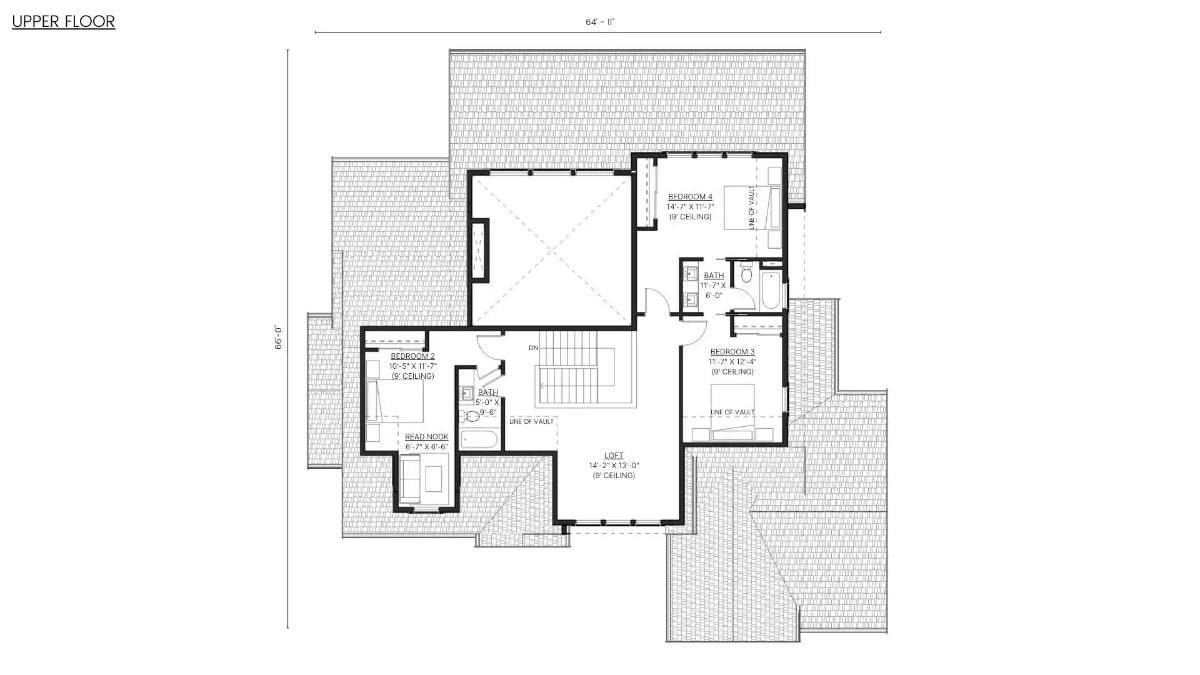
Upper-Level Floor Plan

Rear View
Rear View

Great Room

Dining Room

Kitchen

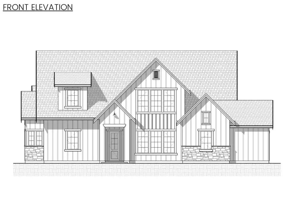
Front Elevation

Right Elevation

Left Elevation

Rear Elevation

Details
The Palmetto is a striking 3,422-square-foot traditional home with four bedrooms and three and a half baths, including an optional fifth bedroom or guest room in the main-floor office.
The primary suite on the first floor serves as a luxurious retreat, featuring a spacious walk-in closet and a spa-like bathroom with a soaker tub and walk-in shower.
At the heart of this home is an expansive open floor plan highlighted by a stunning 20-foot-high great room with a beautiful fireplace and access to a covered outdoor area, perfect for seamless indoor-outdoor living.
The chef’s kitchen, designed for culinary creativity, adjoins a two-car garage for added convenience. Upstairs, three additional bedrooms and a loft offer ample space for family or guests, making the Palmetto an inviting blend of timeless elegance and modern
Pin It!

The House Designers Plan 10069
🔥 Would you like to save this?
Tour this Handsome Budget-Friendly Contemporary Rancher-Style Home (Floor Plan)
Sq. Ft.: 1,192 | Bedrooms: 2-4 | Bathrooms: 2-3
Traditional-Style Home with Dual Porches and 4 Bedrooms (Floor Plan)
Sq. Ft.: 2,476 | Bedrooms: 4 | Bathrooms: 2.5
Welcome Home: Discover the Delightful Details of This 3,163 Sq. Ft. Southern Charmer with 4 Bedrooms (Floor Plan)
Sq. Ft.: 3,163 | Bedrooms: 4 | Bathrooms: 3.5
Two-Story 4-Bedroom Traditional Home with 3-Car Garage (Floor Plan)
Sq. Ft.: 2,294 | Bedrooms: 4 | Bathrooms: 2.5
Traditional Brick Colonial Home for a Corner Lot with 4 Bedrooms (Floor Plan)
Sq. Ft.: 4,996 | Bedrooms: 4 | Bathrooms: 5.5

