
🔥 Would you like to save this?
Specifications
- Sq. Ft.: 2,165
- Bedrooms: 4
- Bathrooms: 3
Floor Plan

In order to come up with the very specific design ideas, we create most designs with the assistance of state-of-the-art AI interior design software. Also, assume links that take you off the site are affiliate links such as links to Amazon. this means we may earn a commission if you buy something.
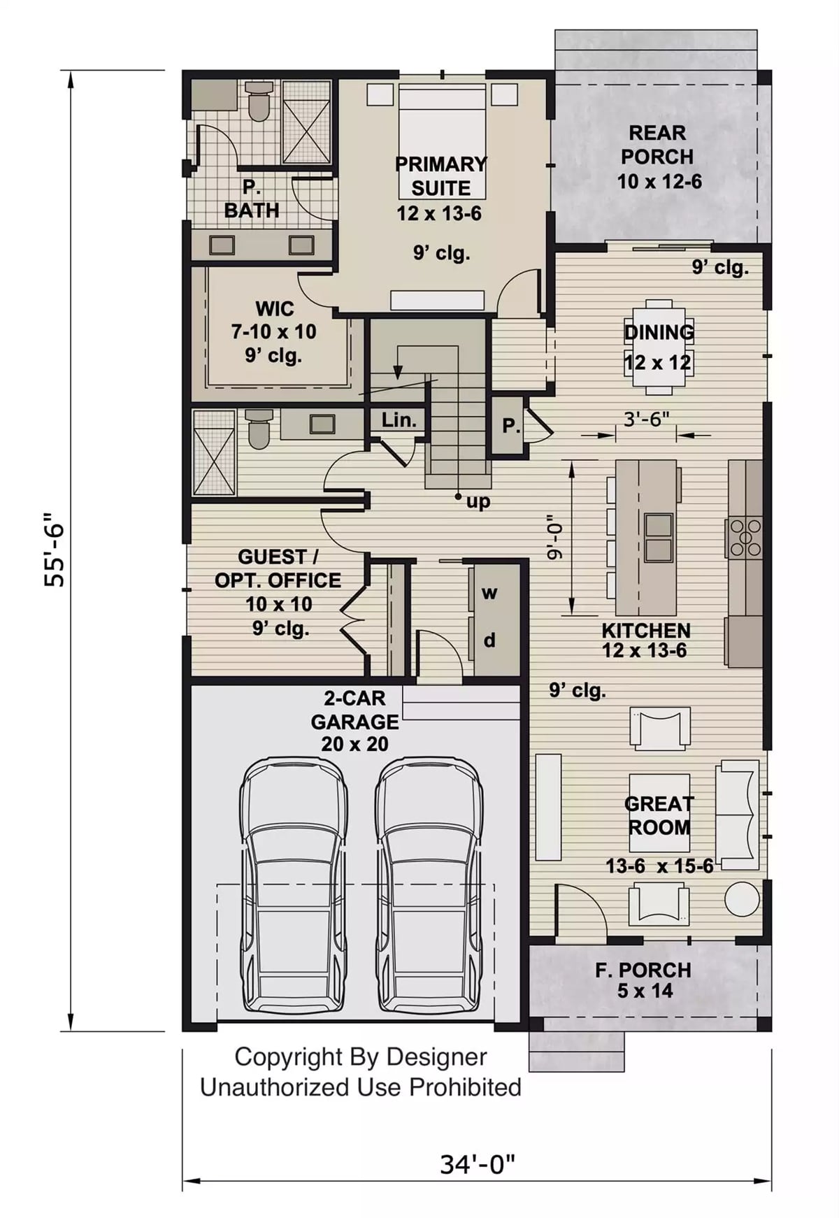
Main floor includes a primary suite with walk-in closet, guest room, open kitchen and dining, great room, laundry, powder room, rear porch, and two-car garage.
Floor Plan

Two bedrooms measuring 11 by 12 feet sit on either side of a shared full bath. The loft spans 16 feet 4 inches by 17 feet, offering flexible living space with 8-foot ceilings. Stairs descend to the lower level. Both bedrooms have closets, and the open loft connects naturally to the stairwell and hall.
Open-Concept Living Flows Into a White Kitchen With Island Seating
Gray sofas anchor a patterned area rug while light wood flooring connects the living space to a white kitchen island with bar stools.
Dark Wood Dining Table Anchors an Open-Concept Space With Chandelier Drama

Black chandelier, dark chairs, white runner, and light hardwood floors define this dining area.
Common Mistake: Hanging a chandelier too high over a dining table is one of the most common lighting mistakes homeowners make. The bottom of the fixture should sit roughly 30 to 34 inches above the tabletop. Going higher breaks the visual connection between the light and the space it is meant to anchor.
Pendant Lights Over a White Island Define the Kitchen-to-Living Room Connection

Three drum pendants in dark metal hang over a white quartz island with woven bar stools. Subway tile backsplash, shaker cabinets, and light wood floors carry through to the open living area beyond.
Material Matters: Quartz countertops resist staining and scratching better than marble, making them a practical choice for high-use kitchen islands. Unlike natural stone, quartz does not require annual sealing to maintain its surface integrity.
Soft Blue Bedding and White Furniture Give This Bedroom a Calm, Restful Palette

Carpet floors, recessed lighting, and a white bed frame anchor a bedroom with blue accents, matching nightstands, and a closet visible behind open doors.
- Low-pile carpet is easier to vacuum and resists matting near doorways
- Berber weave handles heavy use without showing wear patterns quickly
- Carpet padding thickness affects both underfoot comfort and how long the carpet itself lasts
Mini List: Choosing the right carpet pile height affects both comfort and how easy the floor is to maintain over time. Low-pile carpet holds up better in bedrooms that see frequent foot traffic near the bed and closet. High-pile options feel softer underfoot but trap dust more readily.
Double Vanity With Dark Cabinetry Sets a Polished Tone in the Primary Bath

Dark green-gray shaker cabinets run the full length of the vanity wall, topped with white veined quartz. Chrome faucets and drawer pulls add contrast. Wall sconces with white shades flank each framed mirror. Marble-look floor tile carries the light palette underfoot. A window at the far end brings in natural light without sacrificing privacy.
Fun Fact: Wall sconces positioned beside mirrors rather than above them reduce facial shadows significantly, making them a smarter choice for bathroom grooming tasks. Placing the center of each sconce at roughly 60 to 65 inches from the floor aligns the light with eye level for most adults.
Floating Shelves and Leather Seating Define a Home Office Built for Focus

Warm olive walls set a grounded tone throughout the office. Floating shelves display books, framed photos, and decorative objects, including a shark figurine and wire orbs. A wood desk anchors the center, paired with a tufted chair. Leather armchair seating sits beside a floor lamp near the window overlooking open green space.
Why It Works: Floating shelves work especially well in home offices because they keep floor space clear while still offering display and storage options. Mixing functional items like binders with decorative objects at different heights prevents shelves from looking flat or overly staged.
Recessed Lighting and Open Layout Make This Loft a Natural Gathering Space

White carpet, wall-mounted TV, built-in media console, and a desk nook occupy this open upper-level loft.
Why Recessed Lighting Works So Well in Loft Spaces
Loft areas often have angled or lower ceilings near the edges, which makes pendant fixtures and chandeliers awkward to place. Recessed cans solve this by spreading light evenly across the floor without competing with the ceiling’s geometry. Spacing them in a grid pattern, as seen here, keeps the room feeling open rather than broken into zones.
Pin It

Exterior photo shows a craftsman-style home with cedar shake accents and a covered porch. The floor plan below reveals a single-level layout with a primary suite, great room, kitchen, dining area, and two-car garage.
Worth Knowing: Craftsman-style homes get their character from structural details that serve a real purpose, like exposed rafter tails and tapered porch columns that actually carry roof load. Cedar shake siding, used on the gable here, naturally resists moisture and insect damage without heavy chemical treatment. Homes built on a single level with the primary suite at the rear tend to feel quieter, since the bedroom sits farthest from street noise.
