
🔥 Would you like to save this?
Specifications
- Sq. Ft.: 3,057
- Bedrooms: 3
- Bathrooms: 3
Floor Plan

In order to come up with the very specific design ideas, we create most designs with the assistance of state-of-the-art AI interior design software. Also, assume links that take you off the site are affiliate links such as links to Amazon. this means we may earn a commission if you buy something.
The main level features a primary suite, two additional bedrooms, open living and dining areas, a covered deck, a mudroom with a drop zone, laundry, and an attached two-car garage with front porch entry.
Floor Plan

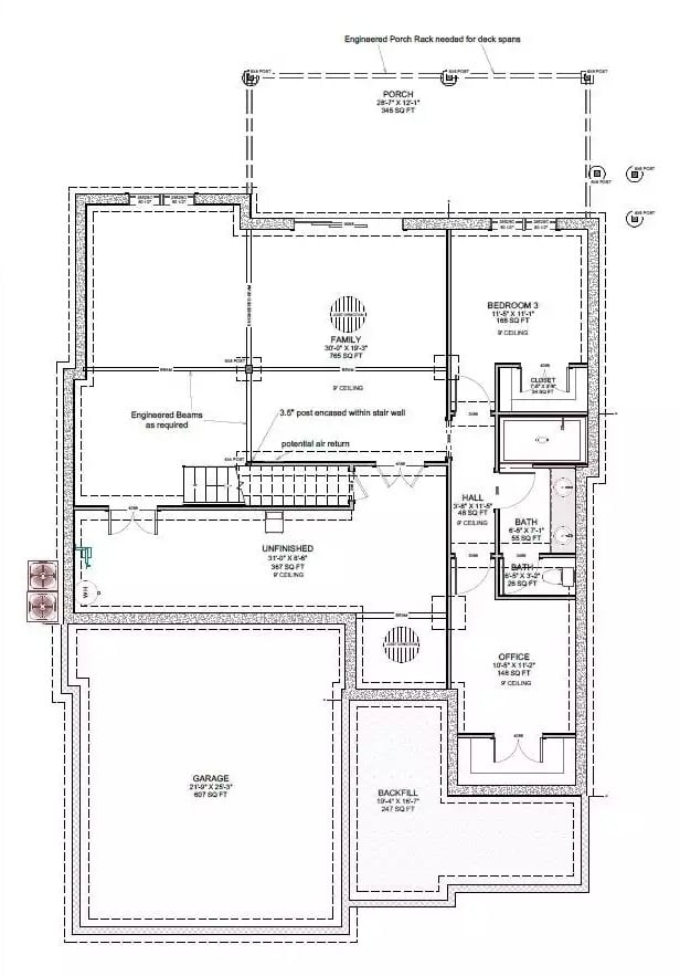
The lower level reveals a large family room, three bedrooms, two bathrooms, and a hall connecting private spaces. An unfinished area sits adjacent to a covered porch above. Garage access, a backfill zone, and an office round out the plan. Stair placement anchors circulation near the center.
Covered Deck and Walkout Patio Define This Modern Farmhouse Rear Exterior
White board-and-batten siding, wood beam accents, cable railings, and black-framed windows anchor two outdoor living levels.
Vaulted Beams and Dark Accents Shape an Open-Plan Living Space

Exposed wood ceiling beams, a black shiplap fireplace wall, and light hardwood floors anchor this open great room.
The Psychology Behind This: Pairing a dark vertical accent wall against bright white creates a visual anchor that draws the eye without shrinking the room. People instinctively feel more at ease in tall spaces with warm wood overhead, a response tied to shelter and natural materials. That contrast between dark and light also gives open-plan spaces a sense of defined zones without physical walls.
Dark Island Base and Carved Wood Corbels Ground a Bright Kitchen

Navy island base contrasts white quartz countertops, while natural wood corbels and woven pendant lights add warmth to light-filled cabinetry.
Style Math: Mixing cabinet colors costs nothing extra when planned at the design stage. Choosing one darker tone for the island and keeping perimeter cabinets light adds visual weight exactly where foot traffic and activity naturally concentrate. Black hardware ties both colors together without requiring a third accent finish.
Vaulted Ceilings with Wood Beams Open Up a Sun-Filled Hallway Entry

Warm hardwood floors run the length of an open corridor leading toward floor-to-ceiling glass doors at the far end. Exposed wood ceiling beams add texture overhead while white walls keep the space bright. A woven pendant light and a glimpse of a powder room with a round mirror add character at either end.
Trend Alert: Vaulted ceilings with exposed wood beams have become a defining feature in modern farmhouse design because they add visual weight and warmth without requiring additional square footage. Leaving beams natural rather than painted preserves their grain and makes them feel structural rather than decorative. Pairing them with white drywall between the beams keeps the contrast clean and readable.
Light Wood Floors and Black-Frame Windows Frame a Treetop Bedroom View

Pale oak hardwood runs wall to wall beneath crisp white paint. Black-frame windows pull in fall color from the surrounding trees, with a glimpse of water visible through the larger pane. Ceiling fan hardware matches the window frames, tying the room together without extra effort. Empty space shows off proportions clearly.
Black-frame windows pull in fall color from the surrounding trees, with a glimpse of water visible through the larger pane.
Sage Vanity Cabinets and Marble Counters Define a Double-Sink Primary Bath

Sage green cabinetry pairs with veined marble countertops, matte black fixtures, and rounded mirrors lit by cylinder sconces above each sink.
Pro Tip: Double-sink vanities work best when each sink has its own mirror and light source rather than sharing one long fixture. Separate sconces reduce shadows and make daily routines more practical. Keeping the counter uncluttered between the two sinks preserves the visual breathing room that makes a shared space feel personal.
Cable Rail and Wood Beams Frame a Lakefront Deck Built for the View

Cable railing systems preserve sightlines better than any solid baluster design ever could.
Gray composite decking runs the full length of this covered outdoor deck. Black metal posts anchor horizontal cable rails, keeping views of the lake and boat docks completely open. Natural wood beams overhead add structure without blocking the sky.
Pin It

Exterior photo shows a modern farmhouse with covered porch and two-car garage; floor plan below reveals primary suite, two bedrooms, mudroom, and rear deck layout.
