
🔥 Would you like to save this?
Specifications
- Sq. Ft.: 2,130
- Bedrooms: 2
- Bathrooms: 2
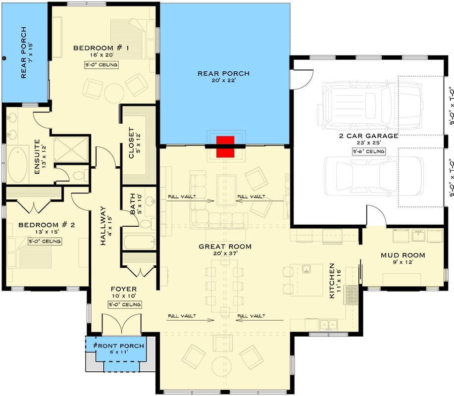
Floor Plan

In order to come up with the very specific design ideas, we create most designs with the assistance of state-of-the-art AI interior design software. Also, assume links that take you off the site are affiliate links such as links to Amazon. this means we may earn a commission if you buy something.
The single-story layout places two bedrooms and an ensuite on the left wing, with a large great room at center. A full-vault ceiling spans the open living area. The kitchen, mud room, and two-car garage anchor the right side.
White Board-and-Batten Meets Warm Cedar Accents on This Modern Farmhouse Exterior

White vertical siding contrasts cedar panels, dark window frames, and a charcoal asphalt roof beautifully.
- Cedar accent panels flank windows on both visible wall sections
- Dark-framed windows add contrast against the white board-and-batten siding
- A connected garage with glass panels extends the modern farmhouse aesthetic
Vaulted Ceilings with Exposed Wood Trusses Anchor This Open-Concept Great Room
Exposed wood trusses cross a vaulted white ceiling above gray hardwood floors. Kitchen cabinets are bright white with black counters. A candle-style chandelier hangs over a dark wood dining table surrounded by ladder-back chairs.
A candle-style chandelier hangs over a dark wood dining table surrounded by ladder-back chairs.
Vaulted Trusses and Black-Frame Windows Define This Open Great Room

Black leather chairs, wood dining table, and exposed beam trusses anchor a bright open-concept space with floor-to-ceiling garden views.
Common Mistake: Mixing black leather seating with warm wood furniture can feel disconnected if you skip a unifying element. Add a consistent metal finish across lighting, chair legs, and cabinet hardware to tie contrasting materials together. Overlooking this step is one of the most common reasons open-concept rooms feel pulled in two directions.
Wicker Seating and Warm Wood Tones Give This Primary Suite a Resort Feel

Carpeted floors, a shag rug, and a wood-framed bed anchor the space. Rattan club chairs, a round wood coffee table, and dark roman shades add layered texture throughout.
Ask Yourself: Roman shades layered under floor-to-ceiling drapery give you two levels of light control without adding hardware clutter. Does your bedroom window treatment handle both full blackout and filtered light?
Pin It

Exterior rendering shows a modern farmhouse with floor-to-ceiling gable windows, paired with a floor plan featuring two bedrooms, open great room, and covered porches.
Fun Fact: Open-concept great rooms with full vault ceilings tend to run cooler in summer because warm air rises and pools above the living zone rather than sitting at head height. Positioning ceiling fans at the peak helps push that air back down without cranking the thermostat.
🔥 Would you like to save this?
Explore this Seemingly Plan But Attractive 2-Bedroom New American-Style Home Plan (Open Concept and 3-Car Garage Floor Plan)
Sq. Ft.: 2,082 | Bedrooms: 2 | Bathrooms: 2
Contemporary-Style 2-Bedroom ADU with Open Concept Design (Floor Plan)
Sq. Ft.: 864 | Bedrooms: 2 | Bathrooms: 1
Discover This 998 Sq. Ft. Cottage Style 2-Bedroom Ranch Home with an Open Living Space and Front Porch (Must-See Floor Plan)
Sq. Ft.: 988 | Bedrooms: 2 | Bathrooms: 2
4-Bedroom Contemporary Home for a Sloped Lot with Open-Concept Living (Floor Plan)
Sq. Ft.: 2,956 | Bedrooms: 2 | Bathrooms: 2.5

