
🔥 Would you like to save this?
Specifications
- Sq. Ft.: 3,753
- Bedrooms: 5
- Bathrooms: 3.5
Floor Plan

In order to come up with the very specific design ideas, we create most designs with the assistance of state-of-the-art AI interior design software. Also, assume links that take you off the site are affiliate links such as links to Amazon. this means we may earn a commission if you buy something.
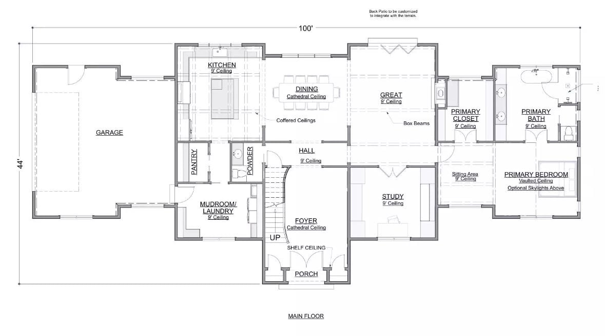
The main floor spans 100 feet wide and 44 feet deep. A central foyer with a cathedral ceiling connects the great room, dining area, and kitchen toward the back. The primary suite occupies the right wing with a vaulted bedroom, sitting area, walk-in closet, and full bath. A study, mudroom, pantry, and powder room round out the layout.
Floor Plan

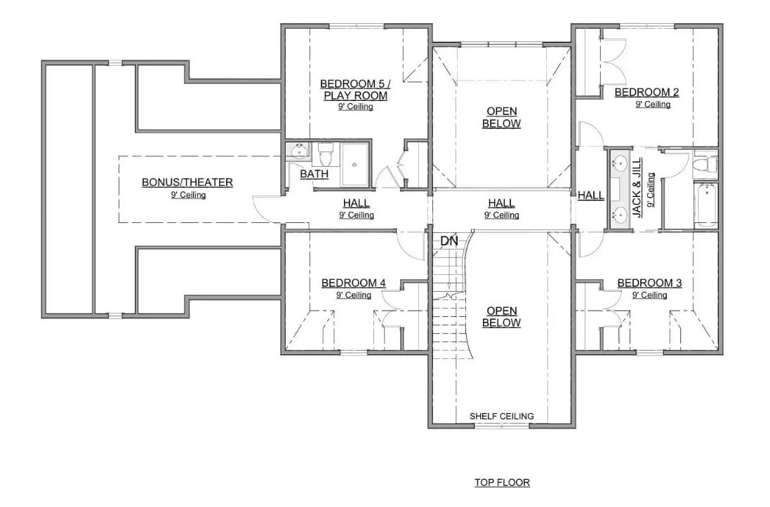
The top floor hosts five bedrooms, a Jack-and-Jill bath, a bonus theater room, and an open stairwell below.
Designer’s Secret: Placing the Jack-and-Jill bathroom between Bedrooms 2 and 3 gives each room private access without sacrificing square footage to separate baths. The bonus theater room sits apart from the sleeping quarters, reducing sound travel to bedrooms during late-night use. Nine-foot ceilings throughout the upper level keep the space from feeling compressed despite the number of rooms packed into the layout.
Stepping inside, the foyer sets the tone for everything the rest of this home delivers.
Grand Foyer with Curved Staircase and Checkerboard Marble Floor
Polished black-and-white marble tiles cover the entry floor in a classic diamond grid pattern. Dark wood carries through the curved staircase, balusters, and upper balcony railing. A tufted leather sofa anchors the right wall beside a potted tree. An arched doorway frames the dining room beyond.
Sage Cabinetry and Marble Backsplash Define a Kitchen Built for Serious Cooking

Sage green cabinetry pairs with gold-veined marble backsplash and countertops throughout. Wood bar stools line the island. Exposed ceiling beams, crystal pendants, and black-and-white diamond tile flooring complete the layered, traditional aesthetic.
Color Story: Sage green sits low on the color spectrum, drawing warmth from the golden veining in the marble rather than competing with it. The wood tones in the beams and stools act as a bridge between cool cabinetry and warm stone. Black accents in the floor tile anchor the palette so nothing reads as too soft.
Arched Pass-Through Connects Formal Dining to a Kitchen Built Around Dark Cabinetry

Dark wood chairs with sage cushions surround a long dining table set for a meal. Sunlight pours through grid windows onto an ornate wool rug. An arched opening frames the kitchen beyond, where dark cabinetry meets a stone backsplash.
In The Details: Arch openings between dining and kitchen spaces predate modern open-concept design by centuries, originating in European manor houses where separate rooms were still considered practical. Here, the arch keeps sound and cooking odors contained while maintaining a visual connection between the two spaces. It functions as architecture doing double duty.
Leather Furniture and a Stone Fireplace Anchor a Living Room Built for Comfort

Brown leather seating frames a Persian rug in red and navy. Painted wainscoting covers the walls in charcoal gray. A marble surround fireplace sits centered beneath a landscape painting in a gilt frame.
By The Numbers: Persian rugs woven in wool can last over a century with proper care, making them one of the few furnishings that genuinely appreciate in character over time. Charcoal gray wall treatments gained popularity in European manor interiors during the 18th century as a way to make candlelit rooms feel more intimate.
Forest Green Walls and Skylights Make This Bedroom Feel Like a Retreat

Olive green walls meet wood floors under three skylights. Matching nightstands flank an upholstered bed layered with earth-toned bedding and green pillows.
Three skylights cut into the vaulted ceiling pull natural light deep into a room that darker walls would otherwise absorb entirely.
Ornate Gold Mirrors and a Soaking Tub Give This Primary Bath a European Edge

White cabinetry runs wall to wall with gold hardware throughout. Two ornate carved-gold mirrors hang above sinks set into marble countertops with deep veining. A freestanding oval soaking tub sits beside steel-framed windows dressed in linen curtains, with a gold floor-mount faucet catching afternoon light from the garden beyond.
Material Matters: Freestanding tubs require a floor-mount or deck-mount faucet rather than a wall supply line, which means rough plumbing placement must be finalized before the floor slab is poured. Moving that supply point after construction is complete can mean cutting into finished flooring. Planning the faucet position early saves a high cost during the build.
Built-In Shelving and a Window Desk Make This Home Office Worth Closing the Door

Forest green paneling wraps every wall, giving the room a contained, focused quality. Floor-to-ceiling shelves hold hundreds of volumes behind paneled columns. Below them, a bench seat with drawers offers reading space and storage. Brass hardware appears on both the cabinetry and desk drawers. Natural light filters through gridded windows dressed in gathered drape panels.
Pin It

Exterior rendering shows a stone European manor facade with arched entry, while the floor plan below reveals a 100-foot-wide main level with primary suite, great room, and attached garage.
