
🔥 Would you like to save this?
Specifications
- Sq. Ft.: 3,359
- Bedrooms: 3
- Bathrooms: 3.5
Floor Plan

In order to come up with the very specific design ideas, we create most designs with the assistance of state-of-the-art AI interior design software. Also, assume links that take you off the site are affiliate links such as links to Amazon. this means we may earn a commission if you buy something.
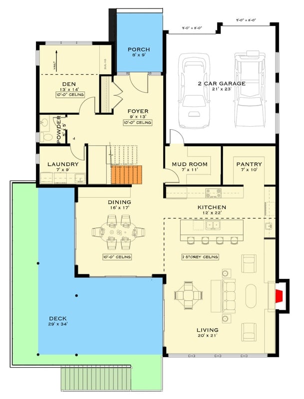
The main floor opens from a front porch into a foyer connecting the den, laundry, and powder room on the left. A staircase leads up from the center. The kitchen, mud room, and pantry align near the rear garage. A 2-story living area and large dining room anchor the back, with a 29×34 deck extending outside.
Floor Plan

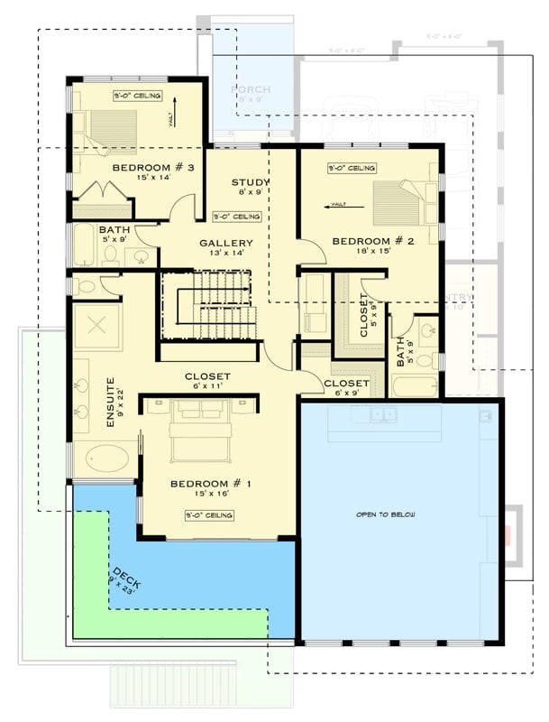
Upper level hosts three bedrooms, a gallery hall, a study, and an open-to-below area. Bedroom 1 connects to an ensuite, while Bedroom 2 shares a bath with Bedroom 3.
Did You Know: Gallery-style hallways on upper floors serve a practical purpose beyond circulation. They allow natural light from nearby windows to reach interior spaces that would otherwise feel closed off. In open-concept homes, this layout choice also improves airflow between rooms.
Floor Plan
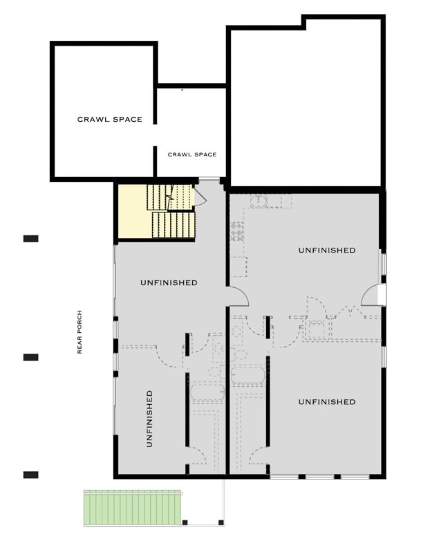
The basement level shows four unfinished rooms ready for future buildout, connected by a central corridor with door access points throughout. A staircase anchors the mid-section, flanked by two crawl spaces on the north end. A rear porch sits along the west wall, adding outdoor access at ground level.
Flat Roof Lines and Floor-to-Ceiling Glass Define This Three-Story Modern Exterior

Cream panel cladding meets dark wood trim across three levels, with a wood-railed staircase, glass balcony guards, and expansive windows dominating the facade.
Why It Works: Elevating the main entry via an exterior staircase does more than address a sloped lot. It creates a natural separation between the garage level and living spaces, improving both privacy and noise control. Builders often use this approach on hillside sites to avoid costly excavation while still achieving a finished, intentional look.
Floor-to-Ceiling Mountain Views Frame an Open-Concept Living Space

Dark-framed windows spanning two stories pull snow-capped peaks directly into view. White marble countertops anchor the kitchen island, which holds a double undermount sink. Leather chairs and a neutral sofa define the living area around a white fireplace. Wood floors run throughout. A dining set sits close to the balcony doors.
Worth Knowing: Open-concept great rooms with double-height window walls face a specific engineering challenge: heat loss. Triple-pane glazing with thermally broken frames can cut heat transfer significantly, making large glass walls practical even in mountain climates. Pairing them with radiant floor heating underneath wood or stone flooring offsets the cold that radiates off glass on winter nights.
Mountain Views and Warm Wood Tones Pull This Dining Space Together

Ornate dining chairs with upholstered cream seats surround a dark wood table set with glassware and plates. A round iron chandelier anchors the ceiling above. Floor-to-ceiling black-framed windows frame snow-capped peaks beyond the deck. In the background, a kitchen with raised-panel cabinetry and double wall ovens shares the open floor plan.
Mixing Formal Dining Furniture with a Casual Open Layout
Placing traditional carved-wood dining chairs in an open-concept space creates visual tension that actually works in the room’s favor. The formality of the furniture signals a dedicated dining zone without requiring walls or partitions to define it. Paired with wide-plank flooring and a patterned area rug, the furniture mix keeps the space from reading as either purely casual or overly formal.
Snow-Capped Peaks Visible from Every Corner of This Master Suite

Floor-to-ceiling sliding glass doors open onto a tiled balcony with mountain and forest views. Inside, a wood bed frame sits on gray carpet alongside a mid-century dresser. Sage green bedding, a five-blade ceiling fan, and recessed lighting keep the palette grounded and calm.
Pin It

Rendered exterior shows a two-story modern home with wood cladding, stone accents, and large black-framed windows above a two-car garage. The floor plan below reveals a main level with a 20×21 living room, 12×22 kitchen, dining area, den, mudroom, pantry, and a 29×34 wraparound deck off the rear.
