
🔥 Would you like to save this?
Specifications
- Sq. Ft.: 2,568
- Bedrooms: 3
- Bathrooms: 2.5
Floor Plan

In order to come up with the very specific design ideas, we create most designs with the assistance of state-of-the-art AI interior design software. Also, assume links that take you off the site are affiliate links such as links to Amazon. this means we may earn a commission if you buy something.
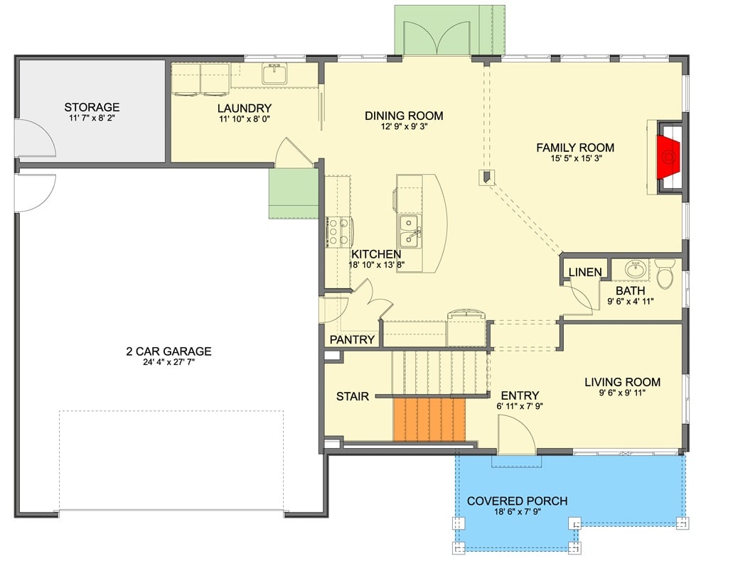
The first floor centers on an open kitchen, dining room, and family room. A covered front porch connects to the entry. Supporting spaces include a pantry, laundry, bath, and storage. A staircase leads upward, and a two-car garage sits to the left.
Floor Plan

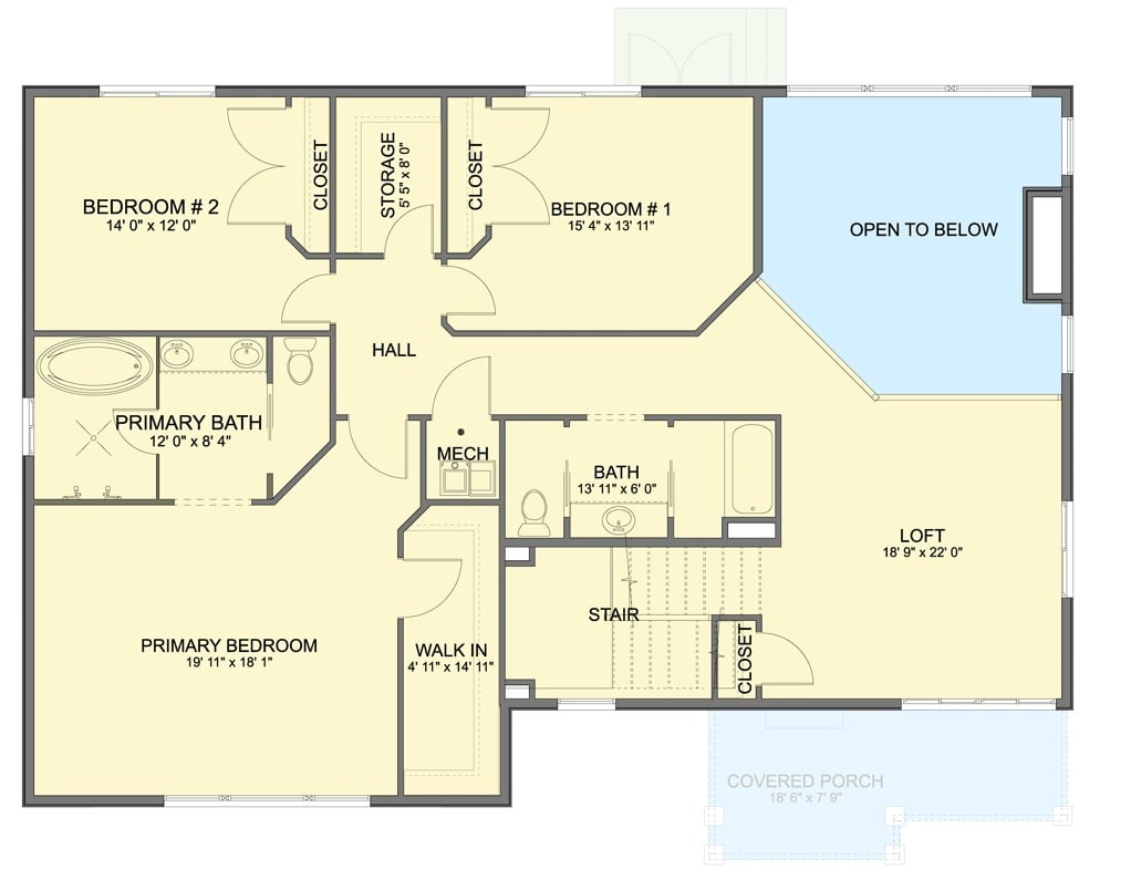
Upper-level layout centers on a primary bedroom suite with a walk-in closet and private bath. Two additional bedrooms share hall access, flanked by a storage nook and closets. A loft opens to the floor below, and a covered porch sits at the rear. Stair and mechanical space round out the plan.
Floor Plan
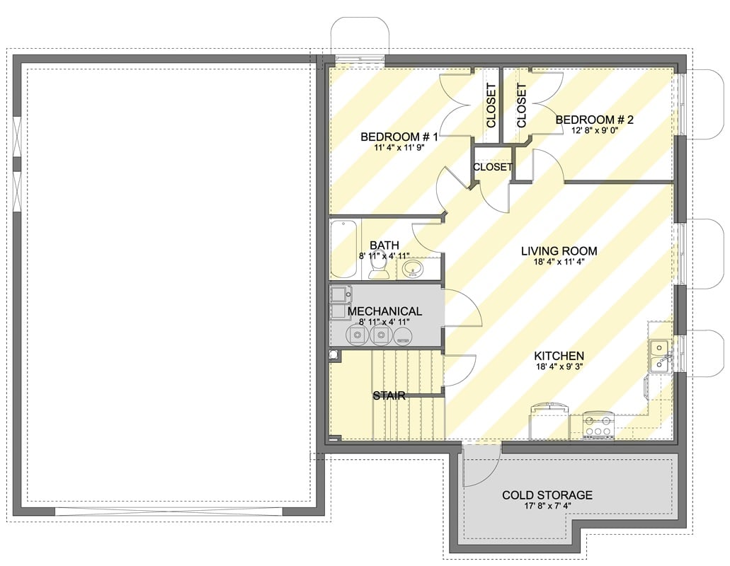
The basement level centers around a combined living room and kitchen spanning 18’4″ wide. Two bedrooms sit along the top wall, each with closets. A shared bath and mechanical room flank the staircase. Cold storage occupies a separate zone near the exterior. Natural traffic flow connects sleeping quarters to living spaces efficiently.
Budget Tip: Converting an unfinished basement into a legal suite like this one can cost between $50,000 and $90,000, depending on your region, but adding a rental unit often recoups costs within five to seven years. Keeping mechanical and bath fixtures clustered along one wall reduces plumbing runs and can save several thousand dollars during construction.
Gray Siding, French Doors, and a Backyard Built for Outdoor Living

Gray lap siding pairs with white-trimmed windows and French doors. Lush lawn, blooming peonies, and layered garden beds frame a concrete patio entry.
Why It Works: Horizontal lap siding in a cool gray tone has become one of the most popular exterior choices for traditional homes because it hides dirt well and holds paint longer than wood. Pairing it with bright white window trim creates a sharp contrast without requiring bold color. French doors at the rear entry add natural light to interior spaces while keeping the facade clean and symmetrical.
Arched Hallway with Dark Tile and Open Views Through to the Living Room

White arched doorways frame a hallway with dark slate tile. Gray walls, leather seating, and large windows flood the living area with natural light.
White arched doorways frame a hallway with dark slate tile.
Leather Sofas, Stone Fireplace, and Natural Light from Every Angle

Matching lamps on opposite sides of a room signal intentional symmetry, not coincidence.
Paired floral ceramic lamps anchor each end of this sitting area, flanking leather sofas in slate gray. A floor-to-ceiling stone chimney carries a flat-screen TV above a wood mantel. Tall windows pull in daylight from three directions, keeping the fireplace from feeling heavy.
Dark Tile, Granite Counters, and Bar Seating for Four

Four metal barstools line a wood-toned island topped with dark granite. Stainless appliances anchor the cooking zone behind it. Recessed lighting keeps the space bright against charcoal floor tiles. Warm cabinetry in honey oak pulls the whole room together.
Material Matters: Dark granite countertops like these are typically priced between $40 and $100 per square foot installed, making them one of the more durable mid-range options available. They resist heat and scratches well, which suits a high-traffic kitchen island. Choosing a consistent edge profile across all surfaces keeps the look cohesive without extra cost.
Loft Gaming Nook with Leather Seating and Wall-Mounted Action

Charcoal leather sofa anchors a carpeted loft overlooking a wood baluster railing. A wall-mounted flat screen displays an active shooter game. Recessed lighting, blue-shuttered windows, and a stone column accent complete the space.
Color Story: Charcoal and slate blue work together here because both pull from the cool side of the color wheel, keeping the palette cohesive without feeling matchy. Warm wood tones from the railing and stone textures from the column break the monotony and add depth. Carpet in a mid-tone taupe absorbs sound, which matters more in a gaming loft than most homeowners expect.
Moving into the primary bedroom, the design shifts toward calm and quiet comfort.
Garden Views and Warm Wood Tones Ground This Primary Bedroom

Sage bedding sits over a wood platform frame, while triple windows frame flowering shrubs, green lawn, and mature trees under afternoon sun.
Transition: Carpet in a bedroom does more than feel soft underfoot. It absorbs sound, which matters more in a primary suite than most homeowners expect. Loop pile styles like Berber hold up well in low-traffic rooms and resist crushing better than cut pile over time. For a room this size, budget around $3 to $6 per square foot for material alone, not including padding or installation.
Steam, Soaking Tub, and Dark Tile Make This Bathroom Feel Like a Spa

Freestanding soaking tub fills with hot water beneath rising steam, flanked by a glass shower and a wood vanity with a granite top.
Common Mistake: Many homeowners place a freestanding tub against a wall to save space, but positioning it away from walls, as shown here, allows steam to circulate more evenly and makes cleaning around the base far easier. Grout lines on large-format tile like this also need sealing every one to two years to prevent moisture from working into the substrate beneath.
Pin It

Exterior rendering shows a two-story traditional home with gray lap siding, a covered front porch, and a two-car garage. Below, the first-floor plan reveals a large kitchen, open dining and family room areas, a pantry, laundry room, half bath, and a covered porch spanning nearly 19 feet wide.
Style Math: Covered porches under 200 square feet rarely require a building permit, but anything larger typically triggers a permit review in most municipalities. At 18 feet 6 inches wide, this porch sits right at that threshold, so checking local codes before breaking ground is worth doing early.
