
🔥 Would you like to save this?
Specifications
- Sq. Ft.: 1,720
- Bedrooms: 3
- Bathrooms: 3.5
Floor Plan

In order to come up with the very specific design ideas, we create most designs with the assistance of state-of-the-art AI interior design software. Also, assume links that take you off the site are affiliate links such as links to Amazon. this means we may earn a commission if you buy something.
The main floor centers on an open great room, dining area, and kitchen with sloped ceilings. Three bedrooms flank the layout, each with bath access. A foyer connects to the front porch, while the covered deck spans the rear. A two-car garage sits to the right.
Floor Plan

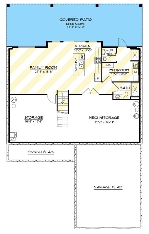
The walkout basement level features a family room, kitchen, mudroom, two bathrooms, storage, mechanical space, covered patio, and stair access to upper floors.
Material Matters: Concrete slab construction appears throughout the garage and porch areas, providing a durable base suited for heavy vehicle loads and outdoor foot traffic. Mudroom placement between the bath and kitchen creates a practical transition zone for entering from the garage. Storage and mechanical rooms share the lower level, keeping utilities accessible without sacrificing finished living space.
Vertical Board Siding Meets Glass Garage Doors on This Modern Ranch Exterior
Khaki-toned vertical board siding wraps the facade, contrasted by matte black trim and roofline. Two glass-panel garage doors flood the bay with natural light. A covered entry with a wood bench adds a grounded, functional welcome point.
- Clerestory windows above garage doors bring in high light without wall penetration
- Fixed mid-height windows reduce solar heat gain while maintaining exterior symmetry
- Shed roof pitch channels precipitation away from the covered entry porch
Mini List: Clerestory windows sit above the garage doors, pulling daylight deep into the upper wall without sacrificing privacy. Black-framed fixed windows punctuate the siding at mid-height for ventilation and visual balance. The shed roof pitches away from the entry, directing rainwater efficiently off the structure.
Warm Wood Paneling and a Round Table Ground This Open Living Space

Honey-toned wood panels frame a wall-mounted TV above a matching media console. White lanterns sit on top as accents. Cream dining chairs surround a dark round table below a rope-wrapped chandelier. A blue rug anchors the seating area across light hardwood floors.
Ask Yourself: Does your living and dining space share one open room? Choosing a single wood tone for both the media wall and dining furniture can visually connect the two zones without requiring a partition wall.
Warm Light and Natural Wood Pull Double Duty in This Open Dining Space

Cream chairs surround a light oak table beneath a black rectangular pendant; a plant and white vase anchor the center.
Style Math: Pairing black metal fixtures with light wood furniture creates contrast without competing tones. Keep upholstery neutral so the metal reads as an accent rather than a dominant color. Three finishes total is a reliable ceiling for open-plan spaces like this one.
Clerestory Windows and Open Sightlines Define This Living and Dining Zone

Four clerestory windows stack above a sliding glass door, flooding the room with tree-filtered light.
Warm hardwood floors run uninterrupted from the stair landing to the dining table. Metal vertical balusters frame the upper hallway. A lantern sits on the console as a low, grounded accent. Cream chairs and a gray sofa keep the palette quiet.
Floating Shelves and a Wall-Mounted Console Keep This Living Room Grounded

Natural oak shelves pair with a white cabinet below the flat-screen TV. Round glass coffee table, jute rug, and a drum pendant light anchor the neutral palette.
Designer’s Secret: Floating your TV console off the floor by even a few inches visually expands the room by exposing more of the floor plane. Choosing a unit with both open and closed compartments lets you hide cables while keeping decorative objects accessible. Paint or finish the wall behind the console the same tone as the surrounding walls so the unit reads as furniture, not built-in cabinetry.
Globe Pendants and Gold Hardware Set the Tone in This Kitchen

Three globe pendants hang over a light wood island with black stools. Gold bridge faucet, marble backsplash, under-cabinet lighting, and glass-front upper cabinets in taupe finish complete the space.
Quick Fix: Mixing two cabinet finishes, taupe uppers against light wood on the island, works best when a single metal tone ties them together. Here, gold hardware appears on both surfaces, keeping the contrast intentional rather than accidental. Repeating that finish on the faucet reinforces the connection.
Moving from the kitchen, the primary bedroom brings a quieter mix of materials and natural light.
Blue-and-White Wallpaper and Gold Hardware Anchor This Primary Bedroom

Floral wallpaper, white bedding, wood shelving, a black door, and blue rug define the space.
transition: Bedside lighting deserves more thought than it usually gets. Wall-mounted sconces or pendants free up nightstand surface and keep cords off the floor. Here, a small table lamp sits on a wood nightstand beside white pillows, and a gold pendant drops from above on the opposite wall. Using two different fixture styles on each side of the bed can work when both share the same metal finish. Gold pulls everything together without requiring identical pieces. If your bedroom has high ceilings like this one, taller headboards or wallpaper panels that run floor to ceiling help fill the vertical space that furniture alone cannot reach.
Pin It

Exterior rendering shows a modern shed-roof home with a covered deck and lower patio, paired with a floor plan revealing three bedrooms, open living spaces, and a two-car garage.
