
🔥 Would you like to save this?
Specifications
- Sq. Ft.: 3,868
- Bedrooms: 4
- Bathrooms: 4
Floor Plan

In order to come up with the very specific design ideas, we create most designs with the assistance of state-of-the-art AI interior design software.
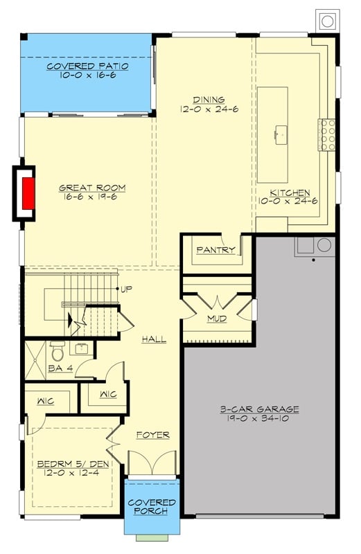
The main floor opens from a covered porch into a foyer leading to the great room, dining area, and kitchen. A pantry and mudroom connect to the three-car garage. Bedroom 5 or den sits near a full bath with two walk-in closets. A covered patio extends off the great room, and stairs lead up to additional bedrooms.
Floor Plan

Upper level hosts four bedrooms, three bathrooms, a laundry room, and a bonus room. The master suite anchors the top-left corner with a walk-in closet and private bath. Bedrooms 3 and 4 share Bath 3 off the central hall. Bedroom 2 has its own Bath 2. A covered porch sits at the base of the plan.
Quick Fix: Converting the bonus room into a dedicated home office or media room is straightforward since it sits apart from the sleeping areas. Its 14×19 footprint gives enough space to divide into two functional zones without major construction.
Covered Patio and Clean White Siding Define This Backyard Elevation
White lap siding wraps a two-story rear facade fitted with large sliding glass doors and picture windows. Concrete patio sits beneath a covered overhang. The central air unit anchors the left side above freshly laid sod.
Did You Know: Sliding glass doors on the rear of a home can reduce natural light loss by up to 30% compared to standard door-window combinations, making them a practical choice for back-facing living spaces. Homes with covered patios also tend to sell faster in the Pacific Northwest, where outdoor livability despite rain is a key buyer priority.
Pendant Lights and a Wood-Topped Range Hood Anchor This Open Kitchen

Greige linen chairs with nail-head trim surround a dark wood dining table set on a floral rug. Glass pendants hang over a quartz island. Shaker cabinets, subway tile backsplash, and a walnut range hood complete the kitchen.
Try This: Pairing a dark wood range hood with white cabinetry is one way to introduce contrast without repainting an entire room. Look for hoods with a flat wood panel face, which are easier to source as ready-made inserts than fully custom builds.
Moving inside, the main living area shows how the open layout handles both everyday living and entertaining.
Navy Accents and a Marble Fireplace Surround Ground This Open Living Room

Recessed lighting keeps the ceiling clean above cream sofas dressed with navy pillows. A marble fireplace surround pairs with a wood mantel shelf below a wall-mounted television. Light hardwood floors run throughout. Glass sliding doors pull the backyard into view, flooding the space with afternoon light.
Warm Wood Tones and Corner Windows Define This Home Office

Rich walnut desk, leather chair, woven rug, and built-in shelving fill this office. Natural light pours through wraparound windows above hardwood floors.
Ask Yourself: Could your home office pull double duty as a guest room or reading room? Built-in shelving like this handles storage without eating into floor space, leaving room for a daybed or lounge chair along the opposite wall.
Black Fixtures and Shaker Cabinets Keep This Laundry Room Functional

Matte black hardware punctuates crisp shaker cabinetry throughout. A utility sink sits below a window with natural light. Counters extend along two walls for folding space.
Style Math: Mixing black fixtures with white cabinetry follows a ratio designers call 80/20, where one dominant tone carries the room and a secondary finish adds contrast without competing. Applying it to hardware, faucets, and door pulls keeps the look consistent without requiring a single paint color change.
Corner Windows and a Water View Make This Primary Bedroom Feel Like a Retreat

Sage green pillows and a matching throw layer over white bedding, anchored by warm wood furniture and a patterned area rug.
Why Vaulted Ceilings Work Harder in Bedrooms Than You Think
Vaulted ceilings pull warm air upward, which helps bedrooms stay cooler at sleeping level without relying on mechanical systems. Combined with corner windows like these, the effect also distributes natural light deeper into the room throughout the day. That diagonal ceiling line draws the eye outward toward the view rather than stopping at a flat soffit.
Calacatta Marble and Brass Fixtures Set the Tone in This Primary Bath

Floor-to-ceiling marble tile lines the walk-in shower, paired with brass sconces, a frameless glass enclosure, and a long quartz vanity countertop.
Pin It

Exterior photo shows craftsman styling with cedar shake siding, a wood front door, and an attached garage. Below, the first-floor plan reveals a great room, open kitchen, dining area, mudroom, and bedroom five.
🔥 Would you like to save this?
4-Bedroom Modern Two-Story The Halliwell Home (Floor Plan)
Sq. Ft.: 3,257 | Bedrooms: 4 | Bathrooms: 4
Get Inspired by This 4 Bedroom, 2,372 Sq. Ft. Layout – Floor Plan Included
Sq. Ft.: 2,372 | Bedrooms: 4 | Bathrooms: 3
Experience This 2,524 Sq. Ft. 4 Bedroom Home with Perfect Flow – Floor Plan Inside
Sq. Ft.: 2,524 | Bedrooms: 4 | Bathrooms: 2.5
Step Inside This Inviting 4-Bedroom Craftsman Home with an Angled Garage and Wet Bar (See the 3,869 Sq. Ft. Floor Plan)
Sq. Ft.: 3,869 | Bedrooms: 2-4 | Bathrooms: 2-4

