
🔥 Would you like to save this?
Specifications
- Sq. Ft.: 3,674
- Bedrooms: 4
- Bathrooms: 4
Floor Plan

In order to come up with the very specific design ideas, we create most designs with the assistance of state-of-the-art AI interior design software. Also, assume links that take you off the site are affiliate links such as links to Amazon. this means we may earn a commission if you buy something.
The main floor covers 2,593 square feet. A master bedroom suite with a walk-in closet anchors the left side. The great room, kitchen, and dining area share an open layout. A second bedroom, laundry, and front entry complete the floor.
Floor Plan

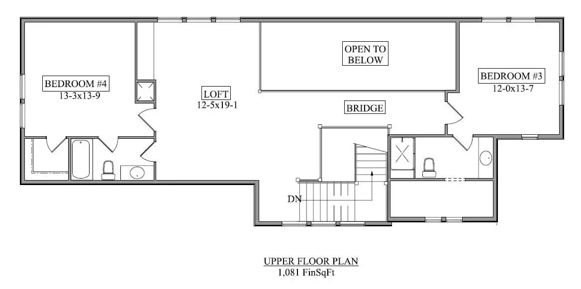
Upper level spans 1,081 square feet with two bedrooms, a loft, and a bridge overlooking below. Bedroom 4 sits beside a full bath on the left. Bedroom 3 occupies the far right corner near a shared bath.
Floor Plan
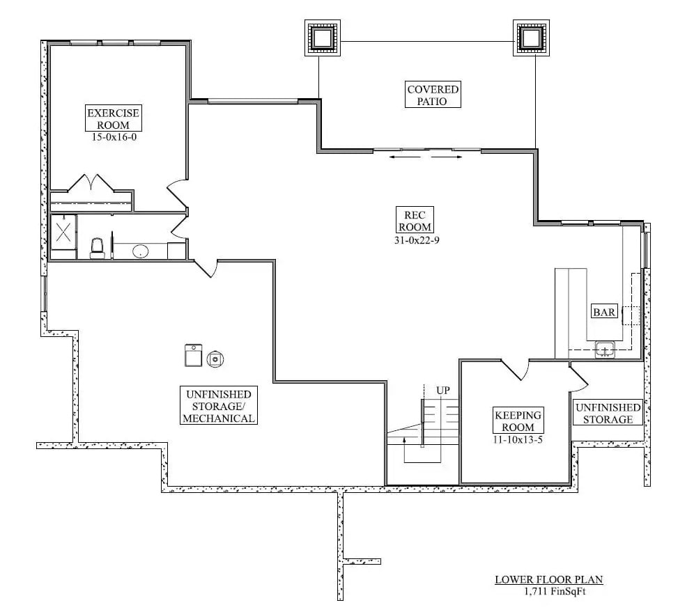
Lower level living centers on a rec room measuring 31 by 22 feet, flanked by a wet bar and a kitchen. An exercise room with a full bath sits at one corner. Unfinished storage and a mechanical area add utility. Sliding doors open to a covered patio.
Floating Staircase Meets Industrial Railing in a Light-Filled Foyer

Open-tread wood stairs anchor the entry, framed by black horizontal metal railings. Frosted glass double doors fill the space with diffused light. Geometric gray-and-oak inlay flooring defines the foyer’s welcome zone with a bold pattern.
Designer’s Secret: Floating staircases without risers create an optical openness that solid-tread designs cannot match. Each open tread allows light to pass through, making even a narrow stairwell feel airy. Pairing them with horizontal metal railings keeps the look clean without adding visual weight.
Vaulted Great Room Centers on a Floor-to-Ceiling Stacked Stone Fireplace

Light oak hardwood floors reflect natural light pouring through black-framed windows. Built-in white cabinetry flanks the stone fireplace tower, while exposed wood ceiling beams anchor the candle-style chandelier above.
Editor’s Note: Stacked stone fireplace surrounds that run floor to ceiling draw the eye upward and make vaulted ceilings feel intentional rather than simply tall. Pairing this vertical stone element with floating shelves on one side and cabinetry on the other creates visual balance without requiring a mantel. Gas fireplace inserts, like the one shown here, offer consistent heat output with far less maintenance than wood-burning alternatives.
Moving into the heart of the home, the kitchen makes a strong case for contrasting cabinet colors done right.
Gray Island Anchors a White Kitchen Built for Serious Cooking

Slate-blue cabinetry on the island pairs with white perimeter cabinets and marble countertops. Subway tile climbs behind a stainless hood. Globe pendants hang from black stems above hardwood floors.
Carpeted Loft Overlooks the Main Floor Through Black Steel Railings

Neutral carpet, recessed lighting, and black horizontal railings define this open loft with a vaulted ceiling and windows.
Try This: Carpet in a loft absorbs sound that hard flooring would bounce straight down to the rooms below. Choosing a mid-tone, low-pile option keeps maintenance manageable while still softening noise between floors. It also adds warmth underfoot in a space that might otherwise feel cold given the height of the ceiling.
Coffered Ceiling with Wood Beams Defines a Spacious Master Suite

Gray carpet, beamed tray ceiling, black-framed windows, and a recessed TV niche fill this empty master bedroom with quiet intention.
In The Details: Recessed TV niches built directly into drywall keep screens flush with the wall, eliminating the need for bulky entertainment furniture. Pairing the niche with dedicated power and cable conduit during framing costs far less than retrofitting after drywall is finished.
Dual Vanities Separated by a Column Give Each Person Their Own Space

Two floating vanities in medium gray anchor opposite sides of a shared bath. Quartz countertops carry subtle veining, while brushed nickel hardware ties both sides together. Pendant lights with cage-style frames hang from chains. A teal glass vase adds a rare pop of color against otherwise cool tones.
Style Math: Splitting one large vanity into two smaller floating units, divided by a structural column, solves the morning traffic problem without requiring extra square footage. Each side gets dedicated storage, a dedicated mirror, and its own pendant light. Building the second unit slightly lower can also serve as a seated makeup station.
Pedestal Washer-Dryer Pair Anchors a Laundry Room Built to Last

Matching silver front-load machines sit on raised pedestals beneath full-height cabinetry in a warm greige finish. White subway tile wraps the wainscoting. Matte black hardware and faucet fixtures tie together the countertop workspace and dog-wash station.
Raised Pedestals Solve a Real Ergonomic Problem
Mounting front-load washers and dryers on pedestals shifts the door opening to roughly waist height, which eliminates the deep bending most users experience with floor-level machines. The pedestals shown here also include built-in drawers, turning dead space into accessible storage for detergent and dryer sheets. Over years of daily use, that height adjustment reduces back strain considerably.
Pin It

Board-and-batten siding, stone accents, and three wood garage doors define the exterior of this Craftsman home. Below, the main floor plan reveals 2,593 finished square feet arranged around a great room, master suite, kitchen, dining area, laundry, bedroom two, and a three-car garage with staircase access to an upper level.
🔥 Would you like to save this?
Tour the Distinctive 4-Bedroom Craftsman Retreat with a Loft and Wraparound Porch (Check Out The 2,488 Sq. Ft. Floor Plan)
Sq. Ft.: 2,488 | Bedrooms: 3-4 | Bathrooms: 2.5-3.5
Explore This Exquisite 3,369 Sq. Ft. 4-Bedroom Craftsman Home with a Timeless Touch (Detailed Floor Plan Available)
Sq. Ft.: 3,369 | Bedrooms: 4 | Bathrooms: 3
4-Bedroom Craftsman-Style Whilton Cove Home with Loft and Double Garage (Floor Plan)
Sq. Ft.: 2,224 | Bedrooms: 4 | Bathrooms: 3.5
Step Inside This Charming 2,510 Sq. Ft. Craftsman Cottage with 4 Bedrooms and a Versatile Terrace Level (Must-See Floor Plan)
Sq. Ft.: 2,510 | Bedrooms: 4 | Bathrooms: 3

