
🔥 Would you like to save this?
Specifications
- Sq. Ft.: 2,215
- Bedrooms: 3
- Bathrooms: 2
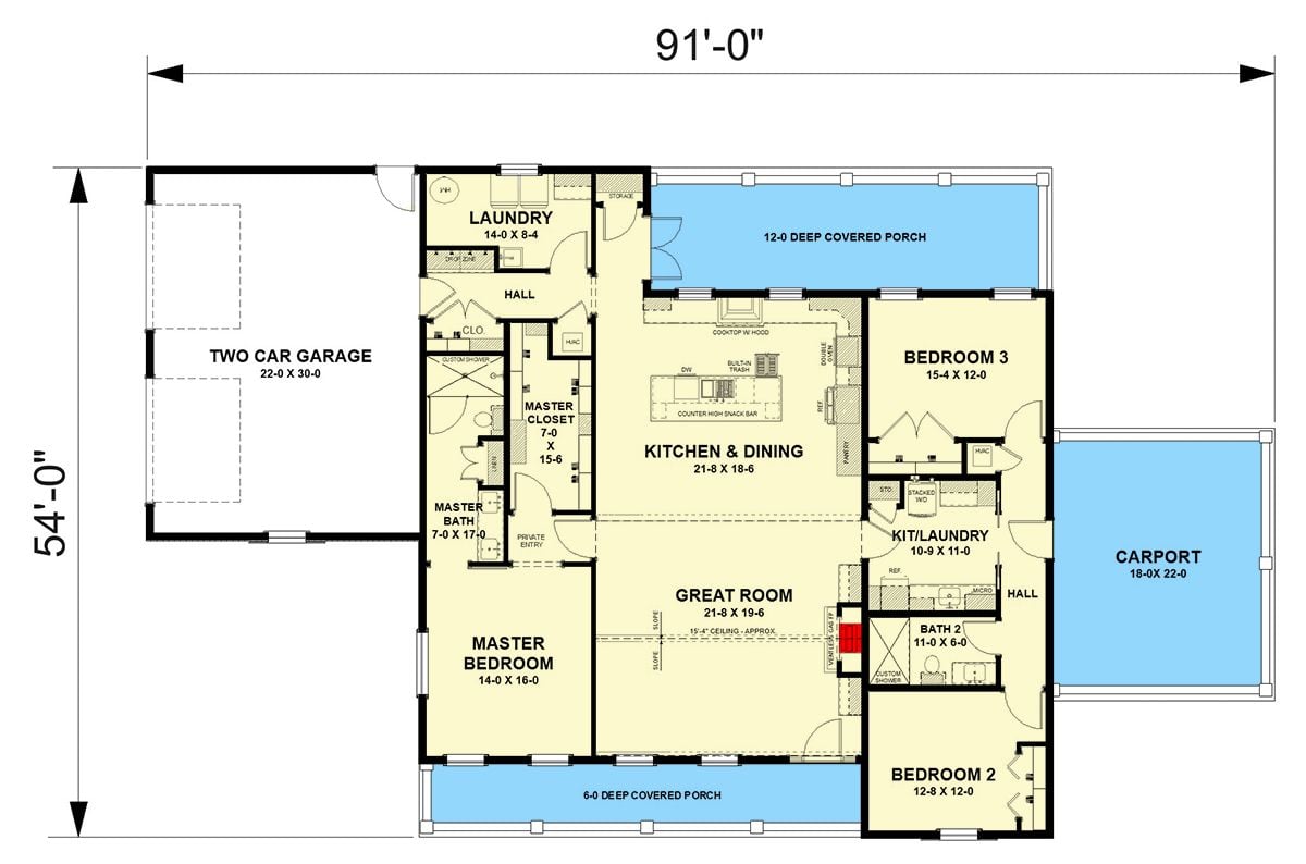
Floor Plan

In order to come up with the very specific design ideas, we create most designs with the assistance of state-of-the-art AI interior design software. Also, assume links that take you off the site are affiliate links such as links to Amazon. this means we may earn a commission if you buy something.
Three-bedroom single-story layout features an open kitchen and great room, a master suite with private entry, covered porches, a two-car garage, and a carport.
Vaulted Ceilings and Dark Wood Beams Define This Open-Plan Living Space

Exposed wood beams run across a vaulted white ceiling fitted with a large ceiling fan. Wide-plank floors stretch from the sofa grouping through the dining area and into the white kitchen beyond.
Brick Fireplace and Built-Ins Anchor an Open Living and Dining Space
Shiplap-style brick rises to the vaulted ceiling above a wood-mantel fireplace. Tufted dining chairs, dark wood beams, and a candle chandelier complete the farmhouse feel.
Marble Countertops and Dark Wood Island Steal the Show in This Farmhouse Kitchen

White shaker cabinets with brass hardware line the perimeter while a dark walnut island anchors the space. Veined marble countertops run throughout. A wood range hood, black-framed windows, and slat-back bar stools complete the farmhouse aesthetic.
Style Math: White upper cabinets paired with a dark island base is a classic contrast move that grounds an all-white kitchen without adding color. The walnut tones in the island, bar stools, and range hood create a through-line that ties the room together visually.
Stacked Washer-Dryer Meets Marble Countertops in One Hardworking Utility Room

Stainless appliances stack against white cabinetry with gold hardware, while plank floors and marble counters add warmth to a functional laundry-kitchen hybrid.
Color Story: Warm greige walls sit between crisp white trim and silver appliances without competing with either. The marble countertop pulls both tones together by carrying cool gray veining across its surface. Gold hardware on the cabinetry acts as the single warm accent that keeps the palette from reading too cold.
Dark Wood Sleigh Bed and Barn Door Hardware Give This Primary Bedroom Character

Greige walls, hardwood floors, and a barn door lead into a walk-in closet beyond.
Material Matters: Sleigh beds fell out of fashion for years but have returned as a grounding element in rooms that lean neutral. The curved footboard adds visual weight without requiring bold color or pattern. Pairing dark wood furniture against light walls keeps the contrast intentional rather than accidental.
From the bedroom, the primary bath carries the same gold hardware through into a more functional space.
Gold Fixtures and Marble Countertops Set the Tone in the Primary Bath

Double undermount sinks sit beneath a marble countertop with gold bridge faucets. White shaker cabinets anchor the vanity below. Green-tiled shower walls and wood-look floor tile add contrast without competing.
Black Front-Load Machines and Hardwood Floors Make This Laundry Room Work Hard

Matte black washer and dryer sit beneath a window, flanked by white shaker cabinets with brass pulls and marble counters on dark hardwood floors.
Budget Tip: Opting for black appliances instead of white or stainless can save money since fewer brands compete at the premium end of that finish. The savings can go toward upgraded countertops or cabinetry hardware, where the visual payoff is higher.
Pin It

The exterior rendering shows classic farmhouse details, while the floor plan below reveals three bedrooms, a two-car garage, a carport, and a 91-foot-wide footprint.
🔥 Would you like to save this?
3-Bedroom Post Frame Barndominium with Entry Porch and Open-Concept Living (Floor Plan)
Sq. Ft.: 1,933 | Bedrooms: 3 | Bathrooms: 2
Acadian-Style 3-Bedroom Home with Bonus Room and Open-Concept Living (Floor Plan)
Sq. Ft.: 1,842 | Bedrooms: 3 | Bathrooms: 2
Unveiling a Contemporary 3-Bedroom New American Home with Open Living Spaces (Includes 2,061 Sq. Ft. Floor Plan)
Sq. Ft.: 2,061 | Bedrooms: 3 | Bathrooms: 2
3-Bedroom Rustic Cabin with Open Living Space and Loft Over the Kitchen (Floor Plan)
Sq. Ft.: 1,488 | Bedrooms: 3 | Bathrooms: 2
Transitional-Style 3-Bedroom Home with Open Living Space and 4-Car Garage (Floor Plan)
Sq. Ft.: 1,595 | Bedrooms: 3 | Bathrooms: 2

