
🔥 Would you like to save this?
Specifications
- Sq. Ft.: 2,561
- Bedrooms: 3
- Bathrooms: 2.5
Floor Plan

In order to come up with the very specific design ideas, we create most designs with the assistance of state-of-the-art AI interior design software. Also, assume links that take you off the site are affiliate links such as links to Amazon. this means we may earn a commission if you buy something.
The main floor centers on an open living room flanked by a dining area and kitchen. Three bedrooms, a study, a mud room, a 3-car garage, and two covered outdoor spaces complete the layout.
Floor Plan

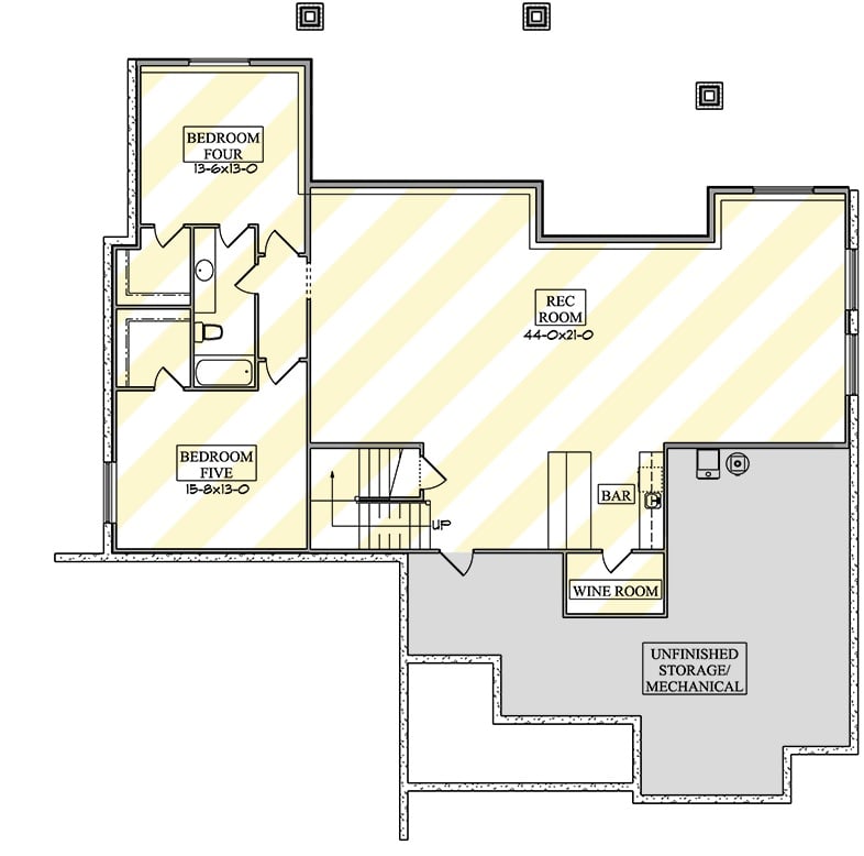
The basement level includes two bedrooms sharing a full bath, a large 44×21 rec room, and a bar with a wine room. Stairs connect to the upper floors. Unfinished storage and mechanical space occupy the lower right corner, offering room for future expansion.
Craftsman Ranch Exterior with Board-and-Batten Siding and Split-Rail Fence
Vertical board-and-batten siding in sage and gray covers the facade, paired with stone accents around the covered porch entry. Dark wood brackets frame the gable peaks. Ornamental grasses and dried plantings line the fence. A split-rail fence borders a lush green lawn, while multiple rooflines give the single-story home visual depth and a rural character.
By The Numbers: Craftsman ranch homes typically range from 1,800 to 3,200 square feet on the main level. Single-story builds cost roughly 10 to 15 percent more per square foot than two-story homes because the foundation and roof footprints match the full living area. Optional basements can nearly double usable square footage without expanding the exterior walls.
Stone Fireplace and Wood Ceiling Beams Anchor an Open-Concept Living Space

Gray sofas face a stacked-stone fireplace with a wood mantel. Hardwood floors, recessed lighting, and exposed ceiling beams connect the living area to an open kitchen.
Pro Tip: Stone fireplace surrounds in a ranch home often use dry-stacked or ledgestone veneer rather than full masonry, which cuts installation weight and cost without sacrificing the look. Pairing the surround with a solid wood mantel shelf ties the fireplace visually to exposed ceiling beams throughout the room.
Curved Wood Island and Quartz Countertop Define a Craftsman Kitchen

Warm hickory floors, white shaker cabinets, mosaic tile backsplash, and a wood-paneled island with gray quartz top anchor this open kitchen.
The Psychology Behind This: White cabinetry against warm wood tones creates contrast that draws the eye inward toward the island, making it feel like the room’s natural gathering point. Kitchens with a dominant central island trigger a sense of ownership and activity, encouraging people to linger longer than in galley-style layouts.
Craftsman Dining Area Bridges Kitchen and Living Room in an Open-Plan Layout

Matching wood tones across the table, chairs, and hardwood floor creates visual continuity. A square metal pendant anchors the dining space above. Red accents in the bowl and distant artwork add contrast against neutral walls and upholstered seating.
Color Story: Honey-toned hardwood flooring paired with medium-stained furniture keeps the palette cohesive without feeling flat. Introducing one saturated color, like the red bowl at the center table, prevents an all-wood interior from reading as monotone. Designers often recommend limiting bold color to portable objects so the scheme can shift without repainting or refinishing.
Tray Ceiling with Rope Lighting Crowns a Spacious Craftsman Master Bedroom

Rope lighting tucked into a tray ceiling does more work than any overhead fixture ever could.
Soft amber glow outlines the recessed tray above a king bed dressed in charcoal bedding with red accent pillows. Beige carpet runs wall to wall. French doors with wood frames open to a snow-covered balcony beyond.
Double Vanities and Wood-Framed Mirrors Define a Craftsman Master Bath

Two vessel sinks, oil-rubbed bronze faucets, and knotty alder cabinets anchor this spacious bathroom.
Why Vessel Sinks Work in a Craftsman Bath
Vessel sinks sit above the countertop rather than dropping into it, which keeps the quartz surface largely uninterrupted and visually clean. In a Craftsman bathroom, that exposed counter space lets the wood cabinetry below read as a full piece of furniture rather than a utility cabinet. Pairing vessel bowls with taller faucets is necessary for proper water clearance, and oil-rubbed bronze finishes age well without requiring the same upkeep as polished chrome.
Pin It

Outside, board-and-batten siding meets stone accents on a single-story Craftsman with a 3-car garage. Below, the floor plan reveals an open living-dining-kitchen core, master suite with a walk-in closet, two additional bedrooms, a study, a mud room, a covered deck, and a staircase leading to an optional basement.
Style Math: Open-concept ranches place the kitchen, dining, and living zones in one continuous footprint, which reduces interior wall framing and can lower finish costs compared to compartmentalized layouts. Positioning the master suite opposite secondary bedrooms adds acoustic separation without requiring a second floor.
