
🔥 Would you like to save this?
Specifications
- Sq. Ft.: 2,862
- Bedrooms: 2
- Bathrooms: 2.5
Floor Plan

In order to come up with the very specific design ideas, we create most designs with the assistance of state-of-the-art AI interior design software. Also, assume links that take you off the site are affiliate links such as links to Amazon. this means we may earn a commission if you buy something.
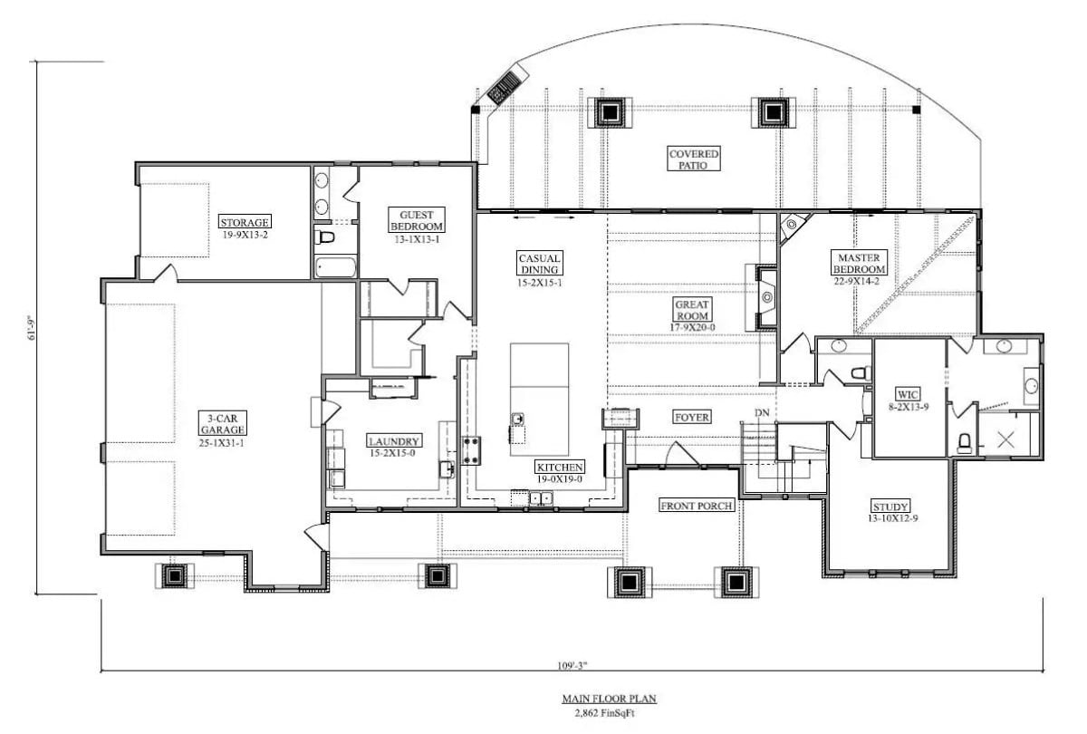
The main floor spans 2,862 square feet with a central great room flowing into casual dining and a large kitchen. The master bedroom sits at the far right with a walk-in closet and study nearby. A guest bedroom, laundry room, and three-car garage anchor the left wing. A covered patio runs across the rear.
Floor Plan

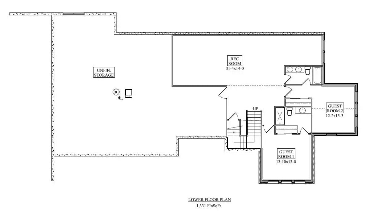
Spanning 1,331 finished square feet, this lower level holds a rec room at 31×14 feet, two guest rooms, and a full bathroom. Stairs connect to the upper floor. Unfinished storage occupies a large portion of the left side, offering room for expansion. Both guest rooms sit near the bath for practical access.
Stacked Stone Fireplace Anchors a Craftsman Living Room with Soaring Ceilings
Ledgestone rises floor to ceiling beside a wall-mounted TV flanked by dark cabinetry. Tan leather sofas, exposed wood beams, and a wood coffee table carry the warm, earthy palette throughout the open space.
Try This: Mounting a TV directly into a stone fireplace surround requires a flush, low-profile mount rated for masonry. Use a fireplace-rated HDMI cable rated for high heat and route it through the stone chase rather than surface-mounting conduit along the face.
Moving into the kitchen, the design shifts toward bold material choices and rich wood tones throughout.
Black and Gold Granite Island Commands Attention in a Craftsman Kitchen

Dramatic black granite with gold veining tops the raised island. Round wood barstools, dark cabinetry, and pendant lights complete the space.
Vaulted Ceiling with Exposed Beams Frames a Craftsman Master Bedroom

Exposed wood beams run along a vaulted ceiling above a sleigh bed dressed in gray bedding and layered pillows. Dark stone cladding wraps the fireplace wall, grounded by a wood mantel. A three-blade ceiling fan, recessed lighting, and a patterned area rug complete the space.
Ask Yourself: Could your bedroom support a vaulted ceiling if you removed the flat drywall above? In many ranch-style and craftsman homes, the roof framing already creates the pitch you see here. A structural engineer can tell you whether your ceiling joists allow for the conversion before any demo begins.
Pendant Lantern and Pebble Tile Floor Give This Craftsman Bath Industrial Edge

Vessel sinks sit on dark countertops flanked by vertical sconces. Warm wood cabinetry glows with toe-kick lighting below. Pebble tile lines the walk-in shower floor.
Common Mistake: Skipping dedicated vanity lighting on both sides of the mirror is one of the most common bathroom mistakes. A single overhead fixture casts shadows across the face, making grooming tasks harder. Flanking the mirror with vertical sconces at eye level eliminates that shadow entirely.
Craftsman Exterior Wraps a Covered Patio Around Mountain Views and a Stone Fire Pit

Tan stucco walls, dark hip roofs, wood columns, and gravel landscaping frame a concrete patio with iron seating.
- Decomposed granite sheds water faster than mulch and resists displacement on slopes
- Concrete patios should slope away from the foundation at a minimum grade of 1 inch per 8 feet
- Dry-stack stone borders lock gravel in place without mortar and flex with ground movement
Mini List: Gravel ground cover around a patio cuts maintenance and improves drainage on sloped lots like this one. Many homeowners underestimate how much water runoff a hillside property generates during rain. Choosing the right hardscape materials from the start prevents erosion and costly repairs later.
Pin It

Exterior photo shows a Craftsman ranch set against rock formations, paired with a 2,862-square-foot main floor plan below.
Material Matters: Stone veneer on a home’s exterior requires a weather-resistant barrier and metal lath beneath the mortar bed to prevent moisture infiltration behind the cladding. Without proper drainage behind the stone, water becomes trapped and degrades the wall assembly over time. Many homeowners discover this failure only after interior damage has already occurred.
