
Would you like to save this?
Specifications
- Sq. Ft.: 1,788
- Bedrooms: 4
- Bathrooms: 2.5
- Stories: 2
- Garage: 1
Main Level Floor Plan

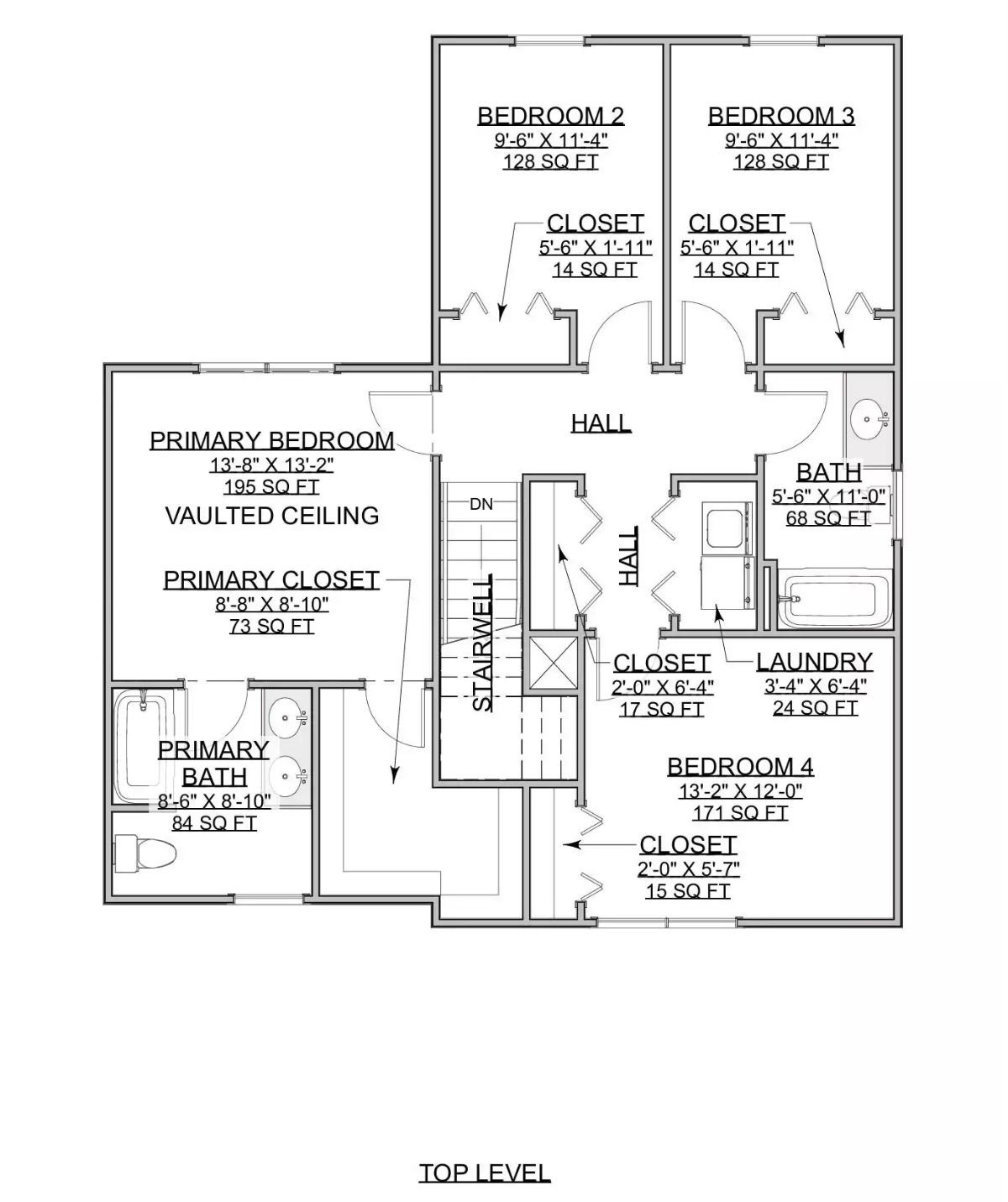
Second Level Floor Plan

Front View

Right View

Left View

Rear View

Dining Area and Kitchen

Kitchen

Family Room

Primary Bedroom

Primary Bathroom

Bedroom

Details
This country home presents a clean, modern farmhouse profile with a balanced mix of vertical and horizontal siding and a simple gabled roofline. A covered front porch and attached garage create a practical, welcoming street-facing presence.
The main level is organized around an open family room that connects easily to the dining area and kitchen, creating a natural flow for everyday living and gatherings. The kitchen is anchored by a central island and supported by a walk-in pantry, keeping storage and prep space close at hand.
A dedicated office near the front of the home offers separation for work or study, while a powder bath and entry closet add convenience for guests. Direct access to the garage keeps daily routines efficient without disrupting the main living areas.
Upstairs, the primary bedroom is set apart for privacy and includes a vaulted ceiling, a spacious closet, and a private bath. Three additional bedrooms are arranged off a central hall, each with its own closet, and share a full bath.
A centrally located laundry room keeps household tasks close to the bedrooms, reducing the need to move between floors. The layout balances private spaces with shared circulation, making the upper level functional for a variety of household needs.
Pin It!

🔥 Create Your Own Magical Home and Room Makeover
Upload a photo and generate before & after designs instantly.
ZERO designs skills needed. 61,700 happy users!
👉 Try the AI design tool here
The House Designers Plan THD-11835
Haven't Seen Yet
Curated from our most popular plans. Click any to explore.

