
Would you like to save this?
Specifications
- Sq. Ft.: 2,545
- Bedrooms: 6
- Bathrooms: 4.5
- Stories: 2
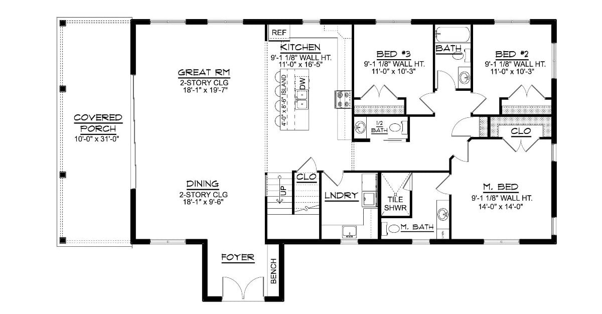
Main Level Floor Plan

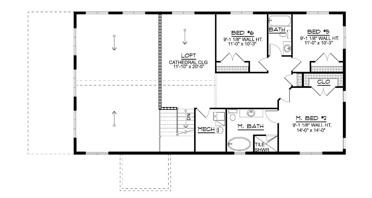
Second Level Floor Plan

Left View

Rear View

Right View

Great Room

Dining Room

Great Room

Kitchen

Kitchen

Loft

Primary Bedroom

Primary Bedroom

🔥 Create Your Own Magical Home and Room Makeover
Upload a photo and generate before & after designs instantly.
ZERO designs skills needed. 61,700 happy users!
👉 Try the AI design tool here
Primary Bedroom

Primary Bathroom

Primary Bathroom

Bedroom

Bedroom

Details
This farmhouse home features a clean, modern exterior with simple rooflines, vertical siding, and large window groupings that give it a bold yet approachable presence. Covered outdoor areas and strong proportions reinforce the home’s practical, contemporary character.
Inside, the main level is organized around a dramatic two-story great room that connects directly to the kitchen and dining area, creating an open layout for daily living and gatherings. The kitchen sits at the center of the home with an island and clear sightlines into the main living spaces, while the dining area flows naturally alongside it.
A main-level primary bedroom is set apart for privacy and includes a dedicated bathroom and closet, along with convenient access to nearby laundry and storage spaces. Two secondary bedrooms nearby share a hall bath.
The upper level adds flexibility with a loft that overlooks the great room below, creating a secondary living area. Additional bedrooms are arranged along this level with access to full bathrooms, offering comfortable accommodations for family or guests.
Pin It!

The House Designers Plan THD-11896
Haven't Seen Yet
Curated from our most popular plans. Click any to explore.

